Prodej komerčního pozemku, Jeníkovice, 9416 m2 (ID: 1945467)

Jeníkovice

3 750 000 Kč
/za nemovitost
bez DPH, včetně poplatků, včetně provize, včetně právního servisu, cena k jednání
Hypotéka od 16 760 Kč /měs. Chci hypotéku

Parametry pozemku

AdresaJeníkovice
ID00370
Plocha pozemku9416 m2

Origo partneři v Jeníkovicích

Popis

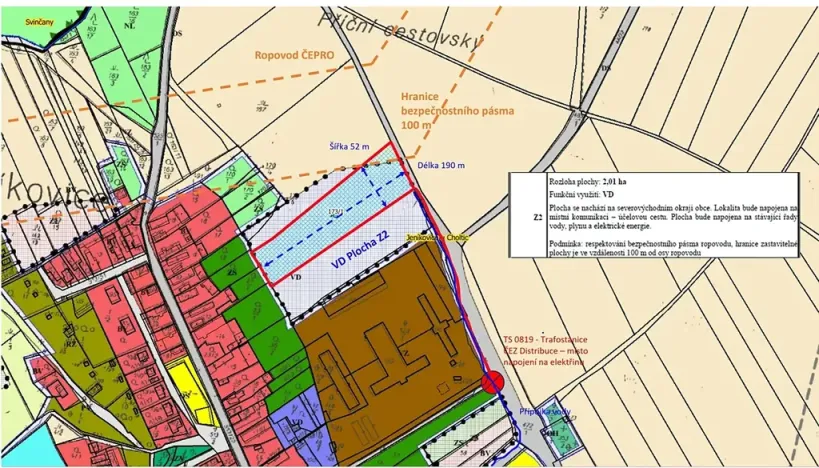
Nabízíme k prodeji stavební pozemek v k.ú. Jeníkovice u Choltic o celkové výměře 9 416 m2. Tento pozemek je územním plánem určen pro výrobu a skladování a lze ne něm bez problému stavět. Šíře pozemku činí 51 m délka je 190 m. Je potřeba se připojit na trafostanici ČEZ Distribuce, případně si zřídit vlastní trafostanici na pozemku. Pozemek je jen malou částí dotčen bezpečnostním pásmem ropovodu, který je v majetku ČEPRA.

V tuto chvíli je pozemek propachtován, výpovědní lhůta je jen 1 rok.

V případě Vašeho zájmu o bližší informace nás prosím kontaktujte.

Makléř

Máte zájem o tento pozemek?

Tímto, v souladu s nařízením Evropského parlamentu a Rady (EU) 2016/679, v platném znění, prohlašuji, že mi je alespoň 16 let a uděluji tak svůj souhlas se zpracováním zadaných údajů (jméno, telefon, e-mail, ip adresa) společnosti B3 Technology, s.r.o., IČ: 07330600, se sídlem Novostavby 126/23, 435 11 Lom (správce dat), za účelem předání dotazu z tohoto formuláře Vámi vybranému inzerentovi a zpětného kontaktování mé osoby. Osobní údaje bude správce zpracovávat manuálně i automaticky přímo prostřednictvím svých zaměstnanců. Informace předané tímto formulářem budou uloženy v databázi správce maximálně po dobu 10 let. Odvolání souhlasu s uložením a zpracováním poskytnutých dat lze e-mailem na info@origo-reality.cz. V případě podezření na neoprávněné použití Vámi poskytnutých údajů máte právo předat podnět k šetření Úřadu pro ochranu osobních údajů. Více informací
Chystáte se prodat nemovitost?
Pomůžeme Vám!

Přihlášení k odběru

Nenechte si ujít nejnovější nabídky prodeje komerčních pozemků v Jeníkovicích (okr. Pardubice).