Prodej bytu 2+kk, Plzeň, Zahradní, 65 m2 (ID: 1936049)

Zahradní, Plzeň, Východní Předměstí

Cena na vyžádání
/za nemovitost
Získejte výhodnou HYPOTÉKU Chci hypotéku

Parametry bytu

AdresaZahradní, Plzeň, Východní Předměstí
StavbaSmíšená
Stav objektuVe výstavbě
Patro2. z 5
VlastnictvíOsobní
Užitná plocha65 m2
Třída energetické náročnostiA - Mimořádně úsporná
Elektřina230V
OdpadVeřejná kanalizace
KomunikaceAsfaltová
VodaVodovod
Zdroj topeníCentrální dálkové
Zdroj teplé vodyCentrální dálkový ohřev
Balkon
Sklep
Výtah
Bezbarierový přístup

Origo partneři v Plzni

Podlahy

Stěhovací služby

Popis

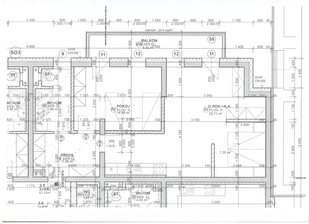
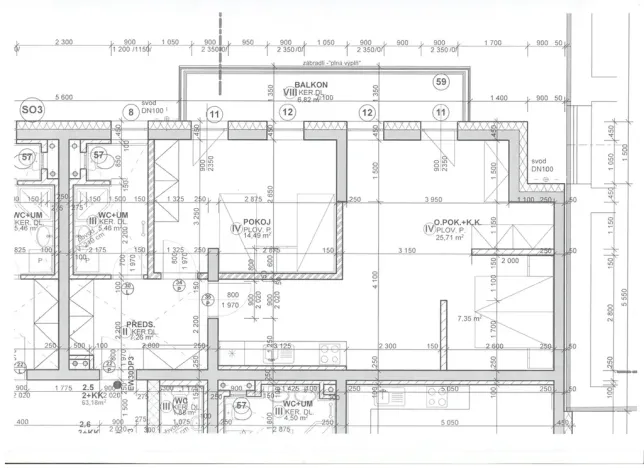
Nabízíme Vám k prodeji nový byt o velikosti 2+kk+balkon s částečně stavebně odděleným prostorem pro spaní v obývacím pokoji, označený jako byt 12, nacházející se ve 2. NP o celkové ploše včetně balkonu a zděného sklepa 71,98 m2, který bude stavěn v rámci projektu Bydlení Zahradní v žádané plzeňské čtvrti Slovany na rohu Zahradní a Hradišťské ulice v docházkové vzdálenosti od kompletní občanské vybavenosti a zeleně.

V bytě bude k dispozici obývací pokoj s kuchyňským koutem (25,71 m2) a s částečně stavebně odděleným prostorem pro spaní (7,35 m2) - celkem tedy bude mít ob. pokoj (33,06 m2), dále zde bude k dispozici pokoj 2 (14,49 m2), který je možno využít jako dětský pokoj, předsíň (7,26 m2), koupelna s WC (5,46 m2) a balkon (6,82 m2) přístupný z obou pokojů. Dále k bytu náleží zděný sklep (1,98 m2) v 1. podzemním podlaží domu. Byt bude osazen velmi dobrými standardy zařizovacích předmětů.

Tento byt zde uvádíme jako modelový, v prodeji jsou ještě další byty 2+kk umístěné v různých podlažích domu. K dispozici jsou pro Vás také byty 3+kk.

Podrobné informace získáte u prodejce bytů ABJ reality s.r.o.

K bytu je možné si zakoupit venkovní parkovací stání nacházející se na přilehlém pozemku u domu.

Byty jsou orientovány jak směrem do Zahradní a Hradišťské ulice – jihozápadní orientace, tak do vnitrobloku s východní orientací.

Projekt Bydlení Zahradní tak představuje ideální kombinaci bydlení v žádané plzeňské čtvrti Slovany s dostupnou občanskou vybaveností v docházkové vzdálenosti a dostupnými vycházkovými trasami podél řeky Radbuzy, které Vás dovedou až do centra Plzně, kam dojdete pěšky i s malými dětmi.

Samotná budova bytového domu má pět nadzemních podlaží s 32 byty a jedno podzemní podlaží, ve kterém budou k dispozici částečně krytá parkovací stání a sklepy pro jednotlivé byty. Bytový dům má jeden centrální vchod s výtahem. Nebudou zde komerční prostory. Vytápění domu a ohřev vody bude zajištěno centrálně pomocí teplovodu.

Zahájení výstavby bytového domu je naplánováno na podzim 2024, dokončení domu je naplánováno na podzim roku 2026.

Aktuality z výstavby domu: dokončila se hrubá stavba a provádí se rozvody vody, odpadů, topení a elektřiny v jednotlivých bytech

Makléř

Máte zájem o tento byt?

Tímto, v souladu s nařízením Evropského parlamentu a Rady (EU) 2016/679, v platném znění, prohlašuji, že mi je alespoň 16 let a uděluji tak svůj souhlas se zpracováním zadaných údajů (jméno, telefon, e-mail, ip adresa) společnosti B3 Technology, s.r.o., IČ: 07330600, se sídlem Novostavby 126/23, 435 11 Lom (správce dat), za účelem předání dotazu z tohoto formuláře Vámi vybranému inzerentovi a zpětného kontaktování mé osoby. Osobní údaje bude správce zpracovávat manuálně i automaticky přímo prostřednictvím svých zaměstnanců. Informace předané tímto formulářem budou uloženy v databázi správce maximálně po dobu 10 let. Odvolání souhlasu s uložením a zpracováním poskytnutých dat lze e-mailem na info@origo-reality.cz. V případě podezření na neoprávněné použití Vámi poskytnutých údajů máte právo předat podnět k šetření Úřadu pro ochranu osobních údajů. Více informací
Chystáte se prodat nemovitost?
Pomůžeme Vám!

Přihlášení k odběru

Nenechte si ujít nejnovější nabídky prodeje bytů 2+kk v Plzni.