Pronájem skladu, Ostrov, 214 m2 (ID: 1935820)

Ostrov, Dolní Žďár

Rezervováno
26 750 Kč
/za měsíc
Záloha na služby a poplatky spojené s užíváním prostoru, dle typu nájemníka, paušální servisní poplatek ve výši 10 Kč/m² pronajímané plochy.
Získejte výhodnou HYPOTÉKU Chci hypotéku

Parametry nemovitosti

StavRezervováno
AdresaOstrov, Dolní Žďár
StavbaCihlová
Stav objektuVelmi dobrý
VybavenoČástečně
Lokalita objektuKlidná část obce
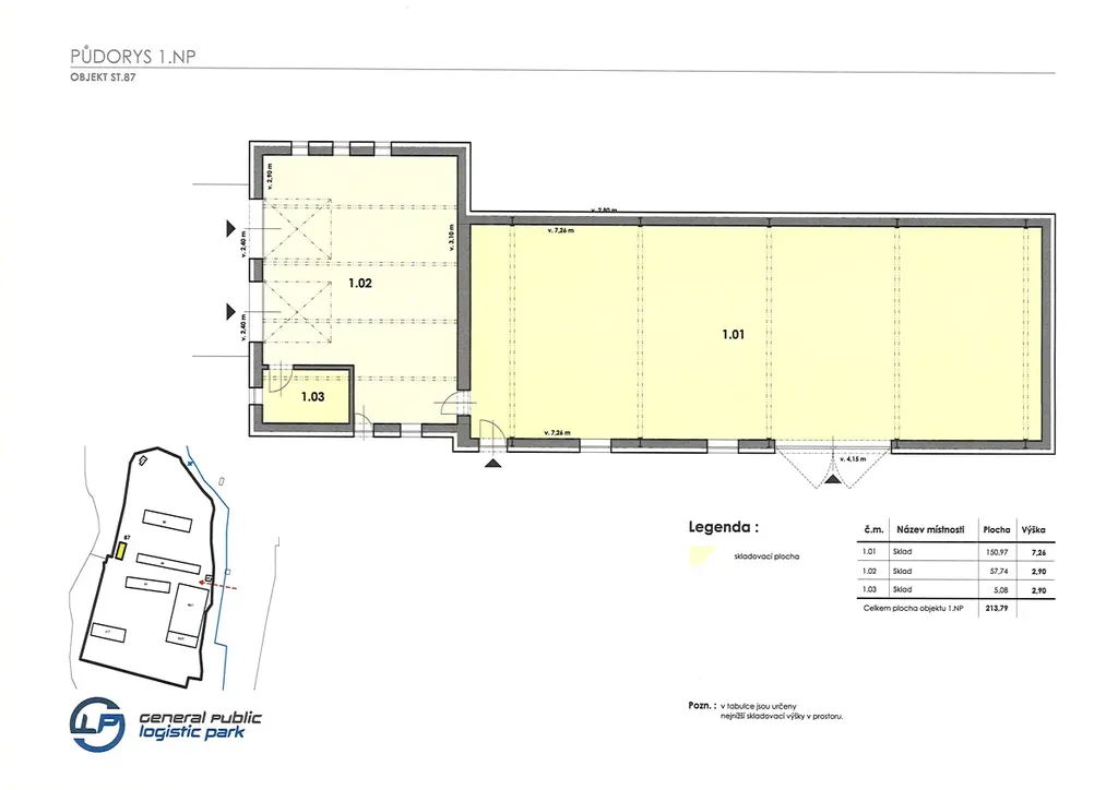
Užitná plocha214 m2
Elektřina230V
PlynPlynovod
OdpadČOV pro celý objekt
KomunikaceDlážděná
TelekomunikaceInternet, Kabelové rozvody
DopravaDálnice, Silnice, MHD, Autobus
VodaVodovod
Topné tělesoRadiátory
Zdroj topeníPlynový kondenzační kotel
Zdroj teplé vodyPlynový kondenzační kotel
Výtah
Bezbarierový přístup
Parkování

Origo partneři v Ostrově

Popis

Dovolujeme si Vám nabídnout k pronájmu komerční prostor s účelem využití jako sklad v klidné části obce Ostrov. Objekt je vybudován z cihlové konstrukce a nachází se v průmyslové zástavbě. Nájemníkům poskytuje velmi dobrý stav a je ideální volbou pro firmy hledající efektivní a praktické skladovací řešení.

Tento přízemní sklad nabízí užitnou plochu o velikosti 214 m² s bezbariérovým přístupem, což usnadňuje manipulaci s materiály a zbožím jak na podnikatelské, tak každodenní úrovni. Prostor je částečně vybaven, což umožňuje flexibilitu při zařizování a organizaci skladu podle individuálních potřeb nájemce. Díky bezproblémovému přístupu k parkování a výhodné dopravní dostupnosti, která zahrnuje dálnici, silnice, MHD a autobus, je toto místo ideálně situováno pro snadný logistický provoz.

Areál byl zrekonstruovaný v roce 2024, což zajišťuje, že prostor odpovídá moderním standardům a požadavkům kladeným na skladovací prostory. Připojení k internetu a detailnější informace o vytápění a ohřevu vody jsou k dispozici na vyžádání. Cena pronájmu je stanovena na 26 750 Kč měsíčně s paušálním servisním poplatkem 10 Kč/m² pronajímané plochy.

Pokud Vás tento sklad zaujal, neváhejte nám napsat nebo zavolat a rádi Vám vše ukážeme osobně. Prohlídky jsou možné po předchozí domluvě. Pro více informací o této nemovitosti nebo sjednání prohlídky nás prosím kontaktujte nebo vyplňte níže uvedený formulář, rádi Vám pomůžeme.

Makléř

Máte zájem o tuto nemovistost?

Tímto, v souladu s nařízením Evropského parlamentu a Rady (EU) 2016/679, v platném znění, prohlašuji, že mi je alespoň 16 let a uděluji tak svůj souhlas se zpracováním zadaných údajů (jméno, telefon, e-mail, ip adresa) společnosti B3 Technology, s.r.o., IČ: 07330600, se sídlem Novostavby 126/23, 435 11 Lom (správce dat), za účelem předání dotazu z tohoto formuláře Vámi vybranému inzerentovi a zpětného kontaktování mé osoby. Osobní údaje bude správce zpracovávat manuálně i automaticky přímo prostřednictvím svých zaměstnanců. Informace předané tímto formulářem budou uloženy v databázi správce maximálně po dobu 10 let. Odvolání souhlasu s uložením a zpracováním poskytnutých dat lze e-mailem na info@origo-reality.cz. V případě podezření na neoprávněné použití Vámi poskytnutých údajů máte právo předat podnět k šetření Úřadu pro ochranu osobních údajů. Více informací
Chystáte se prodat nemovitost?
Pomůžeme Vám!

Přihlášení k odběru

Nenechte si ujít nejnovější nabídky pronájmu skladů v Ostrově (okr. Karlovy Vary).