Prodej rodinného domu, Hostomice, Dubinská, 179 m2 (ID: 1932183)

Dubinská, Hostomice

16 500 000 Kč
/za nemovitost
Hypotéka od 73 745 Kč /měs. Chci hypotéku

Parametry domu

AdresaDubinská, Hostomice
StavbaDřevěná
Stav objektuNovostavba
VybavenoNe
Druh objektuSamostatný
Lokalita objektuOkraj obce
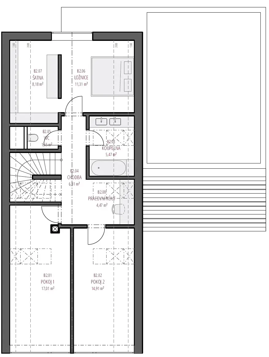
Užitná plocha179 m2
Zastavěná plocha165 m2
Podlahová plocha208 m2
Plocha pozemku430 m2
Plocha zahrady265 m2
Třída energetické náročnostiA - Mimořádně úsporná
Ukazatel energetické náročnosti44 kWh/m2 za rok
Elektřina230V, 400V
OdpadVeřejná kanalizace
KomunikaceAsfaltová
TelekomunikaceInternet, Satelit, Kabelová televize, Kabelové rozvody
DopravaVlak, Dálnice, Silnice, Autobus
VodaVodovod, Studna, Retenční nádrž na dešt’ovou vodu
Topné tělesoPodlahové vytápění, Krbová kamna
Zdroj topeníTepelné čerpadlo, Krbová kamna
Zdroj teplé vodyTepelné čerpadlo, Bojler - elektro
Výtah
Bezbarierový přístup
Parkování
Nízkoenergetický

Origo partneři v Hostomicích

Popis

Nadstandardní nízkoenergetický dům v Hostomicích – výjimečný prostor, příroda a kvalita.

Nabízíme vám výjimečnou novostavbu rodinného domu v klidné části Hostomic – v lokalitě Dubinská, na kraji obce a zároveň v těsném kontaktu s přírodou. Dům je součástí projektu čtyř nízkoenergetických domů, který realizujeme jako místní rodinná firma vlastními silami. Dům jsme stavěli s vědomím, že budeme sousedé, a proto jsme si nemohli dovolit žádné kompromisy v kvalitě. Na rozdíl od běžných developerských projektů pro nás vztah se zákazníkem nekončí podpisem smlouvy.

Tato dvoupodlažní dřevostavba je postavena z CLT panelů Novatop => žádné lehké duté OSB stěny, ale poctivé masivní dřevo. Fasáda a střecha jsou provětrávané, izolované přírodním dřevovláknem => žádný polystyren. Výsledkem je nízkoenergetický dům v energetické třídě A s velmi nízkými provozními náklady z udržitelných ekologických materiálů.

Vybavení domu mj. zahrnuje:
• okna, dveře a HS portály z masivního dřeva s trojsklem,
• fotovoltaiku Victron 8 kWp s baterií 14 kWh,
• tepelné invertorové čerpadlo MasterTherm vzduch–voda pro vytápění i chlazení,
• tiché rekuperační potrubí Zehnder,
• inteligentní elektroinstalaci a řízení domu Loxone,
• zabezpečení domu
• studnu a kapacitní nádrž dešťových vod napojenou na WC, s čerpadly Willo.

Dům je v podstatě k nastěhování – dokončený ve fázi Shell & Core, tedy plně funkční a připravený k individuálnímu dokončení interiéru dle vašich preferencí a stylu (finální podlahy, vnitřní dveře, koupelna, kuchyně…). My se ještě chystáme vysadit zelenou střechu.

Díky velkým proskleným plochám a posuvným portálům se dům přirozeně otevírá do zahrady, která plynule přechází do okolní přírody. Dvě prostorné terasy nabízejí ideální prostor pro relaxaci, grilování nebo ranní kávu s výhledem do zeleně. Součástí pozemku je i krytý přístřešek pro dvě auta s přípravou na nabíječku pro elektromobil a s integrovanou kolnou třeba na zahradní nářadí či zimní kola od aut.

Hostomice nabízejí kompletní občanskou vybavenost – základní a mateřskou školu, lékaře pro děti i dospělé, lékárnu, potraviny, čerpací stanici, místní pivovar i další služby. Obec je výborně dopravně dostupná – leží mezi dálnicemi D5 a D4 s ideální dojezdovou vzdáleností do Prahy, Plzně, Berouna, Hořovic, Příbrami nebo Dobříše.

Zaujalo vás toto kvalitní bydlení, kde se snoubí architektura, technologie a vztah k přírodě? Fotkami ani textem však nelze plně vystihnout atmosféru tohoto místa – je potřeba přijet, nadechnout se vůně dřeva a nechat se domem pohltit.

Ozvěte se nám – rádi vás provedeme osobně a zodpovíme veškeré dotazy. O každém detailu víme vše – každý šroubek prošel našima rukama.

Těšíme se na vaši návštěvu!

Makléř

Máte zájem o tento dům?

Tímto, v souladu s nařízením Evropského parlamentu a Rady (EU) 2016/679, v platném znění, prohlašuji, že mi je alespoň 16 let a uděluji tak svůj souhlas se zpracováním zadaných údajů (jméno, telefon, e-mail, ip adresa) společnosti B3 Technology, s.r.o., IČ: 07330600, se sídlem Novostavby 126/23, 435 11 Lom (správce dat), za účelem předání dotazu z tohoto formuláře Vámi vybranému inzerentovi a zpětného kontaktování mé osoby. Osobní údaje bude správce zpracovávat manuálně i automaticky přímo prostřednictvím svých zaměstnanců. Informace předané tímto formulářem budou uloženy v databázi správce maximálně po dobu 10 let. Odvolání souhlasu s uložením a zpracováním poskytnutých dat lze e-mailem na info@origo-reality.cz. V případě podezření na neoprávněné použití Vámi poskytnutých údajů máte právo předat podnět k šetření Úřadu pro ochranu osobních údajů. Více informací
Chystáte se prodat nemovitost?
Pomůžeme Vám!

Přihlášení k odběru

Nenechte si ujít nejnovější nabídky prodeje rodinných domů v Hostomicích (okr. Beroun).