Prodej rodinného domu, Hostomice, Dubinská, 179 m2 (ID: 1962071)

Dubinská, Hostomice

4 400 000 Kč
/za nemovitost
Hypotéka od 19 665 Kč /měs. Chci hypotéku

Parametry domu

AdresaDubinská, Hostomice
StavbaDřevěná
Stav objektuVe výstavbě
Druh objektuV bloku
Lokalita objektuOkraj obce
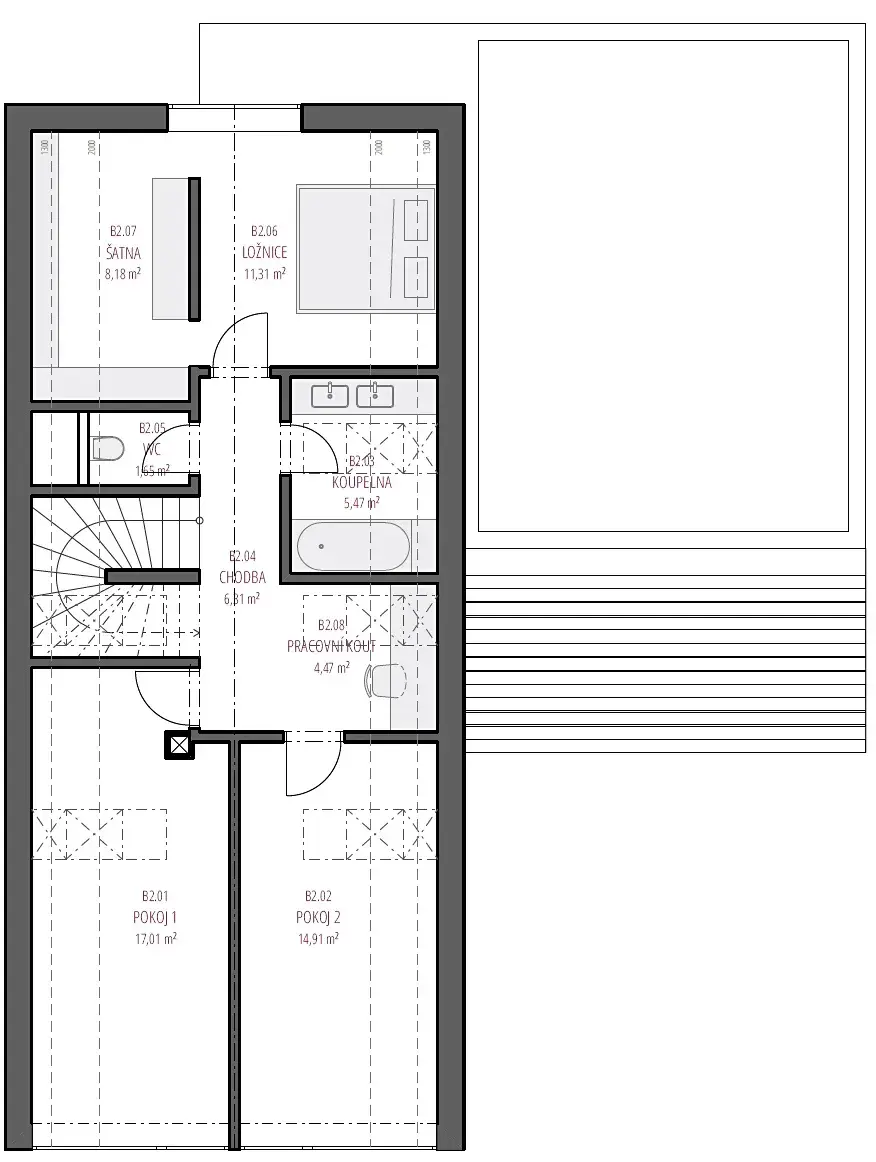
Užitná plocha179 m2
Zastavěná plocha165 m2
Podlahová plocha208 m2
Plocha pozemku430 m2
Plocha zahrady265 m2
Třída energetické náročnostiA - Mimořádně úsporná
Ukazatel energetické náročnosti44 kWh/m2 za rok
Elektřina230V, 400V
OdpadVeřejná kanalizace
KomunikaceAsfaltová
TelekomunikaceTelefon, Internet
DopravaVlak, Dálnice, Silnice, Autobus
VodaVodovod, Studna, Retenční nádrž na dešt’ovou vodu
Parkování
Nízkoenergetický

Origo partneři v Hostomicích

Popis

Rozestavěný rodinný dům (základová deska)

Nabízíme k prodeji rozestavěný rodinný dům v klidné lokalitě Hostomice – Dubinská, na okraji obce v přímém kontaktu s přírodou.

Součástí prodeje je pozemek, platné stavební povolení, kompletní projektová dokumentace, základová deska a kompletní inženýrské sítě. Dům je připraven k okamžité návazné výstavbě bez další administrativy.

Co je předmětem prodeje:

- pozemek o výměře 430 m²
- platné stavební povolení
- kompletní prováděcí a výrobní dokumentace
- základová deska dle projektu včetně prostupů
- hotová asfaltová komunikace
- vybudované přípojky inženýrských sítí (vodovod, splašková a dešťová kanalizace, elektřina, optika)
- vlastní kopaná studna
- retenční nádrž na dešťovou vodu s přepadem do dešťové kanalizace
- provedena skrývka ornice a HTU

Kupující přebírá stavbu ve fázi, kdy je možné okamžitě pokračovat v realizaci domu.

Dům je součástí uceleného architektonického řešení malé lokality čtyř nízkoenergetických rodinných domů.

Exteriér domu je dán projektem (tvar, materiály, okna), vnitřní dispozice a standard interiéru jsou na volbě kupujícího. Cílem je zachování kvalitního a klidného charakteru lokality.

Jeden z domů je již kompletně dokončen a slouží jako referenční stavba, kterou je možné si osobně prohlédnout.

Kupující má možnost:
- pokračovat ve výstavbě vlastní cestou
- nebo se domluvit na výstavbě domu na klíč

Žádná povinná dodavatelská vazba – vše je předmětem dohody.

Lokalita:
Hostomice – Dubinská
Klidná část obce na okraji zástavby, přímý kontakt s přírodou.

V obci kompletní občanská vybavenost (MŠ, ZŠ, lékaři, lékárna, obchody).

Výborná dopravní dostupnost mezi dálnicemi D5 a D4 – Praha, Beroun, Plzeň, Příbram.


Pro koho je nabídka ideální:
- pro kupující, kteří chtějí nový dům bez zdlouhavého povolování,
- pro ty, kteří hledají kvalitní architekturu a připravenost,
- pro lidi, kteří si cení času, jistoty a jasně daných podmínek.

Pokud hledáte bydlení, kde můžete začít stavět prakticky okamžitě, rádi vás seznámíme s projektem osobně a ukážeme referenční hotový dům.

Prodej bez realitky přímým majitelem.

Makléř

Máte zájem o tento dům?

Tímto, v souladu s nařízením Evropského parlamentu a Rady (EU) 2016/679, v platném znění, prohlašuji, že mi je alespoň 16 let a uděluji tak svůj souhlas se zpracováním zadaných údajů (jméno, telefon, e-mail, ip adresa) společnosti B3 Technology, s.r.o., IČ: 07330600, se sídlem Novostavby 126/23, 435 11 Lom (správce dat), za účelem předání dotazu z tohoto formuláře Vámi vybranému inzerentovi a zpětného kontaktování mé osoby. Osobní údaje bude správce zpracovávat manuálně i automaticky přímo prostřednictvím svých zaměstnanců. Informace předané tímto formulářem budou uloženy v databázi správce maximálně po dobu 10 let. Odvolání souhlasu s uložením a zpracováním poskytnutých dat lze e-mailem na info@origo-reality.cz. V případě podezření na neoprávněné použití Vámi poskytnutých údajů máte právo předat podnět k šetření Úřadu pro ochranu osobních údajů. Více informací
Chystáte se prodat nemovitost?
Pomůžeme Vám!

Přihlášení k odběru

Nenechte si ujít nejnovější nabídky prodeje rodinných domů v Hostomicích (okr. Beroun).