Prodej bytu 3+kk, Brno, Chvalovka, 54 m2

Chvalovka, Brno

6 960 000 Kč
/za nemovitost
Hypotéka od 31 107 Kč /měs. Chci hypotéku

Parametry bytu

AdresaChvalovka, Brno
StavbaCihlová
Stav objektuVe výstavbě
Patro1.
VlastnictvíOsobní
Užitná plocha54 m2
Balkon
Garáž
Terasa
Parkování

Origo partneři v Brně

Popis

Aktuální prodej bytových jednotek v poslední výstavbě Kamechy II. sektor CD22, Žebětín

Nabízíme k prodeji byty v OV 1+kk, 2+kk, 3+kk a 4+kk v poslední výstavbě Kamechy II. v Žebětíně, které Vám nabídnou moderní bydlení v 5ti podlažních domech s výtahem v klidné, okrajové části Žebětín navazující na Bystrc.

Bytové jednotky o dispozicích 3+kk s balkonem se nachází v 1.PP, a 2.NP, 3.NP domu CD22:
- byt 0.1. o velikosti 67,90 m2 bez sklepa + terasa 12,63 m2 za cenu 7.970.000,- Kč v 1.PP domu CD22
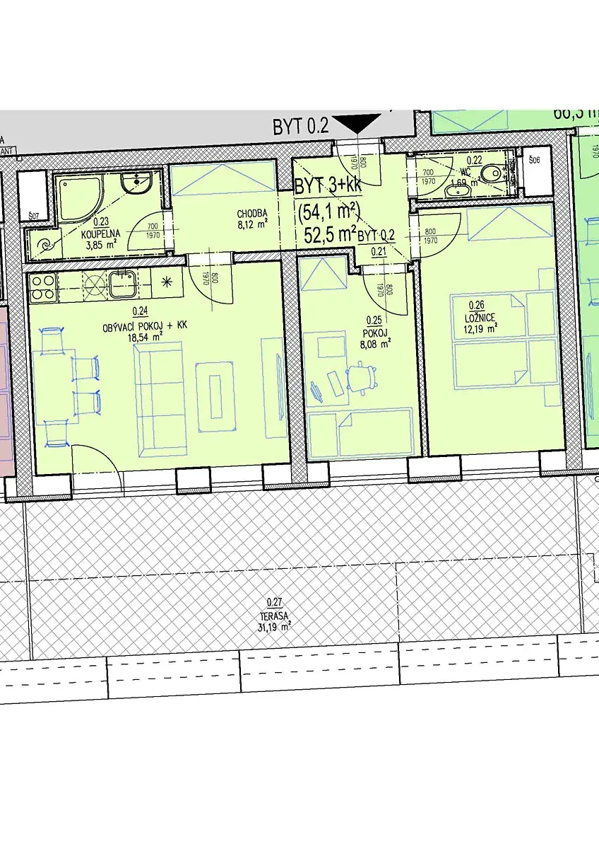
- byt 0.2. - o velikosti 54,10 m2 bez sklepa + terasa 31,19 m2 za cenu 6.960.000,- Kč v 1.PP domu CD22
- byt 0.6. o velikosti 57,30 m2 bez sklepa + terasa 49,63 m2 za cenu 7.466.000,- Kč v 1.PP domu CD22
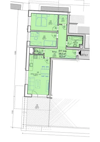
- byt 0.7. o velikosti 66,50 m2 bez sklepa + terasa 16,90 m2 za cenu 8.030.000,- Kč v 1.PP domu CD22
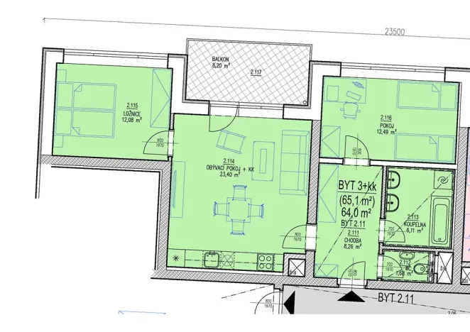
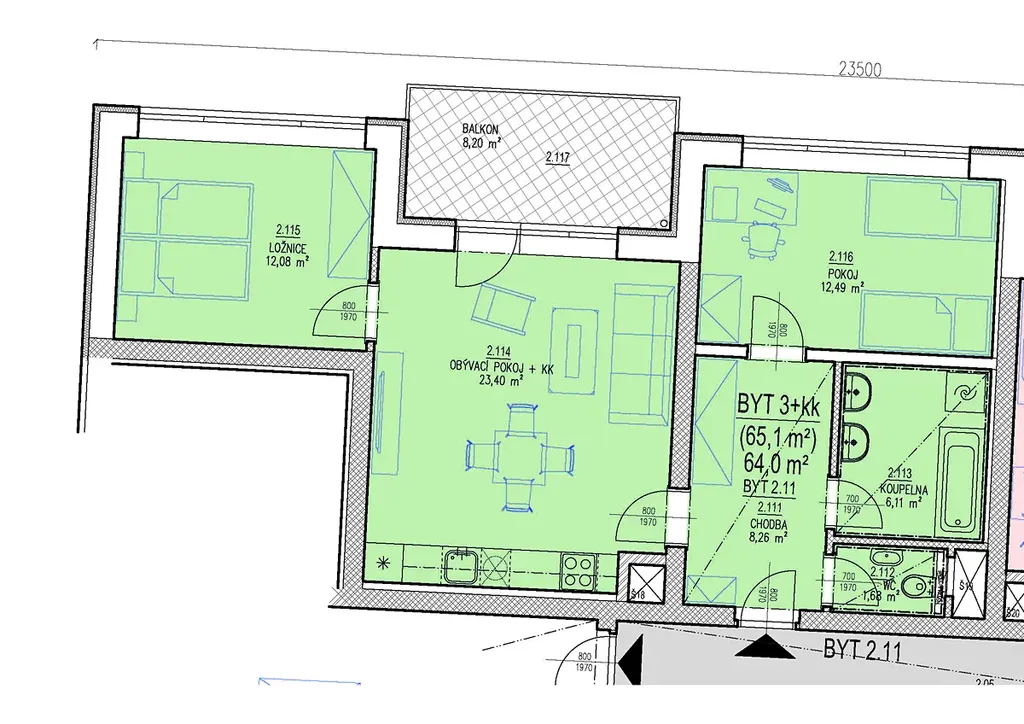
- byt 2.2. o velikosti 65,10 m2 bez sklepa + balkon 8,20 m2 za cenu 8.010.000,- Kč v 2.NP domu CD22
- byt 2.11. o velikosti 65,10 m2 bez sklepa + balkon 8,20 m2 za cenu 8.010.000,- Kč v 2.NP domu CD22
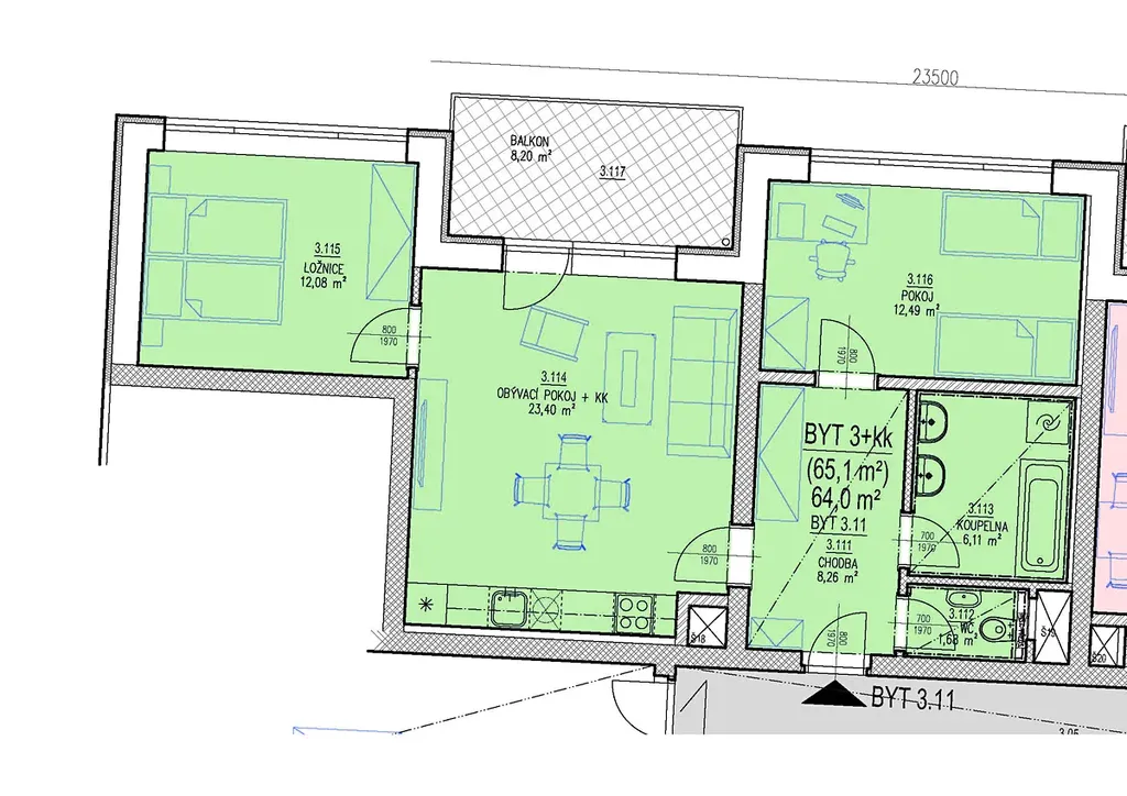
- byt 3.11. o velikosti 65,10 m2 bez sklepa + balkon 8,20 m2 za cenu 8.060.000,- Kč v 3.NP domu CD22

K bytové jednotce je možné dokoupit garážové stání, garážové stání se skladem nebo garáž ve 2.PP a 3.PP domu.

Samozřejmostí bude volba materiálů (zařizovací předměty koupelny a toalety, obklady, podlahy a dveře) pro dokončení Vašeho bydlení, kde budete mít na výběr.

Termín dokončení je stanoven na prosinec 2027.

V rámci lokality a přilehlých městských částí Bystrc a Žebětín máte k dispozici kompletní občanskou vybavenost, kde naleznete obchody a služby.

V rámci lokality máte na dosah oblíbenou cyklostezku, nepřeberné možnosti procházek pro Vaše psí mazlíčky a výhled na Žebětínský rybník. Nesmíme opomenout i Brněnskou přehradu, která je nedaleko a nabízí Vám další možnosti sportovního i volnočasového vyžití.

Na financování části kupní ceny lze využít hypotéční úvěr či úvěr ze stavebního spoření, kdy bytovou jednotku lze použít jako zástavu úvěru. Prodej bytů je přímo od investora, neplatíte tedy provizi.

Pro více informací, či další nabídky bytových jednotek se obracejte na makléře.
Rádi také pomůžeme prostřednictvím našeho finančního poradce s nejvýhodnějším financováním Vašeho nového bydlení.
Zveřejněné fotografie jsou pouze ilustrační.

Makléř

Máte zájem o tento byt?

Tímto, v souladu s nařízením Evropského parlamentu a Rady (EU) 2016/679, v platném znění, prohlašuji, že mi je alespoň 16 let a uděluji tak svůj souhlas se zpracováním zadaných údajů (jméno, telefon, e-mail, ip adresa) společnosti B3 Technology, s.r.o., IČ: 07330600, se sídlem Novostavby 126/23, 435 11 Lom (správce dat), za účelem předání dotazu z tohoto formuláře Vámi vybranému inzerentovi a zpětného kontaktování mé osoby. Osobní údaje bude správce zpracovávat manuálně i automaticky přímo prostřednictvím svých zaměstnanců. Informace předané tímto formulářem budou uloženy v databázi správce maximálně po dobu 10 let. Odvolání souhlasu s uložením a zpracováním poskytnutých dat lze e-mailem na info@origo-reality.cz. V případě podezření na neoprávněné použití Vámi poskytnutých údajů máte právo předat podnět k šetření Úřadu pro ochranu osobních údajů. Více informací
Chystáte se prodat nemovitost?
Pomůžeme Vám!

Přihlášení k odběru

Nenechte si ujít nejnovější nabídky prodeje bytů 3+kk v Brně.