Prodej bytu 3+1, Český Těšín, Ropická, 158 m2 (ID: 1930112)

Ropická, Český Těšín

5 800 000 Kč
/za nemovitost
Hypotéka od 25 922 Kč /měs. Chci hypotéku

Parametry bytu

AdresaRopická, Český Těšín
ID134276
StavbaCihlová
Stav objektuPo rekonstrukci
Patro1. z 2
Lokalita objektuKlidná část obce
VlastnictvíOsobní
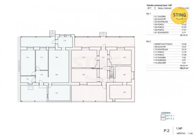
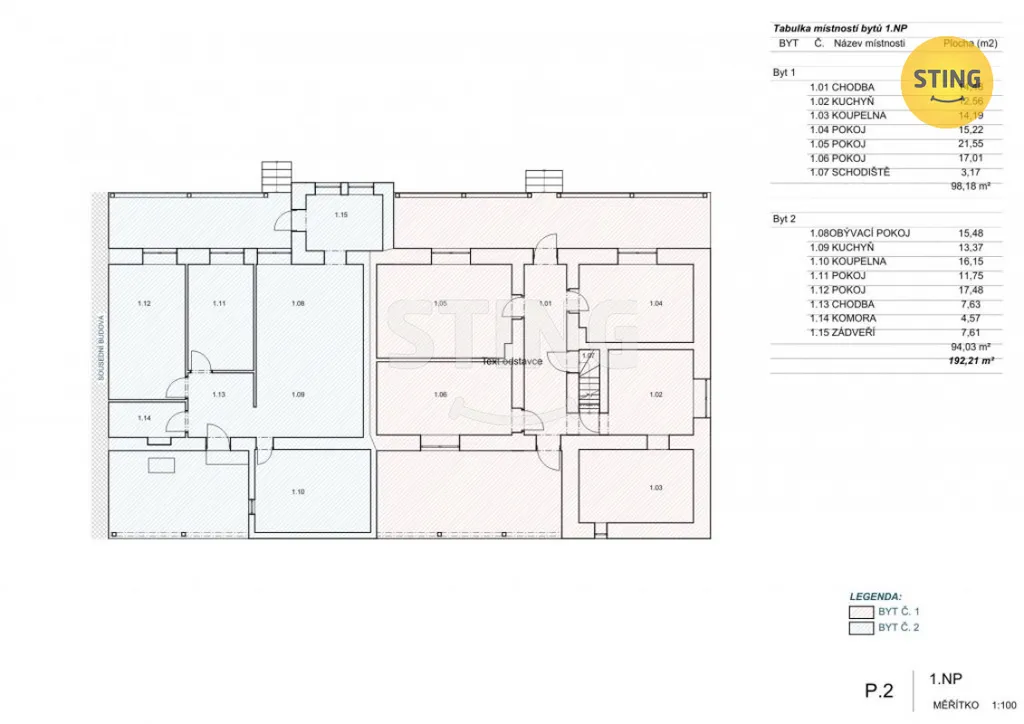
Užitná plocha158 m2
Podlahová plocha158 m2
Třída energetické náročnostiG - Mimořádně nehospodárná
Garáž
Sklep
Terasa
Bezbarierový přístup
Parkování

Origo partneři v Českém Těšíně

Popis

Prostorný byt 3+1 s parametry rodinného domu, dva vstupy, dvě terasy, garáž a parkování – Český Těšín, Dolní Žukov.

Nabízíme k prodeji nadstandardně prostorný byt o dispozici 3+1 a užitné ploše 98 m² + obytná půda 60 m², umístěný v rodinném domě, ve kterém se nacházejí pouze dvě bytové jednotky. Nemovitost je situována v klidné a vyhledávané části Dolní Žukov.

Byt disponuje dvěma samostatnými vchody, což zajišťuje maximální pohodlí a flexibilitu využití. K jednotce náleží dvě terasy, ideální pro relax i posezení s rodinou, dále garáž a parkovací stání, které výrazně zvyšují komfort každodenního bydlení. Součástí nabídky je pozemek o výměře 416 m² určený k užívání k tomuto bytu a zároveň společný podíl na pozemku o celkové výměře 866 m².

Dispozice 3+1 je řešena velmi prakticky a nabízí prostornou vstupní chodbu, tři samostatné neprůchozí pokoje, samostatnou kuchyni a velmi prostornou koupelnu, která poskytuje nadstandardní pohodlí.

Rodinný dům i bytová jednotka prošly kompletní rekonstrukcí, díky které je nemovitost připravena k okamžitému užívání bez nutnosti dalších investic. Byt má samostatné měření energií.

Tato nemovitost je ideální volbou pro ty, kteří hledají byt s parametry rodinného domu, dostatek prostoru, vlastní venkovní zázemí, soukromí a parkování, a zároveň chtějí zůstat v dosahu města a veškeré občanské vybavenosti.

Pro více informací nebo domluvení prohlídky mě neváhejte kontaktovat. Do konce února 2026 nabízíme prostřednictvím našeho partnera úrokové sazby od 4,29 % p.a. Více informací Vám sdělí náš specialista na prohlídce.

Makléř

Máte zájem o tento byt?

Tímto, v souladu s nařízením Evropského parlamentu a Rady (EU) 2016/679, v platném znění, prohlašuji, že mi je alespoň 16 let a uděluji tak svůj souhlas se zpracováním zadaných údajů (jméno, telefon, e-mail, ip adresa) společnosti B3 Technology, s.r.o., IČ: 07330600, se sídlem Novostavby 126/23, 435 11 Lom (správce dat), za účelem předání dotazu z tohoto formuláře Vámi vybranému inzerentovi a zpětného kontaktování mé osoby. Osobní údaje bude správce zpracovávat manuálně i automaticky přímo prostřednictvím svých zaměstnanců. Informace předané tímto formulářem budou uloženy v databázi správce maximálně po dobu 10 let. Odvolání souhlasu s uložením a zpracováním poskytnutých dat lze e-mailem na info@origo-reality.cz. V případě podezření na neoprávněné použití Vámi poskytnutých údajů máte právo předat podnět k šetření Úřadu pro ochranu osobních údajů. Více informací
Chystáte se prodat nemovitost?
Pomůžeme Vám!

Přihlášení k odběru

Nenechte si ujít nejnovější nabídky prodeje bytů 3+1 v Českém Těšíně.