Soccer reality

Prodej rodinného domu, Kamenice, Lomená, 157 m2 (ID: 1929784)

Lomená, Kamenice, Ládví

27 000 000 Kč
/za nemovitost
Hypotéka od 120 674 Kč /měs. Chci hypotéku

Parametry domu

AdresaLomená, Kamenice, Ládví
ID250609
StavbaCihlová
Stav objektuPřed rekonstrukcí
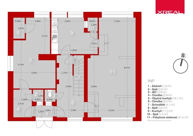
Užitná plocha157 m2
Plocha pozemku5174 m2
Garáž
Sklep
Parkování

Origo partneři v Kamenici

Popis

Letní vila první republiky se vším všudy.
Romantika vzrostlého lesoparku na velkorysém pozemku.
Zdravé bydlení v blízkosti lesů i golfového hřiště Štiřín a Pyšely.

AUTENTICKÝ POCIT
Stylová letní vila z roku 1938 s dochovanými architektonickými a zahradními prvky a pestrou historií svých obyvatel. Před druhou světovou válkou zakoupil vilu pro své rodiče Jaroslav Krejčí, předseda protektorátní vlády a zároveň ministr spravedlnosti. Od roku 1946 užíval vilu stát. V roce 1966 v domě přebývala osoba zařazená časopisem Time mezi 100 nejvlivnějších lidí 20. století a její fotografie byla citována jako nejslavnější fotografie na světě, určitě ji znáte (případně napovíme :o).

VELKÝ POZEMEK A SOUKROMÍ
Rozlehlý pozemek 5 174 m2 s původními dřevinami a charakterem lesoparku poskytuje výjimečné soukromí. Pohodu „jako na zámku“ můžete využit jako soukromý park, kouzelnou zahradu, sportovní aktivity nebo třeba na chov domácích mazlíčků.

VILA
Samostatně stojící rodinný dům s užitnou plochou 157 m2 a terasou 41 m2. Interier je po celý den příjemně osluněn díky jižní orientaci průčelí s výhledem do otevřené hlavní části zahrady a k příjezdu. Původní členění bylo na byt majitele, obývací pokoj s krbem, kuchyň se spíží, schodišťovou halu a WC v přízemí a v patře pak s 2 ložnicemi, koupelnou, chodbou a terasou a garsonku správce s obytnou kuchyní, spíží, chodbou a WC v přízemí. V suterénu je technické zázemí. K domu patří samostatná garáž se skladem situovaná u příjezdu. Třípodlažní stavba je průběžně udržována dle účelu užití. Objekt je napojen na elektrickou a vodovodní síť, zároveň má samostatnou studnu a septik, kanalizační přípojka je připravena, vytápěn byl pevnými palivy. Energetická náročnost budovy je třídy G.

POTENCIÁL NEMOVITOSTI
Dům je před rekonstrukcí a tou můžete navázat na historii, přidat moderní komfort nebo zcela přestavět dle svých individuálních potřeb na rodinné sídlo nebo luxusní rezidenci. Velikost pozemku má investiční potenciál v možném rozdělení pozemku na menší části, nebo využití ke komerčním účelům, pro rekreační objekt nebo třeba wellness centrum. Celý pozemek je nyní dle platného Územního plánu určen pro „Bydlení jiné – Čistě obytné území“ .

PŘÍRODNÍ PROSTŘEDÍ A DOSTUPONOST
Romantický kraj Josefa Lady s množstvím lesů, rybníků, čistým ovzdušm a možnosti relaxace v přírodě. Výhodná poloha v rekreačním prostředí s dobrou dostupností do Prahy, jen 25,5 km na stanici metra „Opatov“, cca 23 minut jízdy dle denní doby. Turistické i sportovní vyžití, nejen na kole. Golfová hřiště velmi blízko, například Štiřín – 4,6 km (6 minut), Pyšely – 7, 7 km (9 minut), Oaks – 10,2 km (14 minut).

Makléř

Máte zájem o tento dům?

Tímto, v souladu s nařízením Evropského parlamentu a Rady (EU) 2016/679, v platném znění, prohlašuji, že mi je alespoň 16 let a uděluji tak svůj souhlas se zpracováním zadaných údajů (jméno, telefon, e-mail, ip adresa) společnosti B3 Technology, s.r.o., IČ: 07330600, se sídlem Novostavby 126/23, 435 11 Lom (správce dat), za účelem předání dotazu z tohoto formuláře Vámi vybranému inzerentovi a zpětného kontaktování mé osoby. Osobní údaje bude správce zpracovávat manuálně i automaticky přímo prostřednictvím svých zaměstnanců. Informace předané tímto formulářem budou uloženy v databázi správce maximálně po dobu 10 let. Odvolání souhlasu s uložením a zpracováním poskytnutých dat lze e-mailem na info@origo-reality.cz. V případě podezření na neoprávněné použití Vámi poskytnutých údajů máte právo předat podnět k šetření Úřadu pro ochranu osobních údajů. Více informací
Chystáte se prodat nemovitost?
Pomůžeme Vám!

Přihlášení k odběru

Nenechte si ujít nejnovější nabídky prodeje rodinných domů v Kamenici (okr. Praha-východ).