Soccer reality

Prodej rodinného domu, Kamenice, Kruhová, 271 m2 (ID: 1130383)

Kruhová, Kamenice

15 990 000 Kč
/za nemovitost
kompletní cena vč. všech poplatků a služeb
Hypotéka od 71 466 Kč /měs. Chci hypotéku

Parametry domu

AdresaKruhová, Kamenice
IDN00081
StavbaCihlová
Stav objektuVelmi dobrý
VybavenoAno
Typ objektuPatrový
Druh objektuSamostatný
Lokalita objektuKlidná část obce
VlastnictvíOsobní
Užitná plocha271 m2
Zastavěná plocha203 m2
Plocha pozemku1522 m2
PlynIndividuální
OdpadVeřejná kanalizace
TopeníÚstřední plynové
VodaVodovod
Garáž
Sklep
Terasa
Parkování
Bazén

Origo partneři v Kamenici

Popis

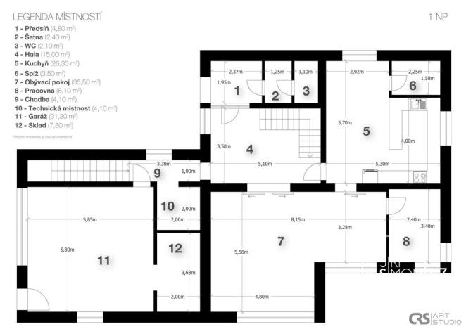
Exkluzivně vám nabízíme k prodeji rodinný dům v Kamenici v ulici Kruhová 551 s dispozicí 5+1, dvougaráží, bazénem, velkým pozemkem a vzrostými dřevinami. Obytná plocha domu je 168 m2, celková užitná plocha je 271 m2 a stojí na pozemku 1522 m2. V přízemí najdete velkou obytnou místnost, velkou samostatnou kuchyň, pracovnu, vstupní schodišťovou halu, wc, technickou místnost, dvougaráž vstup do sklepa. V prvním patře jsou umístěny tři ložnice, koupelna a wc. Na zahradě najdete terasu s bazénem, okrasnou zahradu. Dům je umístěn v klidné rezidenční lokalitě a zajišťuje naprosto klidné bydlení nedaleko Prahy a v těsné blízkosti zámku Štiřín, golfového hřiště. Okolí je obklopeno zelení pro různé sportovní a odpočinkové aktivity. Ve vzdálenosti 150 m od domu je obecní úřad a obchod Billa, zastávka autobusu PID do Prahy a 8 km je vzdálen nájezd na dálnici D1 exit E15. Obec Kamenice je vyhledávanou rezidenční lokalitou pro svou občanskou vybavenost se skvělou dostupností do Prahy.

Makléř

Máte zájem o tento dům?

Tímto, v souladu s nařízením Evropského parlamentu a Rady (EU) 2016/679, v platném znění, prohlašuji, že mi je alespoň 16 let a uděluji tak svůj souhlas se zpracováním zadaných údajů (jméno, telefon, e-mail, ip adresa) společnosti B3 Technology, s.r.o., IČ: 07330600, se sídlem Novostavby 126/23, 435 11 Lom (správce dat), za účelem předání dotazu z tohoto formuláře Vámi vybranému inzerentovi a zpětného kontaktování mé osoby. Osobní údaje bude správce zpracovávat manuálně i automaticky přímo prostřednictvím svých zaměstnanců. Informace předané tímto formulářem budou uloženy v databázi správce maximálně po dobu 10 let. Odvolání souhlasu s uložením a zpracováním poskytnutých dat lze e-mailem na info@origo-reality.cz. V případě podezření na neoprávněné použití Vámi poskytnutých údajů máte právo předat podnět k šetření Úřadu pro ochranu osobních údajů. Více informací
Chystáte se prodat nemovitost?
Pomůžeme Vám!

Přihlášení k odběru

Nenechte si ujít nejnovější nabídky prodeje rodinných domů v Kamenici (okr. Praha-východ).