Prodej ubytování, Rokytnice nad Jizerou, 421 m2

Rokytnice nad Jizerou, okres semily

10 580 000 Kč
/za nemovitost
Hypotéka od 47 286 Kč /měs. Chci hypotéku

Parametry nemovitosti

AdresaRokytnice nad Jizerou, okres semily
ID972660
StavbaCihlová
Stav objektuProjekt
Typ objektuPatrový
VlastnictvíOsobní
Užitná plocha421 m2
Plocha pozemku1782 m2
Třída energetické náročnostiG - Mimořádně nehospodárná
Elektřina230V
PlynPlynovod
OdpadVeřejná kanalizace
TopeníJiné
DopravaSilnice, MHD, Autobus
VodaVodovod
Parkování

Origo partneři v Rokytnici nad Jizerou

Rekonstrukce

Úklidové služby

Popis

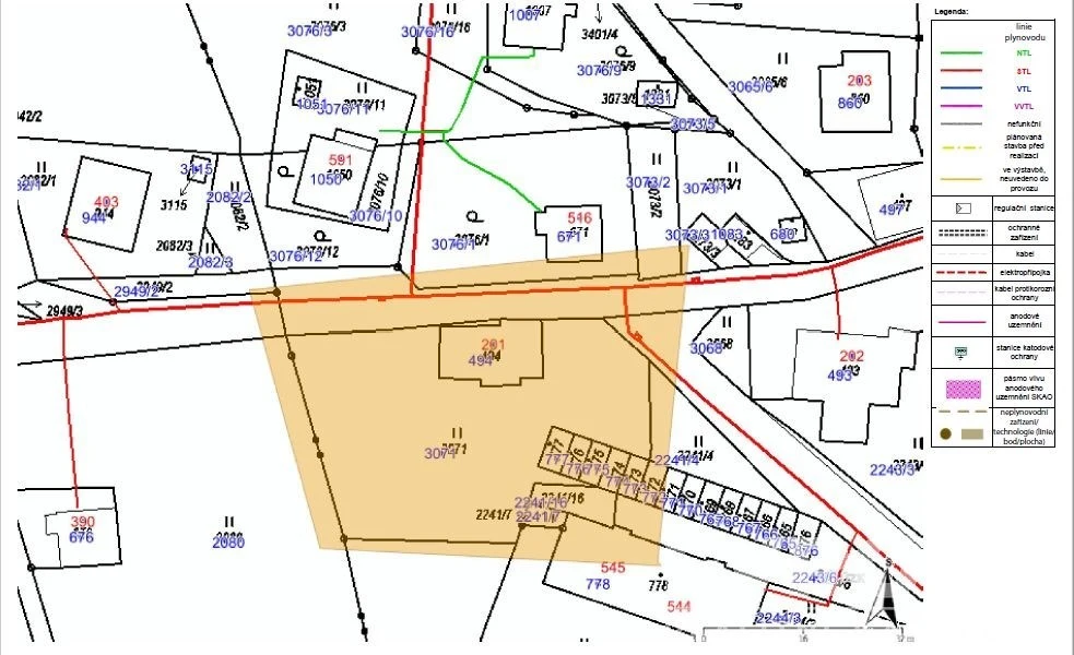
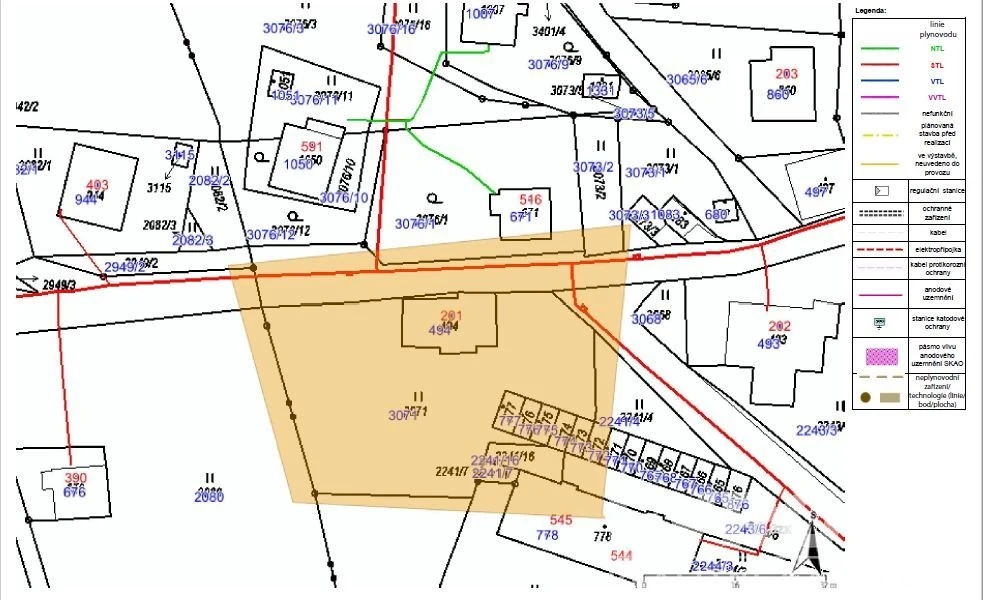
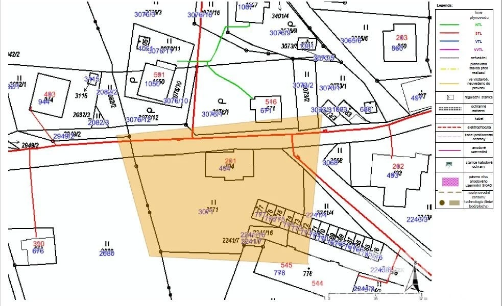
Prodej stavebního pozemku s projektem penzionu „Chalet Emma“ – Rokytnice nad Jizerou.

Nabízíme stavební pozemek s kompletním projektem rodinného penzionu „Chalet Emma“ v atraktivní horské lokalitě Rokytnice nad Jizerou. Projekt je připraven ve stavu před vydáním stavebního povolení, což umožňuje rychlý start investice. V Rokytnici se plánují velké investice a vy můžete mít již nyní projekt, který je připraven k realizaci.

Základní informace o projektu:
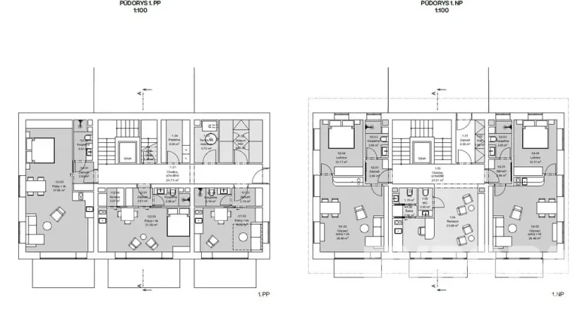
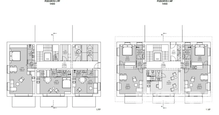
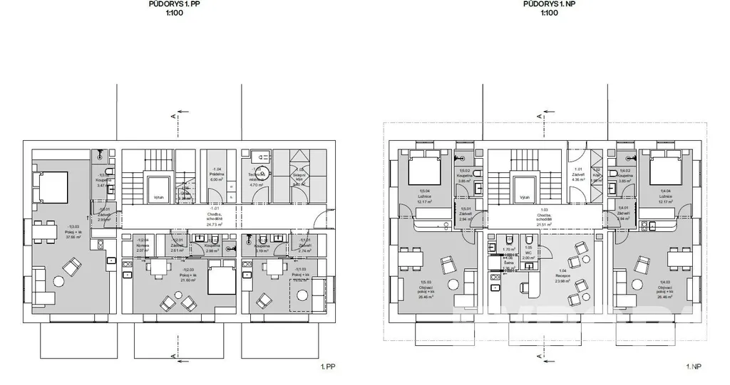
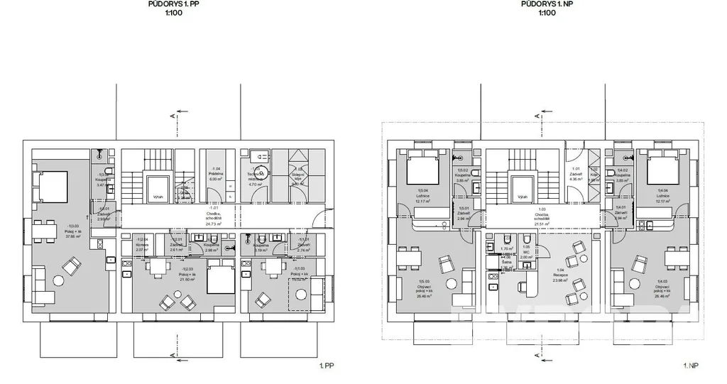
• Rodinný penzion se 7 ubytovacími jednotkami a recepcí
• Podsklepená jednopodlažní budova s obytným podkrovím
• Jednotky mají vlastní sociální zařízení a kuchyňku, některé přímo s přístupem na terasu nebo balkon
• Recepce, společenská místnost a úschovna sportovního vybavení
• Hlavní vstup z ulice, druhý vstup z podzemního podlaží na terasu

Charakteristika lokality:
Pozemek se nachází v oblasti s rozvolněnou zástavbou – v okolí jsou rodinné domy, penziony a bytové domy. Nenachází se v záplavovém ani poddolovaném území. Přístup je z místní komunikace. Pozemek je součástí zastavitelného území města.

Stav připravenosti projektu:
• Projekt je ve stavu před vydáním stavebního povolení
• Připravená plánovací smlouva
• Demoliční výměr stávající stavby s nabytím právní moci
• Zajištěna stanoviska dotčených orgánů
• Kompletní projektová dokumentace je k dispozici

Tento projekt představuje unikátní příležitost pro investory:
Stavební pozemek s připraveným projektem penzionu, včetně všech potřebných dokumentů, je ideální pro rychlou realizaci výstavby ubytovacího zařízení v prestižní horské lokalitě s celoroční turistickou atraktivitou.

Makléř

Máte zájem o tuto nemovistost?

Tímto, v souladu s nařízením Evropského parlamentu a Rady (EU) 2016/679, v platném znění, prohlašuji, že mi je alespoň 16 let a uděluji tak svůj souhlas se zpracováním zadaných údajů (jméno, telefon, e-mail, ip adresa) společnosti B3 Technology, s.r.o., IČ: 07330600, se sídlem Novostavby 126/23, 435 11 Lom (správce dat), za účelem předání dotazu z tohoto formuláře Vámi vybranému inzerentovi a zpětného kontaktování mé osoby. Osobní údaje bude správce zpracovávat manuálně i automaticky přímo prostřednictvím svých zaměstnanců. Informace předané tímto formulářem budou uloženy v databázi správce maximálně po dobu 10 let. Odvolání souhlasu s uložením a zpracováním poskytnutých dat lze e-mailem na info@origo-reality.cz. V případě podezření na neoprávněné použití Vámi poskytnutých údajů máte právo předat podnět k šetření Úřadu pro ochranu osobních údajů. Více informací
Chystáte se prodat nemovitost?
Pomůžeme Vám!

Přihlášení k odběru

Nenechte si ujít nejnovější nabídky prodeje ubytování v Rokytnici nad Jizerou.