Prodej bytu 3+1, Hradec Králové, 84 m2 (ID: 1925545)

Hradec Králové

8 200 000 Kč
Hypotéka od 36 649 Kč /měs. Chci hypotéku

Parametry bytu

AdresaHradec Králové
IDN683
StavbaPanelová
Lokalita objektuCentrum obce
VlastnictvíOsobní
Užitná plocha84 m2
Třída energetické náročnostiD - Méně úsporná

Origo partneři v Hradci Králové

Popis

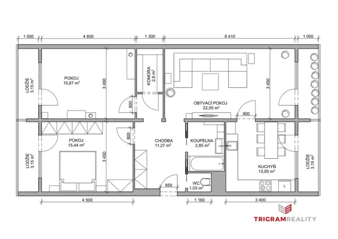
Zprostředkujeme prodej moderně zrekonstruovaného bytu 3+1 o velikosti 84,36 m² se čtyřmi lodžiemi. Byt je umístěn v 9. patře částečně zrevitalizovaného panelového domu na třídě Edvarda Beneše, v klidné části Moravského Předměstí. Orientace do dvou světových stran zajišťuje velmi dobré osvětlení a snadné větrání. Z dětského pokoje a ložnice se otevírá výhled do parku.

Rekonstrukce a vybavení bytu
Byt prošel v roce 2020 kompletní a rozsáhlou rekonstrukcí s nadstandardními prvky. Jádro bylo vyzděno z pórobetonu, původní kovové zárubně byly vyřezány a průchody mezi místnostmi rozšířeny. Realizovány byly kompletně nové rozvody elektřiny, vody i odpadů, celoplošné vystěrkování podlah do jedné roviny s následnou kombinací vinylové podlahy a koberce. V kuchyni a chodbě jsou instalovány SDK podhledy s vestavěným LED osvětlením a světelnými pásky. Interiér doplňují tři bezfalcové dveře se skrytými panty, dvě posuvné dveře do pouzdra a bezpečnostní vstupní dveře.

Vybavení v ceně
Veškeré současné vybavení bytu je zahrnuto v ceně: kompletní kuchyňská linka na míru se spotřebiči a lednicí, obývací pokoj vybavený nábytkem včetně nástěnné LED TV LG 75" a rozkládací sedací soupravy do U, ložnice s americkou postelí typu boxspring, žáruvzdorným trezorem a elektrickou předokenní roletou.

Dům a společenství
Dům je průběžně modernizován a je bez zadlužení. V roce 2025 byla na střeše instalována fotovoltaická elektrárna s bateriovým úložištěm (v letních měsících zajišťuje soběstačnost až 95 % spotřeby elektřiny), zároveň byly v roce 2025 vyměněny vodoměry a čidla topení s dálkovým odečtem a provedeny výměny stoupaček. Část domu byla zateplena v roce 2024 (štíty a krajní sekce). Dále dům disponuje kamerovým systémem ve společných prostorách a vysokorychlostním optickým internetem.

K bytu náleží sklepní kóje v suterénu a sdílená komora na patře. V domě je také kolárna a vstup je řešen čipovým systémem. Veřejné parkování u domu nebo na pronajatých místech.

Bytový dům má kladné hospodaření a vytváří stabilní rezervy. O konkrétních číslech vás rád informuji osobně.

Měsíční poplatky činí přibližně 5 500 Kč. Vytápění a ohřev vody je dálkové.

Byt představuje atraktivní volbu jak pro komfortní rodinné bydlení, tak jako investiční příležitost v jedné z nejžádanějších částí Hradce Králové. V těsné blízkosti najdete supermarkety (Billa, Albert), OC Futurum, dětská hřiště, školky, školy, polikliniku, lékárny a zastávky MHD. Vše na dosah několika minut chůze.

Doporučuji osobní prohlídku, při které naplno oceníte kvalitu provedení i příjemnou atmosféru bytu.

Makléř

Máte zájem o tento byt?

Tímto, v souladu s nařízením Evropského parlamentu a Rady (EU) 2016/679, v platném znění, prohlašuji, že mi je alespoň 16 let a uděluji tak svůj souhlas se zpracováním zadaných údajů (jméno, telefon, e-mail, ip adresa) společnosti B3 Technology, s.r.o., IČ: 07330600, se sídlem Novostavby 126/23, 435 11 Lom (správce dat), za účelem předání dotazu z tohoto formuláře Vámi vybranému inzerentovi a zpětného kontaktování mé osoby. Osobní údaje bude správce zpracovávat manuálně i automaticky přímo prostřednictvím svých zaměstnanců. Informace předané tímto formulářem budou uloženy v databázi správce maximálně po dobu 10 let. Odvolání souhlasu s uložením a zpracováním poskytnutých dat lze e-mailem na info@origo-reality.cz. V případě podezření na neoprávněné použití Vámi poskytnutých údajů máte právo předat podnět k šetření Úřadu pro ochranu osobních údajů. Více informací
Chystáte se prodat nemovitost?
Pomůžeme Vám!

Přihlášení k odběru

Nenechte si ujít nejnovější nabídky prodeje bytů 3+1 v Hradci Králové.