Prodej bytu 4+kk, České Budějovice, 88 m2 (ID: 1924796)

České Budějovice

11 647 500 Kč
/za nemovitost
Hypotéka od 52 057 Kč /měs. Chci hypotéku

Parametry bytu

AdresaČeské Budějovice
ID4kk Štítného, podkroví
StavbaCihlová
Stav objektuNovostavba
Patro5. z 5
VybavenoČástečně
Lokalita objektuCentrum obce
VlastnictvíOsobní
Užitná plocha88 m2
Třída energetické náročnostiB - Velmi úsporná
Elektřina120V
OdpadVeřejná kanalizace
KomunikaceAsfaltová
DopravaVlak, Dálnice, Silnice, MHD, Autobus
VodaMístní zdroj vody
Topné tělesoPodlahové vytápění
Sklep
Terasa
Výtah
Bezbarierový přístup
Parkování

Origo partneři v Českých Budějovicích

Výkup a prodej starého nábytku

Popis

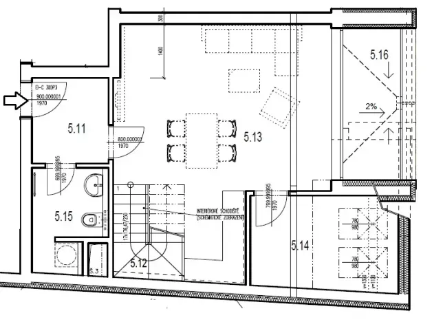
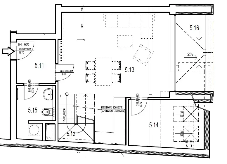
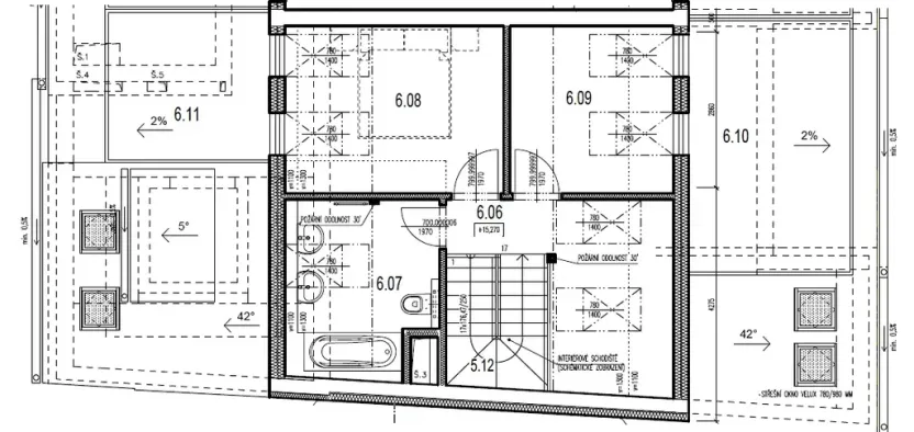
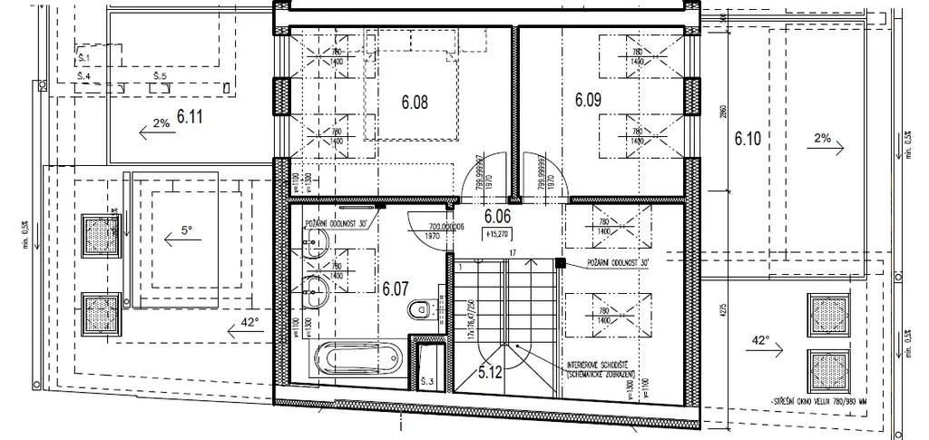
Nabízíme k prodeji prostorný podkrovní byt 4+kk o celkové výměře 88,52 m², který se nachází v novostavbě bytového domu v samotném centru Českých Budějovic, na ulici Štítného.

Byt je součástí moderního projektu s pouhými dvanácti bytovými jednotkami, který nabízí vysoký standard bydlení, kvalitní materiály a výjimečnou polohu v srdci města.
Dispozice bytu zahrnuje vstupní chodbu, tři samostatné pokoje, prostorný obývací pokoj s kuchyňským koutem, dvě koupelny a vnitřní schodiště. K bytu náleží také tři terasy o velikostech 6,12 m², 14,10 m² a 8,40 m², které poskytují příjemný prostor pro relaxaci či posezení na čerstvém vzduchu. Součástí je rovněž samostatný sklep o velikosti 3 m² umístěný v přízemí domu a dvě parkovací stání.

Díky vynikající poloze v centru města je zde v dosahu kompletní občanská vybavenost – obchody, restaurace, školy, úřady i kulturní vyžití. Samozřejmostí je také výborná dopravní dostupnost a pohodlné spojení do všech částí města.
Tento byt představuje ideální kombinaci moderního bydlení, nadstandardního komfortu a jedinečné lokality v samém srdci Českých Budějovic.

Makléř

Máte zájem o tento byt?

Tímto, v souladu s nařízením Evropského parlamentu a Rady (EU) 2016/679, v platném znění, prohlašuji, že mi je alespoň 16 let a uděluji tak svůj souhlas se zpracováním zadaných údajů (jméno, telefon, e-mail, ip adresa) společnosti B3 Technology, s.r.o., IČ: 07330600, se sídlem Novostavby 126/23, 435 11 Lom (správce dat), za účelem předání dotazu z tohoto formuláře Vámi vybranému inzerentovi a zpětného kontaktování mé osoby. Osobní údaje bude správce zpracovávat manuálně i automaticky přímo prostřednictvím svých zaměstnanců. Informace předané tímto formulářem budou uloženy v databázi správce maximálně po dobu 10 let. Odvolání souhlasu s uložením a zpracováním poskytnutých dat lze e-mailem na info@origo-reality.cz. V případě podezření na neoprávněné použití Vámi poskytnutých údajů máte právo předat podnět k šetření Úřadu pro ochranu osobních údajů. Více informací
Chystáte se prodat nemovitost?
Pomůžeme Vám!

Přihlášení k odběru

Nenechte si ujít nejnovější nabídky prodeje bytů 4+kk v Českých Budějovicích.