Prodej bytu 2+kk, Čachrov - Javorná, 45 m2

Čachrov, Javorná

4 490 000 Kč

plus provize RK
Hypotéka od 20 068 Kč /měs. Chci hypotéku

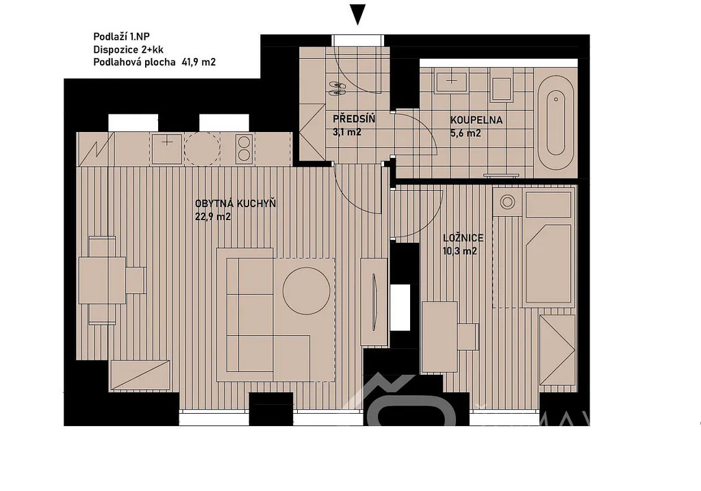
Parametry bytu

AdresaČachrov, Javorná
ID002028KH
StavbaSmíšená
Stav objektuPo rekonstrukci
VlastnictvíOsobní
Užitná plocha45 m2
Třída energetické náročnostiE - Nehospodárná

Origo partneři v Čachrově

Podlahy

Stěhovací služby

Popis

Světlý vzdušný apartmán 2+kk o podlahové ploše 42 m², kompletně plně vybavený.
Lokalita: ŠUMAVA, malebná obec Javorná ležící v CHKO Šumava na spojnici města Klatovy a jen 10 km od známého rekreačního střediska Železná Ruda. V obci jsou dva lyžařské vleky a čtyři sjezdovky o délce 2 km. Svou nadmořskou výškou 850 m n. m. a okolní krajinou je Javorná situována do šumavského podhůří s nádhernou zalesněnou krajinou s úžasnými výhledy do vnitrozemí.
Popis domu: komplexní rekonstrukcí bývalého hotelu vznikl nádherný a moderní bytový dům od architekta nominovaného na Českou cenu za architekturu. Součástí je vlastní zázemí s kolárnou a lyžárnou. Dům má moderní architektonickou tvář, je dokonale zateplený, okna jsou plastová s izolačním trojsklem v antracitovém odstínu. Topení zajišťují tři moderní, inteligentní a účinná tepelná čerpadla vzduch/voda zn. NIBE F 2040. Samozřejmostí je i vlastní parkoviště s vymezeným stání pro jednotlivé byty. Kolaudace domu proběhla v prosinci 2022 a ve dvou objektech je celkem 40 bytových jednotek. Napojen je na obecní vodovod a kanalizaci, zajištěna je i správa domu s úklidem a zimní údržbou parkoviště. Správa domu může dokonce zajistit i komerční pronájem apartmánu v době, kdy by ho vlastník nevyužíval – tím se z apartmánu stává výnosová investice.
Popis apartmánu: světlost, vzdušnost a stylové značkové vybavení je první, co vás upoutá při vstupu do vlastního bytu. Ten se nachází v 1. NP hned vedle relaxační zóny, situovaný je na jihozápad. Dispozičně se jedná o byt 2+kk, kdy v předsíni je vestavěná prostorná šatní stěna s věšáky. Vlevo je vstup do koupelny s vanou a skleněnou zástěnou, bateriemi Hansgrohe, závěsným WC a otopným žebříkem. Obývací pokoj s kuchyňskou linkou i vedlejší samostatná ložnice má bezparapetová okna začínajícími od podlahy – to dodává této místnosti dostatek světla. Podlahová krytina je z vinylu s dekorem dřeva. Kompletní nábytkové vybavení je od firmy Hanák (kuchyňská linka, vestavěná skříň v předsíni, nábytek v obývací místnosti a vestavěné skříně v ložnici). Čalouněný nábytek je od firmy UNAR (rozkládací pohovka s matrací pro každodenní užívání v plné velikosti 180/200 cm, manželská postel v ložnici o velikosti 180/200 cm). Kuchyňská linka je kompletně vybavena spotřebičemi zn. Elektrolux (velká lednička, mrazák, varná deska, mikrovlnná trouba s grilem, velká myčka a digestoř). Součástí je i televizor Samsung. Vytápění je možno ovládat dálkově s aplikací v telefonu, k dispozici je WIFI, Smart TV a vstupní dveře jsou zabezpečeny elektronickým číselným kódem. K dispozici je uzamykatelná lyžárna / kolárna pro valstníky apartmánů. Cena bez povize RK.

Cena: vč. kompletního vybavení.

Makléř

Máte zájem o tento byt?

Tímto, v souladu s nařízením Evropského parlamentu a Rady (EU) 2016/679, v platném znění, prohlašuji, že mi je alespoň 16 let a uděluji tak svůj souhlas se zpracováním zadaných údajů (jméno, telefon, e-mail, ip adresa) společnosti B3 Technology, s.r.o., IČ: 07330600, se sídlem Novostavby 126/23, 435 11 Lom (správce dat), za účelem předání dotazu z tohoto formuláře Vámi vybranému inzerentovi a zpětného kontaktování mé osoby. Osobní údaje bude správce zpracovávat manuálně i automaticky přímo prostřednictvím svých zaměstnanců. Informace předané tímto formulářem budou uloženy v databázi správce maximálně po dobu 10 let. Odvolání souhlasu s uložením a zpracováním poskytnutých dat lze e-mailem na info@origo-reality.cz. V případě podezření na neoprávněné použití Vámi poskytnutých údajů máte právo předat podnět k šetření Úřadu pro ochranu osobních údajů. Více informací
Chystáte se prodat nemovitost?
Pomůžeme Vám!

Přihlášení k odběru

Nenechte si ujít nejnovější nabídky prodeje bytů 2+kk v Čachrově.