Prodej rodinného domu, Raškovice, 180 m2 (ID: 1913746)

Raškovice

9 980 000 Kč
/za nemovitost
SLEVA
Hypotéka od 44 605 Kč /měs. Chci hypotéku

Parametry domu

AdresaRaškovice
StavbaCihlová
Stav objektuVelmi dobrý
Užitná plocha180 m2
Plocha pozemku3100 m2
Třída energetické náročnostiC - Úsporná
Elektřina230V
OdpadVeřejná kanalizace
TelekomunikaceInternet
DopravaAutobus
VodaVodovod, Studna
Zdroj topeníPlynový kondenzační kotel, Krbová kamna
Zdroj teplé vodyPlynový kondenzační kotel
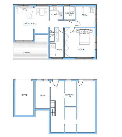
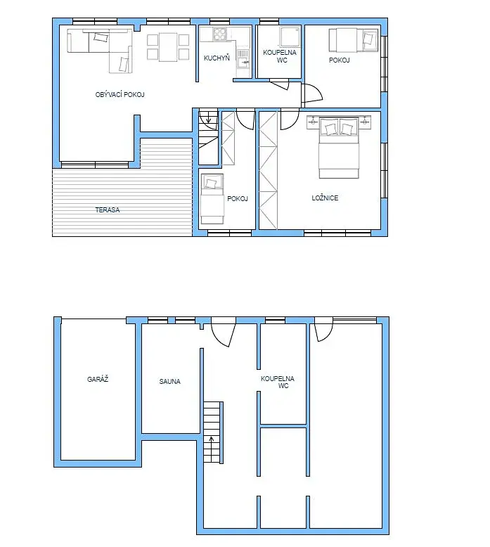
Garáž
Parkování

Origo partneři v Raškovicích

Popis

Hledáte moderní rodinné bydlení v klidu a přírodě, ale zároveň s dobrou dostupností do města?
Tento kompletně zrekonstruovaný cihlový dům v Raškovicích nabízí komfort, prostor i soukromí, které si vaše rodina ocení.

Dům o užitné ploše 180 m² disponuje více než pěti pokoji a novou terasou ideální pro rodinné posezení.

Interiér prošel pečlivou rekonstrukcí kombinuje moderní styl s útulnou atmosférou.
Kvalitní materiály, vestavné skříně a dobrá dispozice s návazností na terasu a zahradu podtrhují vysoký standard bydlení.


K dispozici je garáž, dvě parkovací stání, kompletně vybudovaný vjezd s elektrickou bránou, pozemek se zcela oplocen, vzrostlá okrasná zahrada zajišťuje maximální soukromí.

Rozlehlý pozemek 3 100 m² poskytuje spoustu možností – zadní zalesněná část je vhodná pro chov drobných domácích zvířat, zahradničení nebo vybudování odpočinkové zóny.

Raškovice jsou oblíbené pro klidné prostředí, krásnou přírodu a vynikající dostupnost do okolních měst.
Tento dům je ideální volbou pro ty, kteří chtějí spojit moderní bydlení s venkovským klidem.

Pro domluvení termínu prohlídky nás prosím kontaktujte, můžeme Vám zajistiti financování tohoto domu.

Makléř

Máte zájem o tento dům?

Tímto, v souladu s nařízením Evropského parlamentu a Rady (EU) 2016/679, v platném znění, prohlašuji, že mi je alespoň 16 let a uděluji tak svůj souhlas se zpracováním zadaných údajů (jméno, telefon, e-mail, ip adresa) společnosti B3 Technology, s.r.o., IČ: 07330600, se sídlem Novostavby 126/23, 435 11 Lom (správce dat), za účelem předání dotazu z tohoto formuláře Vámi vybranému inzerentovi a zpětného kontaktování mé osoby. Osobní údaje bude správce zpracovávat manuálně i automaticky přímo prostřednictvím svých zaměstnanců. Informace předané tímto formulářem budou uloženy v databázi správce maximálně po dobu 10 let. Odvolání souhlasu s uložením a zpracováním poskytnutých dat lze e-mailem na info@origo-reality.cz. V případě podezření na neoprávněné použití Vámi poskytnutých údajů máte právo předat podnět k šetření Úřadu pro ochranu osobních údajů. Více informací
Chystáte se prodat nemovitost?
Pomůžeme Vám!

Přihlášení k odběru

Nenechte si ujít nejnovější nabídky prodeje rodinných domů v Raškovicích.