Prodej bytu 2+kk, Praha - Vinohrady, V Horní Stromce, 47 m2

V Horní Stromce, Praha, Vinohrady

10 732 000 Kč
/za nemovitost
Hypotéka od 47 966 Kč /měs. Chci hypotéku

Parametry bytu

AdresaV Horní Stromce, Praha, Vinohrady
ID216
StavbaCihlová
Stav objektuPřed rekonstrukcí
Patro2. z 4
VlastnictvíOsobní
Užitná plocha47 m2
Podlahová plocha50 m2
Třída energetické náročnostiD - Méně úsporná
PlynPlynovod
TopeníÚstřední dálkové
TelekomunikaceTelefon, Internet, Kabelové rozvody
DopravaMHD, Autobus
VodaVodovod
Zdroj topeníPlynový kotel
Sklep
Výtah
Bezbarierový přístup

Origo partneři v Praze 3

Stěhovací služby

Výkup a prodej starého nábytku

Popis

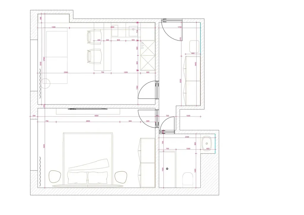
Nabízíme k prodeji svěží a příjemně řešený byt 2+kk o velikosti 47,7 m, umístěný ve druhém patře kompletně zrekonstruovaného domu Horní Stromka. Dům se nachází na pomezí Vinohrad a Vršovic dvou žádaných pražských částí s perfektní atmosférou i občanskou vybaveností. K bytu náleží také sklepní kóje.

Dispozice bytu je promyšlená s ohledem na komfortní každodenní fungování. Vstupní chodba ústí do vzdušného obývacího pokoje s kuchyňskou linkou a jídelní zónou. Kuchyně je řešená podél stěny, poskytuje dostatek pracovního prostoru a plynule navazuje na obývací část. Z obývacího pokoje se vstupuje do ložnice orientované do klidné části domu. Pokoj nabízí dost místa pro manželskou postel i kvalitní úložné řešení.

Koupelna je vybavena sprchovým koutem, umyvadlem a toaletou. V bytě se nachází také praktické vestavěné úložné prvky. Celková dispozice působí svěže, funkčně a nabízí dostatek pohodlí pro jednotlivce i pár.

Lokalita nabízí ideální kombinaci klidného bydlení a života v centru dění. V okolí najdete vyhlášené kavárny, restaurace, obchody i oblíbené parky Havlíčkovy sady, Riegrovy sady nebo Parukářku. Dopravní dostupnost je výborná: pár minut chůze od domu se nachází stanice metra Jiřího z Poděbrad, tramvajové i autobusové linky, cesta do centra trvá jen několik minut.

Byt je ideální jak pro vlastní komfortní bydlení, tak jako velmi zajímavá investice. Pro více informací či domluvení prohlídky nás rádi kontaktujte.

Byt k nastěhování od 15.2.2026

Makléř

Máte zájem o tento byt?

Tímto, v souladu s nařízením Evropského parlamentu a Rady (EU) 2016/679, v platném znění, prohlašuji, že mi je alespoň 16 let a uděluji tak svůj souhlas se zpracováním zadaných údajů (jméno, telefon, e-mail, ip adresa) společnosti B3 Technology, s.r.o., IČ: 07330600, se sídlem Novostavby 126/23, 435 11 Lom (správce dat), za účelem předání dotazu z tohoto formuláře Vámi vybranému inzerentovi a zpětného kontaktování mé osoby. Osobní údaje bude správce zpracovávat manuálně i automaticky přímo prostřednictvím svých zaměstnanců. Informace předané tímto formulářem budou uloženy v databázi správce maximálně po dobu 10 let. Odvolání souhlasu s uložením a zpracováním poskytnutých dat lze e-mailem na info@origo-reality.cz. V případě podezření na neoprávněné použití Vámi poskytnutých údajů máte právo předat podnět k šetření Úřadu pro ochranu osobních údajů. Více informací
Chystáte se prodat nemovitost?
Pomůžeme Vám!

Přihlášení k odběru

Nenechte si ujít nejnovější nabídky prodeje bytů 2+kk v Praze 3.