Prodej bytu 2+kk, Praha - Vinohrady, V Horní Stromce, 48 m2

V Horní Stromce, Praha, Vinohrady

10 980 000 Kč
/za nemovitost
Hypotéka od 49 074 Kč /měs. Chci hypotéku

Parametry bytu

AdresaV Horní Stromce, Praha, Vinohrady
ID215
StavbaCihlová
Stav objektuPřed rekonstrukcí
Patro2. z 4
VlastnictvíOsobní
Užitná plocha48 m2
Podlahová plocha48 m2
Třída energetické náročnostiD - Méně úsporná
PlynPlynovod
OdpadVeřejná kanalizace
TopeníÚstřední dálkové
KomunikaceAsfaltová
TelekomunikaceTelefon, Internet, Kabelová televize
DopravaSilnice, MHD, Autobus
VodaVodovod
Topné tělesoRadiátory
Výtah
Bezbarierový přístup

Origo partneři v Praze 3

Stěhovací služby

Výkup a prodej starého nábytku

Popis

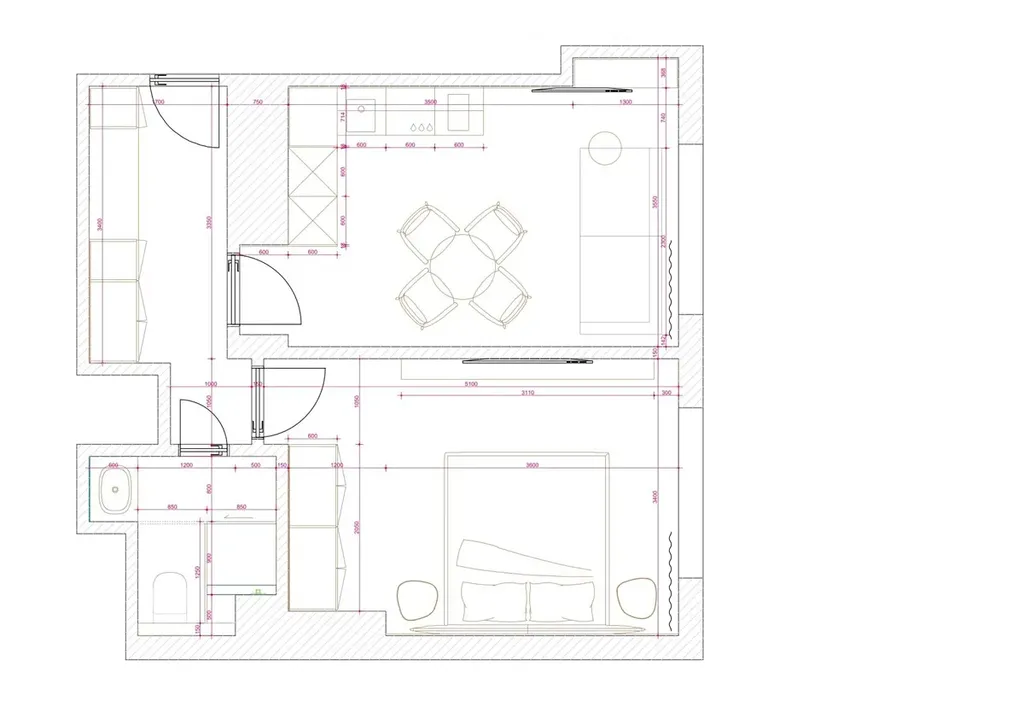
Nabízíme k prodeji moderní a světlý byt 2+kk o celkové výměře 48,8 m, který se nachází ve druhém patře kompletně zrenovované rezidence Horní Stromka na pomezí vyhledávaných pražských čtvrtí Vinohrady a Vršovice. Součástí jednotky je také sklepní kóje. Prakticky řešený byt nabízí komfortní oddělení denní a noční části. Vstupní chodba vede přímo do prostorného obývacího pokoje s kuchyňským koutem a jídelním stolem. Kuchyň je situovaná podél stěny, čímž vytváří dostatek pracovního prostoru a volně navazuje na obývací část. Z obývacího pokoje je přístupná ložnice orientovaná do klidné části bytu. Místo působí útulně, s dostatkem prostoru pro manželskou postel i úložné řešení.

Koupelna je vybavena sprchovým koutem, umyvadlem a toaletou. V bytě nechybí ani další praktické úložné prvky.

Celkově půdorys působí vzdušně, s důrazem na funkčnost a pohodlí, ideální pro jednotlivce či pár.

Lokalita nabízí ideální spojení klidného bydlení a městského komfortu. V bezprostředním okolí se nachází množství oblíbených kaváren, restaurací a obchodů, stejně jako několik parků Havlíčkovy sady, Riegrovy sady či Parukářka. Oceníte také výbornou dopravní dostupnost, stanice metra Jiřího z Poděbrad, tramvajové i autobusové linky jsou vzdálené jen pár minut chůze a cesta do centra trvá několik málo minut.

Byt je vhodný jak pro vlastní bydlení, tak jako výborná investiční příležitost. Pro více informací nebo domluvení osobní prohlídky nás neváhejte kontaktovat.

Byt k nastěhování od 15.2.2026

Makléř

Máte zájem o tento byt?

Tímto, v souladu s nařízením Evropského parlamentu a Rady (EU) 2016/679, v platném znění, prohlašuji, že mi je alespoň 16 let a uděluji tak svůj souhlas se zpracováním zadaných údajů (jméno, telefon, e-mail, ip adresa) společnosti B3 Technology, s.r.o., IČ: 07330600, se sídlem Novostavby 126/23, 435 11 Lom (správce dat), za účelem předání dotazu z tohoto formuláře Vámi vybranému inzerentovi a zpětného kontaktování mé osoby. Osobní údaje bude správce zpracovávat manuálně i automaticky přímo prostřednictvím svých zaměstnanců. Informace předané tímto formulářem budou uloženy v databázi správce maximálně po dobu 10 let. Odvolání souhlasu s uložením a zpracováním poskytnutých dat lze e-mailem na info@origo-reality.cz. V případě podezření na neoprávněné použití Vámi poskytnutých údajů máte právo předat podnět k šetření Úřadu pro ochranu osobních údajů. Více informací
Chystáte se prodat nemovitost?
Pomůžeme Vám!

Přihlášení k odběru

Nenechte si ujít nejnovější nabídky prodeje bytů 2+kk v Praze 3.