Prodej bytu 3+1, Praha, Žitavského, 66 m2

Žitavského, Praha 5

7 600 000 Kč
/za nemovitost
Hypotéka od 33 967 Kč /měs. Chci hypotéku

Parametry bytu

AdresaŽitavského, Praha 5
IDJ12115
StavbaCihlová
Stav objektuPo rekonstrukci
Patro1. z 3
VybavenoNe
Typ objektuPatrový
Druh objektuSamostatný
Lokalita objektuKlidná část obce
VlastnictvíOsobní
Užitná plocha66 m2
Podlahová plocha78 m2
Terasa
Výtah
Bezbarierový přístup
Parkování

Origo partneři v Praze 5

Stěhovací služby

Výkup a prodej starého nábytku

Popis

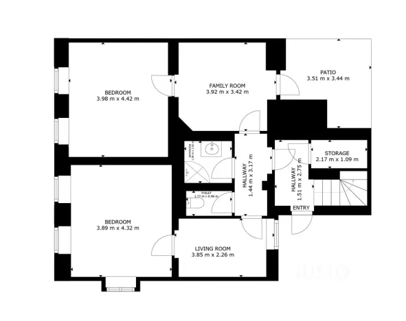
Ve výhradním zastoupení majitele nabízím k prodeji bezbariérovou bytovou jednotku o dispozici 3+1. Celkové plocha s příslušenstvím bez podlahové plochy svislých konstrukcí je 58,9 m² a se svislými konstrukcemi je 66,4 m².

K bytu náleží terasa o výlučném užívání o ploše 12,5 m² a venkovní parkovací stání.

Jednotka disponuje kvalitně provedeným interiérem s moderním designem, přičemž je připravena k okamžitému použití bez nutnosti dalších investic, vyjma kuchyňské linky.

Díky své velikosti a dispozici může bytová jednotka sloužit jak pro vlastní bydlení, tak i na pronájem.

Byt se nachází v kompletně zrekonstruovaném obytném domě, který se nachází v atraktivní a klidné lokalitě Prahy 5 – Zbraslav, na ulici Žitavského a kde jsou pouze 3 byty.

Nízké náklady na vytápění jsou zajištěny díky kvalitní tepelné izolaci a kondenzačnímu plynovému kotli, který zajišťuji vytápění a ohřev vody v celém domě, což potvrzuji i stupeň energetické náročnosti budovy, který je „B“.

Dům je situován v žádané části Zbraslavi s výbornou občanskou vybaveností a dostupností služeb. V okolí najdete například supermarket Lidl (990 m), fitness centrum, restaurace a kavárny, či sportovní a rekreační zařízení.

Nedaleko je i vlaková a autobusová doprava, což zajišťuje skvělou dostupnost do centra Prahy.
Pro více informací o této nemovitosti nebo sjednání prohlídky nás prosím kontaktujte nebo vyplňte formulář.

Makléř

Máte zájem o tento byt?

Tímto, v souladu s nařízením Evropského parlamentu a Rady (EU) 2016/679, v platném znění, prohlašuji, že mi je alespoň 16 let a uděluji tak svůj souhlas se zpracováním zadaných údajů (jméno, telefon, e-mail, ip adresa) společnosti B3 Technology, s.r.o., IČ: 07330600, se sídlem Novostavby 126/23, 435 11 Lom (správce dat), za účelem předání dotazu z tohoto formuláře Vámi vybranému inzerentovi a zpětného kontaktování mé osoby. Osobní údaje bude správce zpracovávat manuálně i automaticky přímo prostřednictvím svých zaměstnanců. Informace předané tímto formulářem budou uloženy v databázi správce maximálně po dobu 10 let. Odvolání souhlasu s uložením a zpracováním poskytnutých dat lze e-mailem na info@origo-reality.cz. V případě podezření na neoprávněné použití Vámi poskytnutých údajů máte právo předat podnět k šetření Úřadu pro ochranu osobních údajů. Více informací
Chystáte se prodat nemovitost?
Pomůžeme Vám!

Přihlášení k odběru

Nenechte si ujít nejnovější nabídky prodeje bytů 3+1 v Praze 5.