Prodej bytu 4+1, Praha - Hlubočepy, 95 m2

Praha 5

9 990 000 Kč
/za nemovitost
Cena je uvedena včetně provize RK
Hypotéka od 44 649 Kč /měs. Chci hypotéku

Parametry bytu

AdresaPraha 5
ID18422
StavbaPanelová
Stav objektuPo rekonstrukci
Patro1. z 7
VybavenoČástečně
Lokalita objektuKlidná část obce
VlastnictvíOsobní
Užitná plocha95 m2
Podlahová plocha95 m2
Třída energetické náročnostiC - Úsporná
Elektřina120V, 230V
OdpadVeřejná kanalizace
TopeníÚstřední dálkové
KomunikaceAsfaltová
TelekomunikaceInternet, Kabelové rozvody
DopravaVlak, Dálnice, Silnice, MHD, Autobus
VodaVodovod
Lodžie
Výtah

Origo partneři v Praze 5

Stěhovací služby

Výkup a prodej starého nábytku

Popis

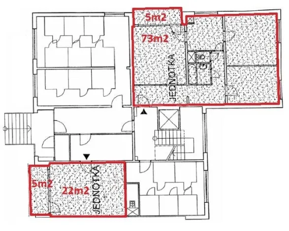
Představuji vám zajímavou nemovitost, kterou lze financovat hypotečním úvěrem. Jedná se o prostor 3+1 73m2 + 5m2 lodžie a dále 1+kk 22m2 + 5m2 lodžie ve zvýšeném přízemí bytového domu. Jedná se o dva fyzicky oddělené samostatné prostory se samostatnými vchody, samostatnými elektroměry, samostatnými vodoměry a optickým kabelem internetu. Každý prostor má navíc svou lodžii, která je u 1+kk nově moderně zasklená. V prostoru jsou nyní nájemníci se dohodami o pokračování, nebo výpovědi. Uvedeno jako jiný nebytový prostor, jako jedna společná jednotka. Velmi dobré parkování v místě oproti jiným sídlištím. 5min pěšky tramvaj směr Smíchovské nádraží a síť obchodů. Nedaleko krásné prokopské údolí. V lokalitě vznikla nová moderní zástavba. V inzerci jsou reálné aktuální fotografie, nikoliv vizualizace.

Makléř

Máte zájem o tento byt?

Tímto, v souladu s nařízením Evropského parlamentu a Rady (EU) 2016/679, v platném znění, prohlašuji, že mi je alespoň 16 let a uděluji tak svůj souhlas se zpracováním zadaných údajů (jméno, telefon, e-mail, ip adresa) společnosti B3 Technology, s.r.o., IČ: 07330600, se sídlem Novostavby 126/23, 435 11 Lom (správce dat), za účelem předání dotazu z tohoto formuláře Vámi vybranému inzerentovi a zpětného kontaktování mé osoby. Osobní údaje bude správce zpracovávat manuálně i automaticky přímo prostřednictvím svých zaměstnanců. Informace předané tímto formulářem budou uloženy v databázi správce maximálně po dobu 10 let. Odvolání souhlasu s uložením a zpracováním poskytnutých dat lze e-mailem na info@origo-reality.cz. V případě podezření na neoprávněné použití Vámi poskytnutých údajů máte právo předat podnět k šetření Úřadu pro ochranu osobních údajů. Více informací
Chystáte se prodat nemovitost?
Pomůžeme Vám!

Přihlášení k odběru

Nenechte si ujít nejnovější nabídky prodeje bytů 4+1 v Praze 5.