Pronájem bytu 2+1, Říčany - Radošovice, Sokolovská, 71 m2

Sokolovská, Říčany, Radošovice

21 500 Kč
/za měsíc
+ poplatky (5.000,- Kč) + kauce 43.000,- Kč + poplatek RK
Získejte výhodnou HYPOTÉKU Chci hypotéku

Parametry bytu

AdresaSokolovská, Říčany, Radošovice
ID18131
StavbaSmíšená
Stav objektuVelmi dobrý
Patro1. z 2
VybavenoČástečně
Lokalita objektuKlidná část obce
VlastnictvíOsobní
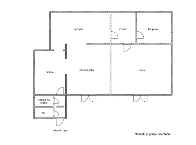
Užitná plocha71 m2
Plocha zahrady100 m2
Třída energetické náročnostiG - Mimořádně nehospodárná
PlynPlynovod
OdpadVeřejná kanalizace
KomunikaceAsfaltová
TelekomunikaceInternet
DopravaVlak, Dálnice, Silnice, MHD, Autobus
VodaMístní zdroj vody

Origo partneři v Říčanech

Popis

Nabízíme k pronájmu krásný, kompletně zrekonstruovaný byt o dispozici 2+1 (71 m²) s vlastní zahradou a soukromým vstupem – ideální pro ty, kteří hledají klid, soukromí a kvalitní bydlení.

Byt se nachází v rodinném domě, avšak má svůj zcela oddělený vstup i samostatný vjezd na zahradu, takže poskytuje maximální míru soukromí a komfortu. Využívat můžete také vlastní zahradu o velikosti cca 100 m², která je ideální pro posezení, odpočinek či drobné zahradničení.

Interiér bytu prošel kompletní rekonstrukcí před 3 lety. Součástí vybavení je moderní a nadstandardně řešená kuchyňská linka. Vytápění zajišťuje plynový kotel, přičemž byt má podružná měření plynu i elektřiny, díky čemuž si nájemník řídí spotřebu dle vlastních potřeb.

Měsíční poplatky činí 5.000,- Kč a zahrnují vše potřebné: plyn, elektřinu, vodné a stočné, svoz odpadu, internet a TV. Poplatky tedy pokryjí kompletní chod domácnosti bez nutnosti dalších smluv s dodavateli.

Měsíční nájemné činí 21.500,- Kč + poplatky (5.000,- Kč). Kauce je ve výši 43.000,- Kč a poplatek realitní kanceláři je ve výši jednoho měsíčního nájemného.

Byt je vhodný pro jednotlivce, pár či klidnou osobu, která ocení soukromí, pořádek a pohodové bydlení. Majitel preferuje slušné a spolehlivé nájemníky s dlouhodobým záměrem.

V případě zájmu o rezervaci termínu prohlídky či doplnění informací mě neváhejte kontaktovat.

Průkaz energetické náročnosti budovy bude dodán, a tak momentálně uvádíme energetickou třídu G.

Makléř

Máte zájem o tento byt?

Tímto, v souladu s nařízením Evropského parlamentu a Rady (EU) 2016/679, v platném znění, prohlašuji, že mi je alespoň 16 let a uděluji tak svůj souhlas se zpracováním zadaných údajů (jméno, telefon, e-mail, ip adresa) společnosti B3 Technology, s.r.o., IČ: 07330600, se sídlem Novostavby 126/23, 435 11 Lom (správce dat), za účelem předání dotazu z tohoto formuláře Vámi vybranému inzerentovi a zpětného kontaktování mé osoby. Osobní údaje bude správce zpracovávat manuálně i automaticky přímo prostřednictvím svých zaměstnanců. Informace předané tímto formulářem budou uloženy v databázi správce maximálně po dobu 10 let. Odvolání souhlasu s uložením a zpracováním poskytnutých dat lze e-mailem na info@origo-reality.cz. V případě podezření na neoprávněné použití Vámi poskytnutých údajů máte právo předat podnět k šetření Úřadu pro ochranu osobních údajů. Více informací
Chystáte se prodat nemovitost?
Pomůžeme Vám!

Přihlášení k odběru

Nenechte si ujít nejnovější nabídky pronájmu bytů 2+1 v Říčanech (okr. Praha-východ).