Prodej bytu 3+1, Plzeň - Bolevec, Toužimská, 72 m2

Toužimská, Plzeň, Bolevec

5 490 000 Kč
Hypotéka od 24 537 Kč /měs. Chci hypotéku

Parametry bytu

AdresaToužimská, Plzeň, Bolevec
ID971619
StavbaPanelová
VlastnictvíOsobní
Užitná plocha72 m2
Třída energetické náročnostiC - Úsporná
Ukazatel energetické náročnosti73 kWh/m2 za rok

Origo partneři v Plzni

Podlahy

Stěhovací služby

Popis

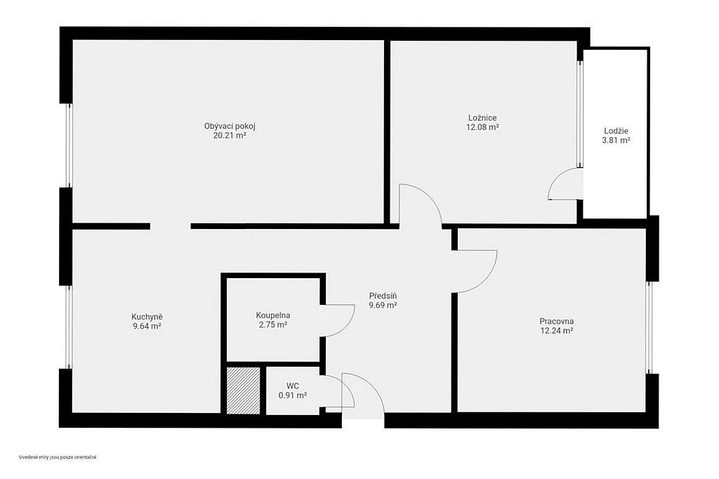
Nabízíme k prodeji citlivě zrekonstruovaný, světlý byt o podlahové ploše 68 m², dispozičně řešený jako 3+1 s lodžií. Bytová jednotka se nachází ve zvýšeném přízemí panelového domu v Toužimské ulici v plzeňské části Košutka.
Byt prošel kompletní rekonstrukcí, která zahrnovala zejména koupelnu, toaletu a kuchyni včetně nových rozvodů, dále pak nové podlahy a interiérové dveře v celém bytě. Orientace bytu je na severní a jižní stranu; na jih je situována také lodžie o velikosti 4,4 m². V suterénu domu je k dispozici vlastní sklepní kóje o velikosti 2,9 m².
Jednotka je vytápěna dálkově, stejně tak i ohřev teplé vody je zajištěn dálkově. Bezplatné parkování je možné přímo na ulici před domem nebo na přilehlých parkovištích.
O dům je dlouhodobě dobře pečováno, nachází se v energetické třídě C a měsíční platba do fondu oprav činí 2 032 Kč. Jednotka se prodává bez vybavení.
Přímo za domem se nachází park s kavárnou a dětským hřištěm. V blízkém okolí je veškerá občanská vybavenost. Výborné dopravní spojení s centrem zajišťuje MHD, přičemž zastávka je vzdálena jen pár kroků od domu.
S vyřízením případného financování vám rádi zdarma pomůžeme.

Makléř

Máte zájem o tento byt?

Tímto, v souladu s nařízením Evropského parlamentu a Rady (EU) 2016/679, v platném znění, prohlašuji, že mi je alespoň 16 let a uděluji tak svůj souhlas se zpracováním zadaných údajů (jméno, telefon, e-mail, ip adresa) společnosti B3 Technology, s.r.o., IČ: 07330600, se sídlem Novostavby 126/23, 435 11 Lom (správce dat), za účelem předání dotazu z tohoto formuláře Vámi vybranému inzerentovi a zpětného kontaktování mé osoby. Osobní údaje bude správce zpracovávat manuálně i automaticky přímo prostřednictvím svých zaměstnanců. Informace předané tímto formulářem budou uloženy v databázi správce maximálně po dobu 10 let. Odvolání souhlasu s uložením a zpracováním poskytnutých dat lze e-mailem na info@origo-reality.cz. V případě podezření na neoprávněné použití Vámi poskytnutých údajů máte právo předat podnět k šetření Úřadu pro ochranu osobních údajů. Více informací
Chystáte se prodat nemovitost?
Pomůžeme Vám!

Přihlášení k odběru

Nenechte si ujít nejnovější nabídky prodeje bytů 3+1 v Plzni.