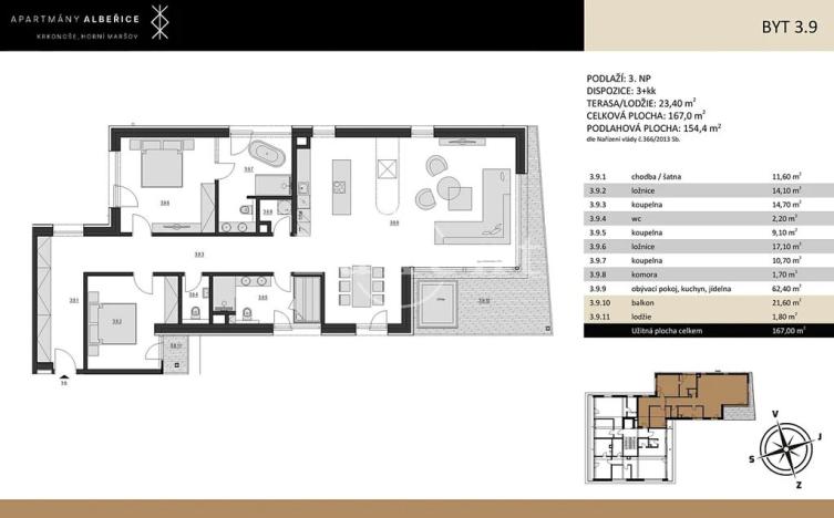
Prodej bytu 3+kk, Horní Maršov, 167 m2

Horní Maršov, Dolní Albeřice

24 490 000 Kč
/za nemovitost
Hypotéka od 109 455 Kč /měs. Chci hypotéku

Parametry bytu

AdresaHorní Maršov, Dolní Albeřice
IDAA-9
StavbaSmíšená
Stav objektuPo rekonstrukci
Patro3.
VlastnictvíOsobní
Užitná plocha167 m2
Třída energetické náročnostiA - Mimořádně úsporná
Ukazatel energetické náročnosti52 kWh/m2 za rok
Balkon
Lodžie
Výtah
Parkování

Origo partneři v Horním Maršově

Popis

V nově vznikajícím projektu Apartmány Albeřice nabízíme k prodeji apartmán o dispozici 3+kk a ploše 143,6 m2 s lodžií 1,8 m2 a balkonem 21,6 m2 – celkem 167 m2. Apartmán se nachází ve 3. NP projektu a je orientován na jih, východ a západ. Vybaven je ve vysokém standardu, který je možné rozšířit do nadstandardního provedení, zejména co do rozsahu obložení stěn a stropů jednotlivých pokojů rustikálním stařeným dřevem. K apartmánu patří úložné prostory v zabezpečeném samostatném skladu. Další jeho součástí je kryté parkovací stání. K využití bude také společná lyžárna v 1. NP s uzamykatelnými boxy.

Jedinečný projekt – luxusní horské Apartmány Albeřice – nabízí neotřelost a vysokou kvalitu v komorní horské luxusní „chalupě“ s pouze jedenácti apartmány, kromě přízemí vždy maximálně tři apartmány na patře. Nachází se v malebné, bez problémů celoročně dostupné obci Dolní Albeřice, která si jako jedna z mála zachovala svůj původní krkonošský ráz. Projekt dosahuje mimořádné energetické úspornosti třídy A.

Na vzniku nové rezidence se podíleli architekti studia Morix a je určena milovníkům soukromí, originální architektury a osobitého stylu. Apartmány mají promyšlené dispozice a neotřelý interiérový design v moderním rustikálním horském stylu s balkony nebo terasami a v přízemí s předzahrádkou. Parkování je kryté u domu a k apartmánům je k dispozici dostatek úložných prostor pro kola, SNB a lyže celé rodiny ve sklepích i ve společné lyžárně s uzamykatelnými boxy. Dům má výtah, vysoký standard vybavení společných prostor, je vytápěn tepelnými čerpadly a součástí standardu apartmánů jsou venkovní žaluzie i SMART systém řízení.

Projekt Apartmány Albeřice vznikne v Dolních Albeřicích – 4 km severně z Horního Maršova na místě někdejší mlékárny a později penzionu, v klidu neporušené přírody, zcela stranou turistických davů, a přesto jen 15 min autem na sjezdovky horských středisek Pec pod Sněžkou, Svoboda nad Úpou nebo Jánské Lázně. Až ke dveřím vede celoročně udržovaná asfaltová cesta. V blízkosti projektu je rodinný vlek a přímo kolem dveří domu vedou turistické trasy i cyklostezky – kdy např. na lanovku pod Sněžku nebo do Horní Malé Úpy do pivovaru Trautenberk v Horním Maršově dojedete jen za cca hodinku jízdy na kole. Nedaleko apartmánového domu se nachází tradiční hotel Vápenka s restaurací a další menší občerstvovací místa, dále půjčovna kol anebo muzeum Vápenka. Dolní Albeřice si zachovaly původní nedotčený horský ráz krkonošské vesnice s tradicí mnoha staletí, bez hustoty nové výstavby a náporu turismu. Za vydatnější občanskou vybaveností a společenským životem dojedete pohodlně během čtvrthodinky autem. Celé údolí i okolí projektu je klidné a umožňuje svobodný pohyb nejen pro vaše děti ve volné horské přírodě svažitých luk a blízkého lesa. Je to místo, které vás okouzlí, upřednostňujete-li své soukromí, bez ve víru horských středisek, která ale máte během minut kdykoliv na dosah. Bližší informace rádi poskytneme v naší kanceláři.

Vizualizace jsou ilustrativní, reálné zhotovení se může lišit.

Makléř

Máte zájem o tento byt?

Tímto, v souladu s nařízením Evropského parlamentu a Rady (EU) 2016/679, v platném znění, prohlašuji, že mi je alespoň 16 let a uděluji tak svůj souhlas se zpracováním zadaných údajů (jméno, telefon, e-mail, ip adresa) společnosti B3 Technology, s.r.o., IČ: 07330600, se sídlem Novostavby 126/23, 435 11 Lom (správce dat), za účelem předání dotazu z tohoto formuláře Vámi vybranému inzerentovi a zpětného kontaktování mé osoby. Osobní údaje bude správce zpracovávat manuálně i automaticky přímo prostřednictvím svých zaměstnanců. Informace předané tímto formulářem budou uloženy v databázi správce maximálně po dobu 10 let. Odvolání souhlasu s uložením a zpracováním poskytnutých dat lze e-mailem na info@origo-reality.cz. V případě podezření na neoprávněné použití Vámi poskytnutých údajů máte právo předat podnět k šetření Úřadu pro ochranu osobních údajů. Více informací
Chystáte se prodat nemovitost?
Pomůžeme Vám!

Přihlášení k odběru

Nenechte si ujít nejnovější nabídky prodeje bytů 3+kk v Horním Maršově.