Prodej bytu 3+kk, Praha - Dolní Měcholupy, Honzíkova, 73 m2

Honzíkova, Praha, Dolní Měcholupy

12 790 000 Kč
/za nemovitost
cena včetně parkovacího stání a komory, cena za převod členského podílu
Hypotéka od 57 164 Kč /měs. Chci hypotéku

Parametry bytu

AdresaHonzíkova, Praha, Dolní Měcholupy
StavbaCihlová
Stav objektuVe výstavbě
Patro4.
VybavenoNe
Lokalita objektuKlidná část obce
VlastnictvíDružstevní
Užitná plocha73 m2
Třída energetické náročnostiB - Velmi úsporná
OdpadVeřejná kanalizace
KomunikaceAsfaltová
DopravaSilnice, MHD, Autobus
VodaVodovod
Topné tělesoRadiátory
Zdroj topeníCentrální dálkové
Zdroj teplé vodyCentrální dálkový ohřev
Balkon
Garáž
Sklep
Výtah
Převod do OV

Origo partneři v Praze 10

Stěhovací služby

Výkup a prodej starého nábytku

Popis

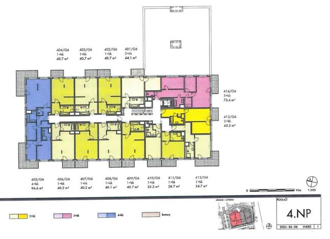
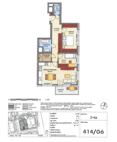
Ve výhradním zastoupení vlastníka nabízíme prodej družstevního bytu 3+kk o ploše 73,4 m² s balkonem o ploše 6,1m, garáží a komorou o ploše 2,9 m² ve 4. NP budovy „G6“ v aktuálně probíhající výstavbě projektu MALÝ HÁJ XV přiléhajícímu k Honzíkově ulici v Praze 10 – Dolních Měcholupech.

Dokončení výstavby je plánované nejpozději na březen roku 2028, (aktuálně předpokládaný termín je říjen 2027).V současné době je ještě možnost klientských změn, do 18.1. 2026 možnost dispozičních změn uvnitř jednotky, do 10.2. 2026 hrubé rozvody technologií včetně zazdívaných prvků zařizovacích předmětů, ukončení rozvodů (vývody vody,kanalizace, ÚT a VZT) včetně určení přesné polohy, roztečí a průměrů.

Předmětem prodeje je družstevní podíl v bytovém družstvu MALÝ HÁJ XV. založeném m.j. společností FINEP, která má s družstevní výstavbou dlouholeté zkušenosti a realizovala již dlouhou řadu úspěšných družstevních projektů.

Převod do "osobního vlastnictví" je možný po kolaudaci a splacení anuity.

Celková cena včetně komory a garáže je 12 790 000Kč, cena za převod družstevního podílu je 4 351 508Kč. Anuita je 8 438 492Kč, splátky jsou rozložené do třiceti let, předpokládaná měsíční splátka po kolaudaci

- byt 44 633Kč + FO 807Kč
- garáž 2 266Kč + FO 100Kč
- komora 573 Kč + FO 32Kč

První splátky anuity jsou až po kolaudaci a předání bytu, podle současného stavu výstavby tedy nejdříve v říjnu 2027.

Oproti hypotečnímu úvěru v tomto případě kupující nemusí dokládat příjmy a absolvovat složitý proces schvalování hypotečního úvěru.


V okolí se nachází několik obchodních center (OC Štěrboholy, Retail park – se širokou nabídkou obchodů a služeb, 5 min autem od Fashion Arena Prague Outlet), velké dětské hřiště, dopravní hřiště, nový sportovní areál. Autobusová zastávka Kardausova se nachází 10 minut od domu, ze které se dostanete během 6-ti minut na metro A – Depo Hostivař.

Makléř

Máte zájem o tento byt?

Tímto, v souladu s nařízením Evropského parlamentu a Rady (EU) 2016/679, v platném znění, prohlašuji, že mi je alespoň 16 let a uděluji tak svůj souhlas se zpracováním zadaných údajů (jméno, telefon, e-mail, ip adresa) společnosti B3 Technology, s.r.o., IČ: 07330600, se sídlem Novostavby 126/23, 435 11 Lom (správce dat), za účelem předání dotazu z tohoto formuláře Vámi vybranému inzerentovi a zpětného kontaktování mé osoby. Osobní údaje bude správce zpracovávat manuálně i automaticky přímo prostřednictvím svých zaměstnanců. Informace předané tímto formulářem budou uloženy v databázi správce maximálně po dobu 10 let. Odvolání souhlasu s uložením a zpracováním poskytnutých dat lze e-mailem na info@origo-reality.cz. V případě podezření na neoprávněné použití Vámi poskytnutých údajů máte právo předat podnět k šetření Úřadu pro ochranu osobních údajů. Více informací
Chystáte se prodat nemovitost?
Pomůžeme Vám!

Přihlášení k odběru

Nenechte si ujít nejnovější nabídky prodeje bytů 3+kk v Praze 10.