Prodej bytu 3+kk, Přísnotice, Žabčická, 99 m2

Žabčická, Přísnotice

8 600 000 Kč
/za nemovitost
včetně provize, včetně právního servisu
Hypotéka od 38 437 Kč /měs. Chci hypotéku

Parametry bytu

AdresaŽabčická, Přísnotice
ID202533
StavbaCihlová
Stav objektuNovostavba
Patro1. z 2
Druh objektuRohový
Lokalita objektuCentrum obce
VlastnictvíOsobní
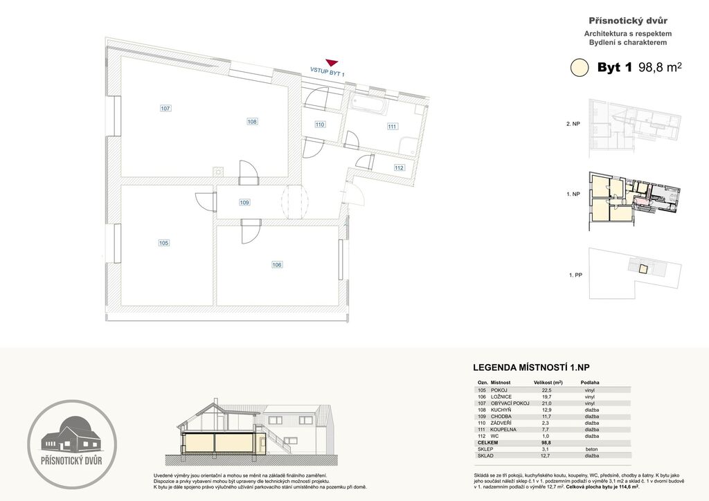
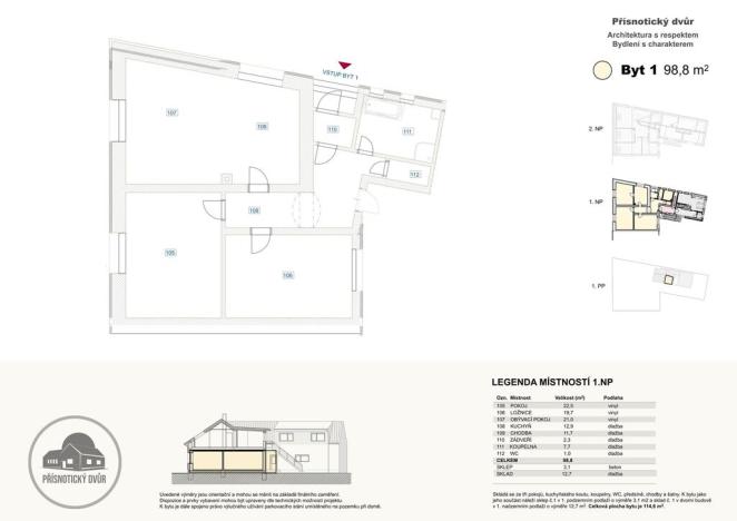
Užitná plocha99 m2
Podlahová plocha115 m2
Třída energetické náročnostiB - Velmi úsporná
Ukazatel energetické náročnosti61.5 kWh/m2 za rok
Elektřina230V, 400V
OdpadVeřejná kanalizace
TopeníLokální tuhá paliva, Jiné
KomunikaceDlážděná, Asfaltová
TelekomunikaceTelefon, Internet, Kabelová televize
DopravaVlak, Dálnice, Silnice, MHD, Autobus
VodaVodovod
Sklep
Parkování
Nízkoenergetický

Origo partneři v Přísnoticích

Popis

Rádi Vám představujeme moderní projekt Přísnotický dvůr, který nabízí tři ojedinělé bytové jednotky v malebné obci Přísnotice na jižní Moravě. Dům s pouhými třemi byty vytváří klidné, komorní prostředí a nachází se v centru obce, při ulici Žabčická – Přibická. Díky výborné dostupnosti do Brna a Židlochovic jde o místo, které dlouhodobě přitahuje zájemce o kvalitní, tiché a pohodlné bydlení. Každý z bytů nese jméno inspirované historií obce – Bartoloměj, Florián a Urban. Nabízená jednotka Urban je situována v přízemí domu.

Byt o dispozici 3+KK nabízí užitnou plochu 98,8 m² s orientací na SV–J–Z. Dominantou bytu je velkorysý obývací pokoj s kuchyní a jídelní částí, který poskytuje dostatek prostoru pro rodinný život i pohodlné zázemí pro setkávání. Součástí bytu je také sklep 3,1 m², venkovní sklad 12,7 m² a parkovací místo, to vše ve výlučném užívání. Celková užitná plocha činí 114,6 m² + parkovací stání. Velký sklad je ideální na pneumatiky, nosiče na auto, sportovní vybavení a díky velikosti se sem bez problémů vejde i motorka.
Projekt je navržen s důrazem na kvalitní provedení, energetickou úspornost a především vysoký akustický komfort, stropy mají skladbu bezmála 0,5 metru, i příčky mezi byty i uvnitř jednotky zajišťují pocit soukromí a minimální přenos hluku. Tiché prostředí a vysoký standard provedení tak poskytují komfort srovnatelný s moderní novostavbou vyšší kategorie.
V kupní ceně je zahrnuto kompletní dokončení s možností volby dekorů obkladů, dlažeb, podlah v dekoru dřeva i dveřního kování. Spolupracujeme s ověřenými kuchyňskými studii, která mohou připravit návrh kuchyně (pozn. kuchyň není v ceně).

Hlavní přednosti bytu Urban:
• Elektrické podlahové vytápění s WI-FI termostaty
• Příprava na krbová kamna
• Izolační trojskla s výbornými tepelnými i akustickými vlastnostmi
• Energetická třída B – nízké náklady na provoz
• SPC minerální podlahy v dekoru dřeva
• Luxusní dveře DANA 2100 mm ve standardu
• Zdivo YTONG Lambda 375 mm
• Koupelna s vanou i sprchovým koutem, WC odděleně
• Kovové brány na míru, příprava na žaluzie

Přísnotice - ideální pro rodiny i aktivní život. Najdete zde MŠ i ZŠ, knihovnu, kulturní akce, sportovní aktivity, fotbal, lehkou atletiku, aktivní Klub Lhéta, zahrádkáře i dobrovolné hasiče. Pro širší občanskou vybavenost obyvatelé běžně využívají nedaleké Židlochovice, kde se nachází supermarkety, lékaři, služby i restaurace.
Dopravní dostupnost je skvělá: ze stanice Žabčice - pravidelná vlaková linka S3 na Brno-Hl. nádraží (cca 20–30 minut) a BUS linka IDS JMK 520 spojuje Přísnotice se Žabčicemi, Židlochovicemi i Vranovicemi.

Stavba je dokončena z 85 %, s plánovaným dokončením na jaro až léto 2026. Standardní financování 20 % / 30 % / 30 % / 20 % je možné upravit dle individuální situace klienta, aby byl celý proces co nejpohodlnější.

Byt Urban nabízí kombinaci prostoru, kvality, klidu a možnosti dotvořit si interiér podle vlastních představ.
Kontaktujte nás pro více informací nebo si domluvte prohlídku.

Makléř

Máte zájem o tento byt?

Tímto, v souladu s nařízením Evropského parlamentu a Rady (EU) 2016/679, v platném znění, prohlašuji, že mi je alespoň 16 let a uděluji tak svůj souhlas se zpracováním zadaných údajů (jméno, telefon, e-mail, ip adresa) společnosti B3 Technology, s.r.o., IČ: 07330600, se sídlem Novostavby 126/23, 435 11 Lom (správce dat), za účelem předání dotazu z tohoto formuláře Vámi vybranému inzerentovi a zpětného kontaktování mé osoby. Osobní údaje bude správce zpracovávat manuálně i automaticky přímo prostřednictvím svých zaměstnanců. Informace předané tímto formulářem budou uloženy v databázi správce maximálně po dobu 10 let. Odvolání souhlasu s uložením a zpracováním poskytnutých dat lze e-mailem na info@origo-reality.cz. V případě podezření na neoprávněné použití Vámi poskytnutých údajů máte právo předat podnět k šetření Úřadu pro ochranu osobních údajů. Více informací
Chystáte se prodat nemovitost?
Pomůžeme Vám!

Přihlášení k odběru

Nenechte si ujít nejnovější nabídky prodeje bytů 3+kk v Přísnoticích.