Prodej rodinného domu, Vrané nad Vltavou, 187 m2

Vrané nad Vltavou

18 500 000 Kč
/za nemovitost
Hypotéka od 82 684 Kč /měs. Chci hypotéku

Parametry domu

AdresaVrané nad Vltavou
StavbaPanelová
Stav objektuVelmi dobrý
VybavenoČástečně
Druh objektuRohový
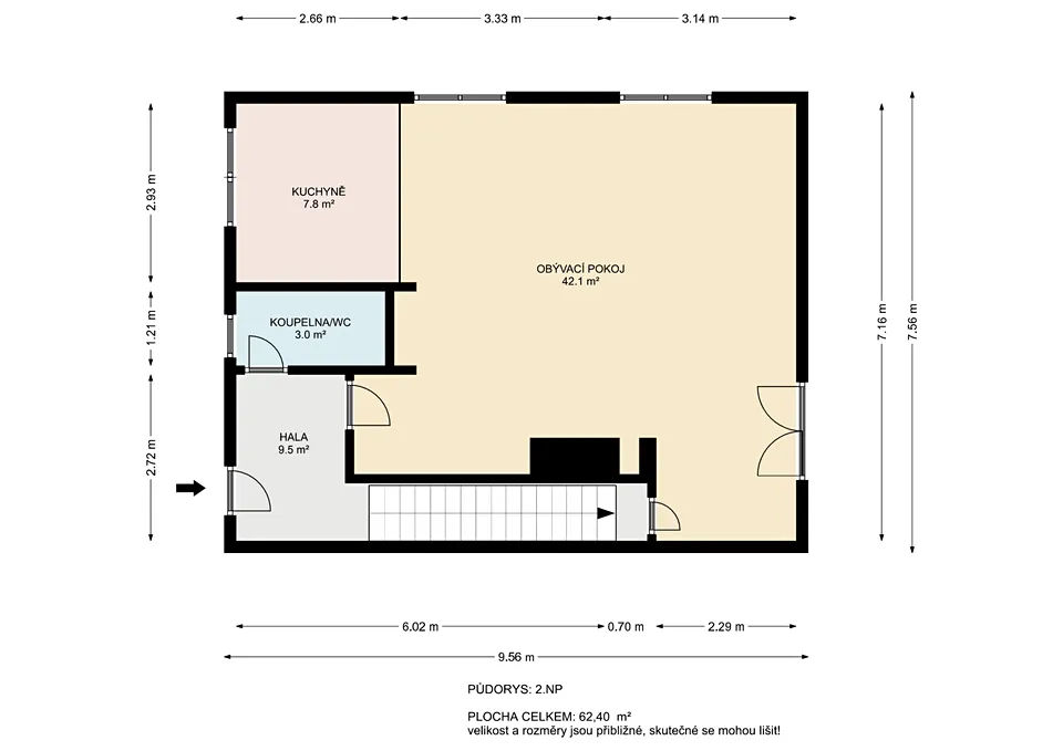
Užitná plocha187 m2
Zastavěná plocha127 m2
Plocha pozemku207 m2
Plocha zahrady60 m2
Třída energetické náročnostiG - Mimořádně nehospodárná
OdpadVeřejná kanalizace
DopravaVlak, Silnice, MHD, Autobus
VodaStudna
Topné tělesoPodlahové vytápění, Krb
Zdroj topeníTepelné čerpadlo, Krb
Zdroj teplé vodyBojler - elektro
Garáž
Parkování

Origo partneři v Vraném nad Vltavou

Popis

Rádi bychom Vám představili tento rodinný dům k prodeji ve Vrané nad Vltavou, který nabízíme k prodeji v exkluzivním zastoupení majitelky. Nachází se v klidné části obce a je ideální volbou pro ty, kteří hledají prostorné bydlení v blízkosti přírody, ale zároveň s dobrým přístupem do města. Dům, postavený v roce 2008 a zkolaudovaný v roce 2018, je ve velmi dobrém stavu a nabízí celkovou užitnou plochu 187 m2, což zajišťuje pohodlné bydlení pro větší rodinu. Výhodou je možnost rozdělení domu na dvě samostatné bytové jednotky a sice o dispozici 2+kk a 4+kk, což dává prostor pro vícegeneračních bydlení Dům je velice pěkně zařízený a udržovaný, vybavený zařizovacími předměty ve vysokém standardu. řada místností je vybavena vestavným nábytkem, schozem na prádlo, centrálním vysavačem a dalšími praktickými řešeními. Tento patrový dům, sestává z více než pěti pokojů, je panelové konstrukce (systém Velox) a má rohové umístění, což zajišťuje dostatek přirozeného světla. Disponuje třemi podlažími, což poskytuje dostatek prostoru pro všechny členy rodiny. K domu náleží malebná zahrada o ploše 60 m2, která i přes menší rozlohu nabízí dostatek místa pro relaxaci nebo drobné zahradničení. Pro vaše vozidla je k dispozici garáž a k tomu dvě parkovací místa (u domu a před garáží). Dům se nachází v zástavbě určené k bydlení a v obytné části obce s dobrou dostupností veřejné dopravy, včetně vlaku, autobusu a MHD. Na Smíchov pojedete pár minut. Lokalita zajišťuje nejen klidné a pohodlné bydlení, ale také rychlý přístup k potřebným službám a do centra města. Pro další informace nebo pro sjednání prohlídky nás neváhejte kontaktovat. Prohlídky jsou možné po předchozí domluvě. Pro více informací o této nemovitosti nebo sjednání prohlídky nás prosím kontaktujte nebo vyplňte níže uvedený formulář, rádi Vám pomůžeme. Dále Vám na vyžádání e-mailem zašleme virtuální prohlídku, kterou nechceme zveřejňovat kvůli ochraně soukromí, stejně tak rádi zodpovíme případné dotazy a zašleme další podklady. Koupi je samozřejmě možné financovat hypotečním úvěrem, s jehož vyřízením Vám rádi budeme nápomocni.

Makléř

Máte zájem o tento dům?

Tímto, v souladu s nařízením Evropského parlamentu a Rady (EU) 2016/679, v platném znění, prohlašuji, že mi je alespoň 16 let a uděluji tak svůj souhlas se zpracováním zadaných údajů (jméno, telefon, e-mail, ip adresa) společnosti B3 Technology, s.r.o., IČ: 07330600, se sídlem Novostavby 126/23, 435 11 Lom (správce dat), za účelem předání dotazu z tohoto formuláře Vámi vybranému inzerentovi a zpětného kontaktování mé osoby. Osobní údaje bude správce zpracovávat manuálně i automaticky přímo prostřednictvím svých zaměstnanců. Informace předané tímto formulářem budou uloženy v databázi správce maximálně po dobu 10 let. Odvolání souhlasu s uložením a zpracováním poskytnutých dat lze e-mailem na info@origo-reality.cz. V případě podezření na neoprávněné použití Vámi poskytnutých údajů máte právo předat podnět k šetření Úřadu pro ochranu osobních údajů. Více informací
Chystáte se prodat nemovitost?
Pomůžeme Vám!

Přihlášení k odběru

Nenechte si ujít nejnovější nabídky prodeje rodinných domů v Vraném nad Vltavou.