Prodej bytu 3+kk, Nehvizdy, Gabčíkova, 62 m2

Gabčíkova, Nehvizdy

8 990 000 Kč
/za nemovitost
Hypotéka od 40 180 Kč /měs. Chci hypotéku

Parametry bytu

AdresaGabčíkova, Nehvizdy
ID1079
StavbaPanelová
Stav objektuVelmi dobrý
Patro1. z 3
Lokalita objektuKlidná část obce
VlastnictvíOsobní
Užitná plocha62 m2
Plocha zahrady269 m2
Třída energetické náročnostiG - Mimořádně nehospodárná
Elektřina230V
PlynPlynovod
OdpadVeřejná kanalizace
KomunikaceDlážděná
VodaMístní zdroj vody

Origo partneři v Nehvizdech

Popis

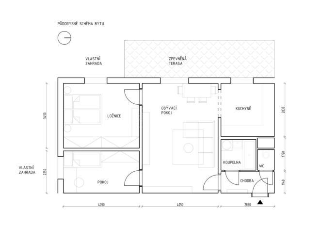
Nabízíme k prodeji krásný byt o dispozici 3+kk v obci Nehvizdy, na ulici Gabčíkova, který je ideálním místem pro rodiny s dětmi. Tento byt s vlastní zahradou o výměře 269m2 poskytuje ideální zázemí pro venkovní vyžití.

Celková plocha bytu 62 m² poskytuje dostatek prostoru pro každodenní život. Byt je situován v prvním patře třípatrového objektu, což zajišťuje snadný přístup pro rodiny s malými dětmi a kočárky. Vlastní zahrada s nadzemním bazénem a zpevněnou terasou nabízí benefity domu a vybízí k trávení volného času na čerstvém vzduchu. Dětem nabízí vyžití, zatímco vy se můžete věnovat přípravě oběda či třeba zahradničení. Místo je umístěno v klidné části obce, v těsné blízkosti sportovišť, cyklostezky a dětského hřiště.

Dispozice bytu je 3+kk. Ze vstupní chodby je vstup do samostatného wc a koupelny. Prostorný obývací pokoj je propojen s kuchyní, která je situována v opticky odděleném prostoru. Z hlavní obytné místnosti je vstup na zpevněnou terasu, která je součástí Vaší vlastní zahrady. Terasa vybízí ke grilování, rodinným sešlostem a dalším aktivitám, které dostatek prostoru nabízí. V bytě jsou dva neprůchozí pokoje, které slouží jako hlavní ložnice a dětský pokoj.

K bytu náleží vlastní parkovací stání před domem.

Tento byt má vynikající umístění v klidné a přátelské lokalitě, což je ideální pro život s rodinou. Je to místo, kde se děti mohou bezpečně hrát a růst, zatímco rodiče si mohou užívat klid a pohodlí domova.

V případě zájmu o prohlídku nás neváhejte kontaktovat.

Makléř

Máte zájem o tento byt?

Tímto, v souladu s nařízením Evropského parlamentu a Rady (EU) 2016/679, v platném znění, prohlašuji, že mi je alespoň 16 let a uděluji tak svůj souhlas se zpracováním zadaných údajů (jméno, telefon, e-mail, ip adresa) společnosti B3 Technology, s.r.o., IČ: 07330600, se sídlem Novostavby 126/23, 435 11 Lom (správce dat), za účelem předání dotazu z tohoto formuláře Vámi vybranému inzerentovi a zpětného kontaktování mé osoby. Osobní údaje bude správce zpracovávat manuálně i automaticky přímo prostřednictvím svých zaměstnanců. Informace předané tímto formulářem budou uloženy v databázi správce maximálně po dobu 10 let. Odvolání souhlasu s uložením a zpracováním poskytnutých dat lze e-mailem na info@origo-reality.cz. V případě podezření na neoprávněné použití Vámi poskytnutých údajů máte právo předat podnět k šetření Úřadu pro ochranu osobních údajů. Více informací
Chystáte se prodat nemovitost?
Pomůžeme Vám!

Přihlášení k odběru

Nenechte si ujít nejnovější nabídky prodeje bytů 3+kk v Nehvizdech.