Prodej rodinného domu, Dobřany, Chotěšovská, 395 m2 (ID: 1894034)

Chotěšovská, Dobřany

13 000 000 Kč
/za nemovitost
vč.kompletního právního servisu a provize RK
Hypotéka od 58 102 Kč /měs. Chci hypotéku

Parametry domu

AdresaChotěšovská, Dobřany
ID0071-NP04570
StavbaCihlová
Stav objektuVelmi dobrý
VybavenoČástečně
Druh objektuSamostatný
Lokalita objektuKlidná část obce
Užitná plocha395 m2
Zastavěná plocha223 m2
Plocha pozemku1015 m2
Plocha zahrady422 m2
Třída energetické náročnostiG - Mimořádně nehospodárná
Elektřina230V
OdpadVeřejná kanalizace
TelekomunikaceInternet
DopravaVlak, Silnice, Autobus
VodaVodovod
Garáž
Parkování

Origo partneři v Dobřanech

Podlahy

Stěhovací služby

Popis

Luxusní vila se zahradou, garáží pro dva vozy a dokonalým soukromím – Dobřany, 8 minut od Plzně

Nabízíme k prodeji výjimečnou rodinnou vilu nacházející se v klidné a vyhledávané části města Dobřany, pouhých 8 minut jízdy od Plzně.
Tato elegantní rezidence z roku 1932 prošla v roce 2005 kompletní a velmi citlivou rekonstrukcí pod vedením architekta, který dokázal propojit prvorepublikový půvab s moderním komfortem.

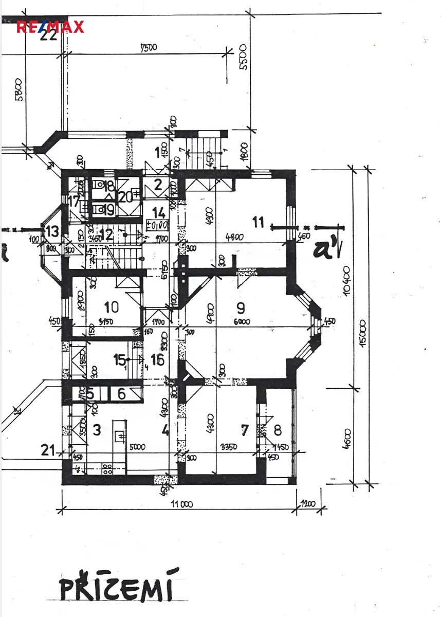
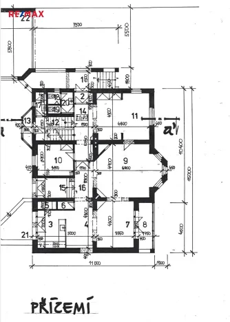
Dispozice a uspořádání

Vila je částečně podsklepená, sklepní prostory slouží jako technické zázemí domu.

V přízemí se nachází:
• reprezentativní vstupní hala,
• prostorný otevřený obytný prostor s kuchyní, jídelnou, zimní zahradou a obývací částí s hudebním koutem,
• pokoj pro hosty,
• koupelna se sprchovým koutem a toaletou.

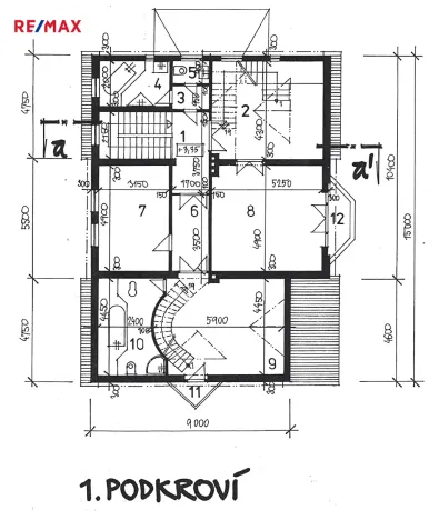
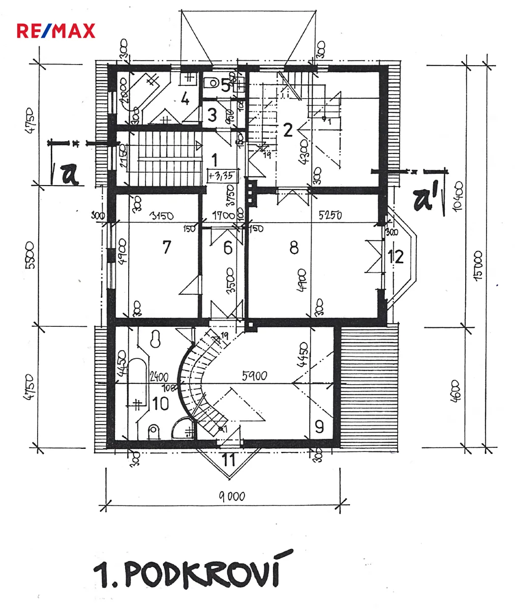
V prvním patře najdete:
• hlavní ložnici s vlastní prostornou koupelnou,
• dva dětské pokoje,
• velkorysý mezonetový pokoj,
• další koupelnu,
• dvě samostatné šatny.

Zázemí a technické vybavení

Na dům navazuje garáž pro dva vozy, dále dílna a skladovací prostory.
Ovládání garážových vrat je řešeno moderně pomocí GSM modulu.

Dům je zateplený. Vytápění zajišťují dvoje krbová kamna nebo elektrokotel, ohřev teplé vody obstarává elektrický boiler.
Nemovitost je napojena na obecní vodovod i kanalizaci; v chodníku je k dispozici plynová přípojka.

Zahrada a exteriér

Za domem se rozprostírá udržovaná okrasná zahrada o celkové ploše 1 015 m², které dominuje vzrostlý ořech.
Součástí zahrady je dřevěný domek na uskladnění dřeva a venkovní terasa přístupná přímo z obývacího pokoje – ideální místo pro relaxaci a posezení s přáteli.
Díky promyšlenému osazení a umístění pozemku nabízí zahrada naprosté soukromí a klid.

Lokalita

Dobřany jsou malebné město s kompletní občanskou vybaveností – školy, školka, obchody, restaurace, zdravotní středisko i sportoviště.
Autobusová zastávka je vzdálena přibližně 100 metrů od domu a vlakové spojení do Plzně je rychlé a pravidelné.


Rádi Vám bezplatně zajistíme nejvýhodnější financování hypotéčním úvěrem.

Makléř

Máte zájem o tento dům?

Tímto, v souladu s nařízením Evropského parlamentu a Rady (EU) 2016/679, v platném znění, prohlašuji, že mi je alespoň 16 let a uděluji tak svůj souhlas se zpracováním zadaných údajů (jméno, telefon, e-mail, ip adresa) společnosti B3 Technology, s.r.o., IČ: 07330600, se sídlem Novostavby 126/23, 435 11 Lom (správce dat), za účelem předání dotazu z tohoto formuláře Vámi vybranému inzerentovi a zpětného kontaktování mé osoby. Osobní údaje bude správce zpracovávat manuálně i automaticky přímo prostřednictvím svých zaměstnanců. Informace předané tímto formulářem budou uloženy v databázi správce maximálně po dobu 10 let. Odvolání souhlasu s uložením a zpracováním poskytnutých dat lze e-mailem na info@origo-reality.cz. V případě podezření na neoprávněné použití Vámi poskytnutých údajů máte právo předat podnět k šetření Úřadu pro ochranu osobních údajů. Více informací
Chystáte se prodat nemovitost?
Pomůžeme Vám!

Přihlášení k odběru

Nenechte si ujít nejnovější nabídky prodeje rodinných domů v Dobřanech (okr. Plzeň-jih).