Prodej rodinného domu, Radnice, Pivovarská, 377 m2

Pivovarská, Radnice

14 700 000 Kč
/za nemovitost
cena včetně provize a právních služeb
Hypotéka od 65 700 Kč /měs. Chci hypotéku

Parametry domu

AdresaPivovarská, Radnice
ID17793
StavbaCihlová
Stav objektuVelmi dobrý
VybavenoČástečně
Typ objektuPatrový
Druh objektuV bloku
Lokalita objektuCentrum obce
Užitná plocha377 m2
Plocha pozemku577 m2
Třída energetické náročnostiD - Méně úsporná
Ukazatel energetické náročnosti292 kWh/m2 za rok
Elektřina230V, 400V
PlynPlynovod
OdpadVeřejná kanalizace
KomunikaceAsfaltová
TelekomunikaceInternet, Kabelové rozvody
DopravaVlak, Silnice, MHD, Autobus
VodaVodovod
Garáž
Sklep
Převod do OV

Origo partneři v Radnicích

Stěhovací služby

Popis

V historickém jádru města Radnice, přímo na náměstí Kašpara Šternberka, nabízíme výjimečný měšťanský dům s kombinací komerčního a rezidenčního potenciálu.

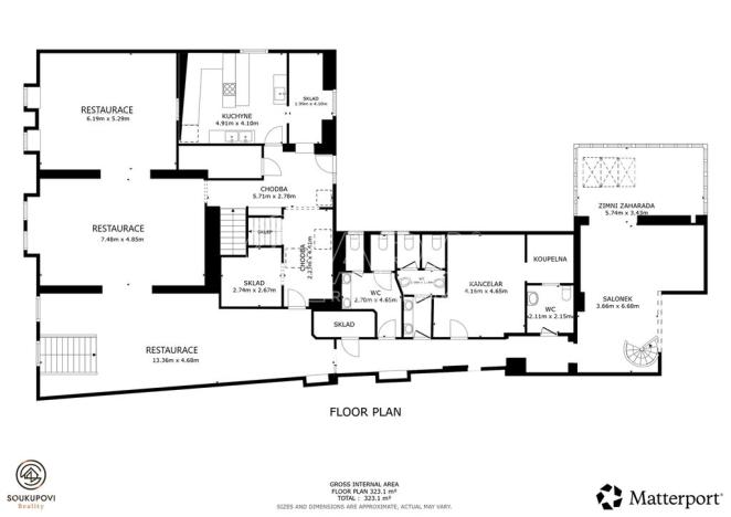
Celková užitná plocha: cca 377 m²
1.NP 290 m² + podkrovní byt 87 m² a další půdní prostor
K dispozici je dále sklep, garáž a zahrádka.
Objekt není památkově chráněn – umožňuje flexibilní úpravy dle investičního záměru.

Možné budoucí využití nemovitosti:
- Úprava na jiný typ komerčního provozu – kanceláře, ateliér, showroom, obchod.
- Rodinné bydlení či investice až se třemi samostatnými bytovými jednotkami v rodinném domě
- Více jednotek v bytovém domě
- Kombinace podnikání a soukromého bydlení
- Pokračování v provozu stylové restaurace s kavárnou

Proč je tato nemovitost zajímavá pro investora?
Kombinace komerční a rezidenční funkce
Možnost rozdělení na více jednotek
Historická budova bez památkové ochrany
Atraktivní poloha na náměstí
Hotové technické zázemí
Nízká konkurence podobných objektů v lokalitě

Co objekt nabízí v současné podobě?
- Přízemí - celková užitná plocha 1.NP se zázemím a zimní zahradou: 290 m²
- Podkroví - prostorná bytová jednotka 3+kk k finálnímu dokončení (užitná plocha 87 m²)
- Stylovou restauraci s kavárenským prostorem a salonkem
- Kapacitu až 80 míst, plně vybavenou kuchyni, technické zázemí
- Kompletní rekonstrukce objektu pro účely restaurace byla kolaudována v roce 2010.
- Členitý a prostorný sklep
- Součástí je také garáž a zahrádka
Nemovitost je bez nájemců a bez právního zatížení, což umožňuje okamžité zahájení úprav či změny využití dle investičního záměru.

Dům č. 64 je usazený v historickém jádru města, původ domu sahá do 1.poloviny 19.století – a každý jeho kout dýchá atmosférou literárních večerů, koncertů i výtvarných výstav. Z exteriéru se otevírá krásný výhled na náměstí, který láká k posezení nebo ranní kávě.
Parkování je možné přímo před objektem, na prostorném veřejném parkovišti a dále ve vlastní garáži a před ní.
V roce 2012 získal projekt rekonstrukce restaurace La Boema Mimořádnou cenu veřejnosti v soutěži "Stavba roku Plzeňského kraje". Majitel při rekonstrukci nešetřil a použil nejkvalitnější materiály a zakomponoval nádherné prvky jako např. vitráž nad vstupem, kamenné schody do objektu, krásná kachlová kamna, repliky špaletových oken a další.
Vytápění přízemí zajišťuje plynový kondenzační kotel a dominantní kachlová kamna, v salonku je navíc podlahové vytápění. V patře je druhý plynový kotel.
Dům je napojen na elektřinu, plyn, vodovod a obecní kanalizaci.

Lokalita:
Radnice jsou klidné město v Plzeňském kraji s přibližně 1 800 obyvateli a výbornou dostupností do Rokycan, Plzně i Prahy (dálnice D5). Veškerá občanská vybavenost je v místě. V Plzni jste za pouhých 25 minut.

Proč právě tento krásný měšťanský dům?
Protože je to prostor s příběhem, duší a výjimečnou atmosférou. Investice, která nabízí silný investiční potenciál do budoucna.

Zavolejte si o bližší informace nebo rovnou domluvte prohlídku.
Těším se na vás právě tady, v Radnicích.

Makléř

Máte zájem o tento dům?

Tímto, v souladu s nařízením Evropského parlamentu a Rady (EU) 2016/679, v platném znění, prohlašuji, že mi je alespoň 16 let a uděluji tak svůj souhlas se zpracováním zadaných údajů (jméno, telefon, e-mail, ip adresa) společnosti B3 Technology, s.r.o., IČ: 07330600, se sídlem Novostavby 126/23, 435 11 Lom (správce dat), za účelem předání dotazu z tohoto formuláře Vámi vybranému inzerentovi a zpětného kontaktování mé osoby. Osobní údaje bude správce zpracovávat manuálně i automaticky přímo prostřednictvím svých zaměstnanců. Informace předané tímto formulářem budou uloženy v databázi správce maximálně po dobu 10 let. Odvolání souhlasu s uložením a zpracováním poskytnutých dat lze e-mailem na info@origo-reality.cz. V případě podezření na neoprávněné použití Vámi poskytnutých údajů máte právo předat podnět k šetření Úřadu pro ochranu osobních údajů. Více informací
Chystáte se prodat nemovitost?
Pomůžeme Vám!

Přihlášení k odběru

Nenechte si ujít nejnovější nabídky prodeje rodinných domů v Radnicích.