Prodej bytu 2+kk, Praha - Strašnice, Za strašnickou vozovnou, 38 m2 (ID: 1888958)

Za Strašnickou vozovnou, Praha, Strašnice

4 890 000 Kč
/za nemovitost
Hypotéka od 21 855 Kč /měs. Chci hypotéku

Parametry bytu

AdresaZa Strašnickou vozovnou, Praha, Strašnice
IDN139637
StavbaCihlová
Stav objektuPo rekonstrukci
VybavenoČástečně
Lokalita objektuKlidná část obce
VlastnictvíOsobní
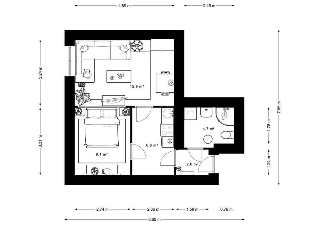
Užitná plocha38 m2
Podlahová plocha38 m2
Třída energetické náročnostiG - Mimořádně nehospodárná
Elektřina230V
TopeníÚstřední elektrické
TelekomunikaceTelefon, Internet, Kabelová televize
DopravaSilnice, MHD
VodaVodovod
Výtah

Origo partneři v Praze 10

Stěhovací služby

Výkup a prodej starého nábytku

Popis

Nabízím vám ke koupi ateliér o dispozici 2+kk, který právě pošel kompletní nákladnou rekonstrukcí. Plovoucí podlahy, velkoformátová dlažba, koupelna se sprchovým koutem, ústřední etážové topení, nové LED osvětlení, izolace, rozvody elektro a veškeré instalace, plastová okna atd. Přesto, že se jednotka nachází ve sníženém přízemí, je zde dostatek denního světla a je uzpůsobena k bydlení. Praktická dispozice - dvě samostatné (neprůchozí) místnosti, koupelna se sprchovým koutem a WC. Ateliér se nachází v udržovaném funkcionalistickém činžovním domě na rozhraní Strašnic a Vinohrad, jen 2 min. od Vinohradské ul. a zastávky tramvaje a 5 min. od metra Strašnická. V případě, že hledáte prostory pro vlastní bydlení nebo podnikání, je pro vás náš ateliér ideální volbou. Pokud hledáte čistě investiční nemovitost, lze převzít i se spolehlivým a platícím nájemcem. Je zde možnost zakoupit současně i sousední ateliér o dispozici 2+kk a ploše 46.2 m2. Možnost financování prostřednictvím hypotečního úvěru. Pro více informací mě neváhejte kontaktovat, rád vám případné dotazy zodpovím osobně.

Makléř

Máte zájem o tento byt?

Tímto, v souladu s nařízením Evropského parlamentu a Rady (EU) 2016/679, v platném znění, prohlašuji, že mi je alespoň 16 let a uděluji tak svůj souhlas se zpracováním zadaných údajů (jméno, telefon, e-mail, ip adresa) společnosti B3 Technology, s.r.o., IČ: 07330600, se sídlem Novostavby 126/23, 435 11 Lom (správce dat), za účelem předání dotazu z tohoto formuláře Vámi vybranému inzerentovi a zpětného kontaktování mé osoby. Osobní údaje bude správce zpracovávat manuálně i automaticky přímo prostřednictvím svých zaměstnanců. Informace předané tímto formulářem budou uloženy v databázi správce maximálně po dobu 10 let. Odvolání souhlasu s uložením a zpracováním poskytnutých dat lze e-mailem na info@origo-reality.cz. V případě podezření na neoprávněné použití Vámi poskytnutých údajů máte právo předat podnět k šetření Úřadu pro ochranu osobních údajů. Více informací
Chystáte se prodat nemovitost?
Pomůžeme Vám!

Přihlášení k odběru

Nenechte si ujít nejnovější nabídky prodeje bytů 2+kk v Praze 10.