Prodej bytu 4+kk, Praha - Zličín, Milotická, 125 m2 (ID: 1888902)

Milotická, Praha, Zličín

14 433 555 Kč
/za nemovitost
Cena zahrnuje právní servis a odměnu makléře. Včetně dvou uzavřených garáží a dvou sklepů
Hypotéka od 64 509 Kč /měs. Chci hypotéku

Parametry bytu

Náklady na bydlení5642 Kč
AdresaMilotická, Praha, Zličín
ID200
StavbaCihlová
Stav objektuDobrý
Patro5.
Lokalita objektuKlidná část obce
VlastnictvíOsobní
Užitná plocha125 m2
Třída energetické náročnostiC - Úsporná
OdpadVeřejná kanalizace
KomunikaceAsfaltová
DopravaDálnice, MHD, Autobus
Topné tělesoPodlahové vytápění, Radiátory
Sklep
Lodžie
Parkování

Origo partneři v Praze 5

Stěhovací služby

Výkup a prodej starého nábytku

Popis

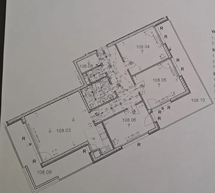
Nabízíme k prodeji prostorný byt 4+kk se dvěma lodžiemi, dvěma sklepy o celkové ploše 125,6 m² a dvěma uzamykatelnými garážemi, každá o ploše 22 m².

Byt se nachází v moderní cihlové novostavbě z roku 2010, ve 5. nadzemním podlaží, a nabízí nízké provozní náklady (energetická třída C – úsporná). Na střeše domu je instalována fotovoltaická elektrárna.

-Dispozice bytu:

Byt 4+kk s užitnou plochou 89 m² nabízí prostorný obývací pokoj o výměře 26,7 m² s kuchyňským koutem vybaveným vestavěnými spotřebiči (trouba, varná deska, digestoř, myčka, lednice). Dále jsou k dispozici tři samostatné pokoje o velikosti 10,8 m², 13,5 m² a 13,3 m², koupelna s rohovou vanou a podlahovým vytápěním, samostatné WC, předsíň a komora.

V obývacím pokoji je nainstalována klimatizace, která zajišťuje příjemné prostředí po celý rok.

Dva sklepy (2,3 m² a 3,3 m²)
Dvě uzavíratelné garáže, každá o rozloze 22 m².

-Lodžie:

Byt je obklopen ze tří stran dvěma prostornými lodžiemi o výměře 13 m² a 18,5 m², které jsou přístupné ze všech pokojů. Nabízejí výhled na severovýchod a jihovýchod s krásnými výhledy do okolní přírody.
Náklady na bydlení činí 5642 Kč měsíčně.

- Lokalita:

Byt se nachází v oblíbené rezidenční čtvrti Praha–Zličín s kompletní občanskou vybaveností.
V docházkové vzdálenosti se nachází večerka, základní a mateřská škola, restaurace a fotbalová hřiště. V blízkém okolí je rovněž nákupní centrum Metropole Zličín, IKEA a Globus.

Stanice metra B – Zličín je vzdálená jen 13 minut chůze, zastávka autobusu 249 (Nový Zličín) je jen pár kroků od domu. Výborná dopravní dostupnost – Letiště Václava Havla je autem dostupné za pouhých 10 minut, přímý autobus 100 ze stanice metra Zličín pak zajistí pohodlnou cestu na letiště za 15 minut.

Skvělá dopravní dostupnost na Pražský okruh a dálnici D5 umožňuje pohodlné cestování i mimo hlavní město.

K nastěhování ihned.

Pro více informací nebo sjednání prohlídky mě neváhejte kontaktovat.

Majitel si vyhrazuje právo prodat nemovitost nejvýhodnější nabídce.

Uvedené informace mají informativní charakter a mohou se v průběhu inzerce změnit.

Makléř

Máte zájem o tento byt?

Tímto, v souladu s nařízením Evropského parlamentu a Rady (EU) 2016/679, v platném znění, prohlašuji, že mi je alespoň 16 let a uděluji tak svůj souhlas se zpracováním zadaných údajů (jméno, telefon, e-mail, ip adresa) společnosti B3 Technology, s.r.o., IČ: 07330600, se sídlem Novostavby 126/23, 435 11 Lom (správce dat), za účelem předání dotazu z tohoto formuláře Vámi vybranému inzerentovi a zpětného kontaktování mé osoby. Osobní údaje bude správce zpracovávat manuálně i automaticky přímo prostřednictvím svých zaměstnanců. Informace předané tímto formulářem budou uloženy v databázi správce maximálně po dobu 10 let. Odvolání souhlasu s uložením a zpracováním poskytnutých dat lze e-mailem na info@origo-reality.cz. V případě podezření na neoprávněné použití Vámi poskytnutých údajů máte právo předat podnět k šetření Úřadu pro ochranu osobních údajů. Více informací
Chystáte se prodat nemovitost?
Pomůžeme Vám!

Přihlášení k odběru

Nenechte si ujít nejnovější nabídky prodeje bytů 4+kk v Praze 5.