Prodej bytu 3+1, Blansko, Mahenova, 102 m2

Mahenova, Blansko

Cena na vyžádání
/za nemovitost
info v RK, včetně poplatků, včetně provize, včetně právního servisu
Získejte výhodnou HYPOTÉKU Chci hypotéku

Parametry bytu

AdresaMahenova, Blansko
ID00051
StavbaCihlová
Stav objektuVelmi dobrý
Patro3. z 3
VybavenoČástečně
Druh objektuV bloku
Lokalita objektuKlidná část obce
VlastnictvíOsobní
Užitná plocha102 m2
Třída energetické náročnostiG - Mimořádně nehospodárná
Elektřina230V
PlynPlynovod
OdpadVeřejná kanalizace
TopeníÚstřední plynové
DopravaVlak, Silnice, MHD, Autobus
VodaMístní zdroj vody
Sklep
Výtah

Origo partneři v Blansku

Popis

Dnes vám ukážu byt, který zvenku působí docela nenápadně, ale uvnitř má víc prostoru, než byste čekali.

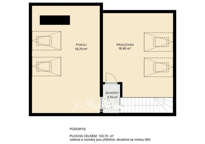
Původně šlo o klasickou 2+1 s 56 m², ale v roce 2014 prošel velkou proměnou.

Díky přístavbě do podkroví se rozšířil na celkových přibližně 102 m² (dle prohlášení vlastníka) a vznikl z něj atraktivní prostorný mezonet.

V podkroví najdete dva samostatné pokoje, ideální třeba jako ložnice a dětský pokoj nebo pracovna.

V dolním patře je velký obývací pokoj volně navazující na kuchyní, kde se pohodlně sejde celá rodina.

Tenhle byt najdete v ulici Mahenova, v klidné části Blanska, kde je přitom vše na dosah.


Jen pár minut chůze odtud máte centrum města, obchody, školu, školku i poštu.

Pro ty, kdo dojíždějí, je to ideální místo — vlakové i autobusové nádraží jsou vzdálené do deseti minut pěšky.

Ať už míříte do Brna nebo kamkoli jinam, dopravní dostupnost je tu opravdu výborná.

K tomu prostorná koupelna, technická místnost a vlastní plynový kotel, takže si sami určujete,
kdy a jak topíte i ohříváte vodu.

Celý dům je klasický podsklepený cihlový objekt ze 70. let, se třemi podlažími, napojený na veřejný vodovod, kanalizaci, elektřinu i plyn.

Okolí domu je klidné, bez rušivých vlivů, se spoustou zeleně a pohodovým sousedstvím.

Pokud hledáte v Blansku byt s pořádným prostorem, dobrou adresou a atmosférou rodinného bydlení, tenhle mezonet na Mahenové si rozhodně zaslouží vaši pozornost.

Zavolejte mi, domluvíme si prohlídku — rád vám ho osobně ukážu.

Makléř

Máte zájem o tento byt?

Tímto, v souladu s nařízením Evropského parlamentu a Rady (EU) 2016/679, v platném znění, prohlašuji, že mi je alespoň 16 let a uděluji tak svůj souhlas se zpracováním zadaných údajů (jméno, telefon, e-mail, ip adresa) společnosti B3 Technology, s.r.o., IČ: 07330600, se sídlem Novostavby 126/23, 435 11 Lom (správce dat), za účelem předání dotazu z tohoto formuláře Vámi vybranému inzerentovi a zpětného kontaktování mé osoby. Osobní údaje bude správce zpracovávat manuálně i automaticky přímo prostřednictvím svých zaměstnanců. Informace předané tímto formulářem budou uloženy v databázi správce maximálně po dobu 10 let. Odvolání souhlasu s uložením a zpracováním poskytnutých dat lze e-mailem na info@origo-reality.cz. V případě podezření na neoprávněné použití Vámi poskytnutých údajů máte právo předat podnět k šetření Úřadu pro ochranu osobních údajů. Více informací
Chystáte se prodat nemovitost?
Pomůžeme Vám!

Přihlášení k odběru

Nenechte si ujít nejnovější nabídky prodeje bytů 3+1 v Blansku.

Origo tipy

Podobné nabídky