Prodej bytu 3+kk, Ivančice, 66 m2 (ID: 1887444)

Ivančice

7 290 000 Kč
/za nemovitost
včetně DPH, včetně provize, včetně právního servisu
Hypotéka od 32 582 Kč /měs. Chci hypotéku

Parametry bytu

AdresaIvančice
ID10251
StavbaCihlová
Stav objektuVe výstavbě
Patro2. z 3
VybavenoNe
Lokalita objektuCentrum obce
VlastnictvíOsobní
Užitná plocha66 m2
Třída energetické náročnostiB - Velmi úsporná
Ukazatel energetické náročnosti118 kWh/m2 za rok
Balkon
Sklep
Výtah
Bezbarierový přístup
Parkování

Origo partneři v Ivančicích

Popis

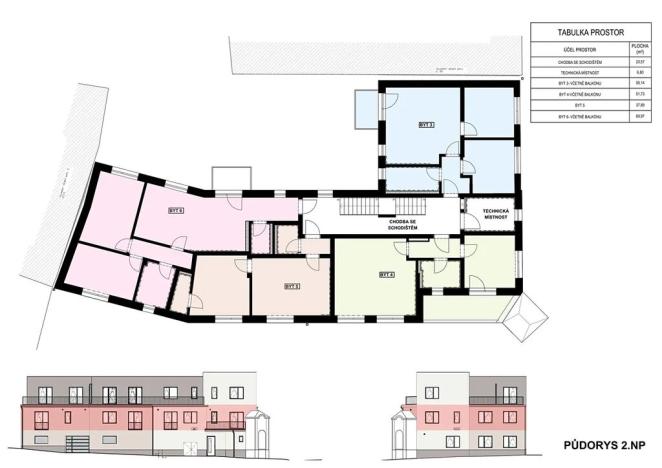
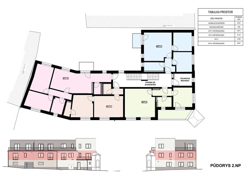
Nabízíme k prodeji prostorný byt 3+kk s balkónem v novostavbě bytového domu o 10 jednotkách v bezprostředním centru města Ivančic, na nároží ulic Kounická a Jana Fibicha.
Bytová jednotka o dispozici 3+kk a podlahové ploše 69,7 m² se nachází ve 2. nadzemním podlaží nízkoenergetického bytového domu situovaného v klidné části města Ivančice. Součástí bytu je také balkón o výměře 3,75 m², který poskytuje příjemný prostor pro odpočinek. Součástí ceny bytu je sklepní kóje a jedno kryté parkovací stání.

Dispozice bytu:
– hala: 5,03 m²
– obývací pokoj s kuchyňským koutem: 23,60 m²
– chodba: 4,08 m²
– koupelna: 5,42 m²
– samostatné WC: 2,34 m²
– ložnice: 13,86 m²
– pokoj: 11,89 m²
– balkon: 3,75 m²

Byt je součástí novostavby bytového domu o pouhých 10 jednotkách, což zajišťuje klidné a pohodové bydlení bez anonymní atmosféry velkých komplexů.

K bytu náleží sklepní kóje (cca 1,8 m²) a kryté parkovací stání, které poskytuje komfort a ochranu vozu během celého roku. Dům se nachází v atraktivní lokalitě s výbornou občanskou vybaveností – v docházkové vzdálenosti najdete obchody, školu, MHD, zdravotní středisko i sportoviště.

Vybavení bytu:
– kvalitní vinylové podlahy a dlažba
– příprava na kuchyňskou linku
– plastová okna s izolačními trojskly
– předokenní žaluzie u oken orientovaných do ulice (jižní/západní strana)
– moderní sanitární vybavení

Bytový dům je aktuálně ve výstavbě. Hrubá stavba dokončena, probíhá realizace omítek. Probíhá realizace vnitřních řemesel. Předpokládané dokončení a možnost nastěhování: říjen 2025.

Pro více informací, půdorysy nebo sjednání prohlídky nás neváhejte kontaktovat.
Prodej přímo od investora – neplatíte provizi.

Makléř

Máte zájem o tento byt?

Tímto, v souladu s nařízením Evropského parlamentu a Rady (EU) 2016/679, v platném znění, prohlašuji, že mi je alespoň 16 let a uděluji tak svůj souhlas se zpracováním zadaných údajů (jméno, telefon, e-mail, ip adresa) společnosti B3 Technology, s.r.o., IČ: 07330600, se sídlem Novostavby 126/23, 435 11 Lom (správce dat), za účelem předání dotazu z tohoto formuláře Vámi vybranému inzerentovi a zpětného kontaktování mé osoby. Osobní údaje bude správce zpracovávat manuálně i automaticky přímo prostřednictvím svých zaměstnanců. Informace předané tímto formulářem budou uloženy v databázi správce maximálně po dobu 10 let. Odvolání souhlasu s uložením a zpracováním poskytnutých dat lze e-mailem na info@origo-reality.cz. V případě podezření na neoprávněné použití Vámi poskytnutých údajů máte právo předat podnět k šetření Úřadu pro ochranu osobních údajů. Více informací
Chystáte se prodat nemovitost?
Pomůžeme Vám!

Přihlášení k odběru

Nenechte si ujít nejnovější nabídky prodeje bytů 3+kk v Ivančicích.