Pronájem bytu 2+1, Liběchov, nám. V. Levého, 53 m2

nám. V. Levého, Liběchov

12 500 Kč
/za měsíc
Získejte výhodnou HYPOTÉKU Chci hypotéku

Parametry bytu

Náklady na bydlení5000
Adresanám. V. Levého, Liběchov
StavbaCihlová
Stav objektuDobrý
Patro2.
VlastnictvíOsobní
Užitná plocha53 m2

Origo partneři v Liběchově

Popis

*** Postup pro získání nájmu: ***
1) Vyplňte formulář u nabídky. Prosím nevolejte, ve většině případů nejsme schopni přímo domluvit termín prohlídky.
2) Jakmile si Vaší poptávku z formuláře přečteme, zašleme Vám dotazník pro zájemce o pronájem, který je třeba vyplnit.
3) Po vyplnění bude formulář předložen majiteli a následně Vás budeme kontaktovat s dalšími informacemi a možnými termíny prohlídek.

Preferováni budou zájemci o dlouhodobý pronájem s prokazatelnou bezdlužností.

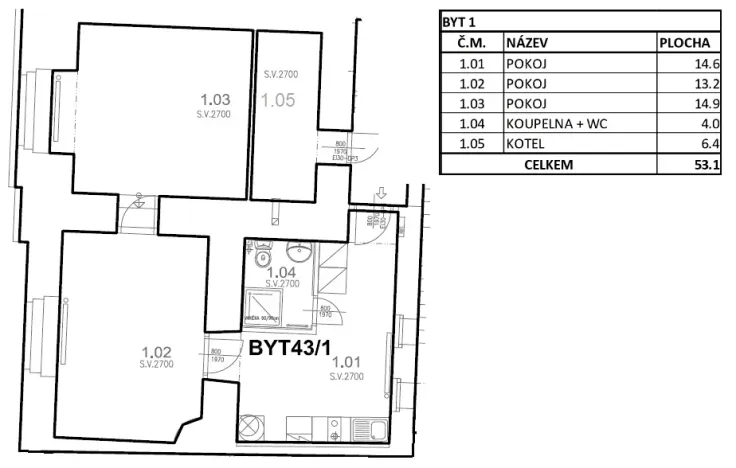
Byt má 2 pokoje, kuchyň, předsíň, koupelnu se sprchovým koutem a WC. Byt se nachází ve 2. NP a jeho celková plocha činí 53,1 m².

Byt se nachází v ideální dojezdové vzdálenosti mezi městy Mělník a Štětí, přímo u zastávky autobusu. Jednoduché parkování v okolí domu. Byt je součástí budovy Besedy Liběchov, v těsné blízkosti liběchovského zámku.

Měsíční nájemné činí 12.500,-Kč, poplatky 5.000,-Kč (poplatky obsahují náklady na vytápění, elektřinu a vodné a stočné).
Kauce činí 2 měsíční nájmy, tj. 25.000,- Kč.
Zájemce nehradí provizi RK.

V případě zájmu o prohlídku, prosím vyplňte kontaktní formulář.

Makléř

Máte zájem o tento byt?

Tímto, v souladu s nařízením Evropského parlamentu a Rady (EU) 2016/679, v platném znění, prohlašuji, že mi je alespoň 16 let a uděluji tak svůj souhlas se zpracováním zadaných údajů (jméno, telefon, e-mail, ip adresa) společnosti B3 Technology, s.r.o., IČ: 07330600, se sídlem Novostavby 126/23, 435 11 Lom (správce dat), za účelem předání dotazu z tohoto formuláře Vámi vybranému inzerentovi a zpětného kontaktování mé osoby. Osobní údaje bude správce zpracovávat manuálně i automaticky přímo prostřednictvím svých zaměstnanců. Informace předané tímto formulářem budou uloženy v databázi správce maximálně po dobu 10 let. Odvolání souhlasu s uložením a zpracováním poskytnutých dat lze e-mailem na info@origo-reality.cz. V případě podezření na neoprávněné použití Vámi poskytnutých údajů máte právo předat podnět k šetření Úřadu pro ochranu osobních údajů. Více informací
Chystáte se prodat nemovitost?
Pomůžeme Vám!

Přihlášení k odběru

Nenechte si ujít nejnovější nabídky pronájmu bytů 2+1 v Liběchově.