Prodej bytu 4+kk, Benešov, Tyršova, 134 m2 (ID: 1885101)

Tyršova, Benešov

8 500 000 Kč
/za nemovitost
včetně poplatků, včetně provize, včetně právního servisu
Hypotéka od 37 990 Kč /měs. Chci hypotéku

Parametry bytu

AdresaTyršova, Benešov
ID24148
StavbaSkeletová
Stav objektuVelmi dobrý
Patro2. z 5
VybavenoČástečně
Lokalita objektuCentrum obce
VlastnictvíOsobní
Užitná plocha134 m2
Podlahová plocha134 m2
Třída energetické náročnostiC - Úsporná
Ukazatel energetické náročnosti125 kWh/m2 za rok
Elektřina230V
TopeníÚstřední dálkové
KomunikaceDlážděná, Asfaltová
DopravaVlak, Dálnice, Silnice, Autobus
VodaVodovod
Sklep
Lodžie
Terasa
Výtah

Origo partneři v Benešově

Popis

Exkluzivně Vám nabízíme prostorný a světlý byt o dispozici 4+kk, situovaný v centru Benešova, v Tyršově ulici.

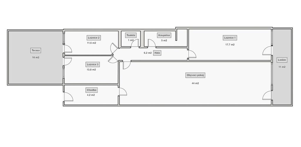
Bytová jednotka o dispozici 4+kk s celkovou podlahovou plochou 134 m² (podlahová plocha 106,8m2 + lodžie (11m²) a terasa (16m²)), který se nachází ve 2. nadzemním podlaží skeletového bytového domu v centru města Benešov u Prahy. Vstup do domu i bytu je bezbariérový.


Dispozice bytu nabízí:

- Tři samostatné ložnice,
- Sklep (3m²)
- Dva venkovní prostory – lodžii (11m²) a terasu (16m²),
- Prostorný obývací pokoj s kuchyňským koutem,
- Koupelna – se sprchovým koutem a toaletou,
- Druhá samostatná toaleta,
- Částečné vybavené

Nachází v samotném centru města, v pěší zóně s výbornou dostupností. V okolí najdete obchody, kavárny, květinářství, lékárnu i úřady. Pár minut chůze je bowling, adventure golf či park. Výhodou je i skvělá dopravní dostupnost – vlakové nádraží Benešov u Prahy i autobusové nádraží jsou vzdáleny jen 5 minut pěšky. Lokalita je ideální pro bydlení i podnikání - dojezd na dálnici D1 cca 10 minut.

K relaxaci a volnočasovým aktivitám vybízí nedaleký zámek Konopiště s rozlehlým parkem, ideální pro procházky i sport.

Byt je vhodný jak pro rodinné bydlení, tak jako investiční příležitost. Možnost financování hypotečním úvěrem, s vyřízením rádi pomůžeme. Právní servis zajištěn.

Rádi Vám bezplatně zajistíme vhodného nájemce pro Váš investiční záměr.

Pro více informací nás neváhejte kontaktovat.

Makléř

Máte zájem o tento byt?

Tímto, v souladu s nařízením Evropského parlamentu a Rady (EU) 2016/679, v platném znění, prohlašuji, že mi je alespoň 16 let a uděluji tak svůj souhlas se zpracováním zadaných údajů (jméno, telefon, e-mail, ip adresa) společnosti B3 Technology, s.r.o., IČ: 07330600, se sídlem Novostavby 126/23, 435 11 Lom (správce dat), za účelem předání dotazu z tohoto formuláře Vámi vybranému inzerentovi a zpětného kontaktování mé osoby. Osobní údaje bude správce zpracovávat manuálně i automaticky přímo prostřednictvím svých zaměstnanců. Informace předané tímto formulářem budou uloženy v databázi správce maximálně po dobu 10 let. Odvolání souhlasu s uložením a zpracováním poskytnutých dat lze e-mailem na info@origo-reality.cz. V případě podezření na neoprávněné použití Vámi poskytnutých údajů máte právo předat podnět k šetření Úřadu pro ochranu osobních údajů. Více informací
Chystáte se prodat nemovitost?
Pomůžeme Vám!

Přihlášení k odběru

Nenechte si ujít nejnovější nabídky prodeje bytů 4+kk v Benešově.