Pronájem bytu 3+kk, Děčín, Plzeňská, 59 m2 (ID: 1884921)

Plzeňská, Děčín IV-Podmokly

14 500 Kč
/za měsíc
Získejte výhodnou HYPOTÉKU Chci hypotéku

Parametry bytu

Náklady na bydlení4800/2 osoby
AdresaPlzeňská, Děčín IV-Podmokly
IDJ12051
StavbaCihlová
Stav objektuVelmi dobrý
Patro5.
VybavenoNe
Lokalita objektuCentrum obce
VlastnictvíOsobní
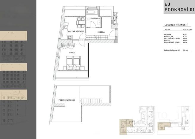
Užitná plocha59 m2
Podlahová plocha61 m2
Třída energetické náročnostiC - Úsporná
Ukazatel energetické náročnosti107 kWh/m2 za rok
TopeníÚstřední plynové
Topné tělesoRadiátory
Zdroj topeníCentrální dálkové
Zdroj teplé vodyPlynový kotel
Sklep
Výtah

Origo partneři v Děčíně

Okna a dveře

Rekonstrukce

Zámečnické práce

Popis

Pronájem jedinečného podkrovního bytu 3KK – Děčín, Podmokly.

Pronájem stylové a prostorné bytové jednotky o celkové výměře 61 m², nacházející se v kompletně revitalizovaném domě v oblíbené městské části Děčín – Podmokly.

V zastoupení majitele, Vám nabízíme k pronájmu, hezký byt 3+kk s mezonetovým prostorem, který je připraven splnit všechny vaše požadavky pro pohodlné a praktické bydlení.

V celkové ceně je zahrnut nájem spolu s energiemi, elektřina, plyn a voda pro dvě osoby.

Dispozice bytu:
• Hlavní obytný prostor 3KK 40 m² s dostatkem denního světla
• Mezonetový prostor o velikosti 19 m² – ideální jako ložnice, pracovna nebo ateliér
• Moderní bytová jednotka s prvotřídním vybavením a materiály, interiérové dveře
• Vinylové podlahy s odolnou nášlapnou vrstvou, SDK podhledy se zapuštěnými LED světly.
• Stylová obytná kuchyň, vybavená myčkou nádobí, sklokeramickou deskou, elektrickou
troubou.
• Koupelna je osazena vanou.
• Byt je osazen střešními okny s trojskly.
• Příprava pro instalaci přenosné klimatizační jednotky.

Dům a lokalita:
• Dům prošel kompletní revitalizací – nové rozvody, fasáda, střecha, okna, výtah i společné prostory
• Solární ohřev teplé vody a moderní plynová kotelna.
• Na velkém dvoře, v zadní části domu najdete osvětlenou pergolu s posezením.
• K dispozici je i sklepní kóje, kde je vstup z vnitřního schodiště.
• Vstupní dveře jsou protipožární, interiérové rámové s prosklením.
• Výborná dostupnost – v pěší vzdálenosti hlavní vlakové i autobusové nádraží
• Veškerá občanská vybavenost v okolí – obchody, kavárny, školy, zdravotní střediska

Pro koho je byt ideální? Pro jednotlivce, páry nebo kreativní duše hledající inspirativní prostor s výbornou dostupností a atmosférou podkroví.

K nastěhování je od 1.12.2025.

Neváhejte nás kontaktovat pro více informací nebo domluvení prohlídky!

Makléř

Máte zájem o tento byt?

Tímto, v souladu s nařízením Evropského parlamentu a Rady (EU) 2016/679, v platném znění, prohlašuji, že mi je alespoň 16 let a uděluji tak svůj souhlas se zpracováním zadaných údajů (jméno, telefon, e-mail, ip adresa) společnosti B3 Technology, s.r.o., IČ: 07330600, se sídlem Novostavby 126/23, 435 11 Lom (správce dat), za účelem předání dotazu z tohoto formuláře Vámi vybranému inzerentovi a zpětného kontaktování mé osoby. Osobní údaje bude správce zpracovávat manuálně i automaticky přímo prostřednictvím svých zaměstnanců. Informace předané tímto formulářem budou uloženy v databázi správce maximálně po dobu 10 let. Odvolání souhlasu s uložením a zpracováním poskytnutých dat lze e-mailem na info@origo-reality.cz. V případě podezření na neoprávněné použití Vámi poskytnutých údajů máte právo předat podnět k šetření Úřadu pro ochranu osobních údajů. Více informací
Chystáte se prodat nemovitost?
Pomůžeme Vám!

Přihlášení k odběru

Nenechte si ujít nejnovější nabídky pronájmu bytů 3+kk v Děčíně.