Prodej rodinného domu, Velké Svatoňovice, 170 m2 (ID: 1884508)

Velké Svatoňovice, Markoušovice

3 950 000 Kč
/za nemovitost
Hypotéka od 17 654 Kč /měs. Chci hypotéku

Parametry domu

AdresaVelké Svatoňovice, Markoušovice
ID01RD2529
StavbaCihlová
Stav objektuDobrý
Užitná plocha170 m2
Plocha pozemku1704 m2
Garáž
Sklep
Parkování

Origo partneři v Velkých Svatoňovicích

Popis

Nabízíme k prodeji rodinný dům se zahradou s dispozicí 5+kk, který byl původně projektován jako objekt k rekreaci. Nemovitost se nachází klidné části obce Velké Svatoňovice v katastrálním území Starý Sedloňov (Markoušovická).
Dům byl postaven ze zbořeniště v druhé polovině 80.let. Jedná se o zděnou dvou podlažní budovu, s navazující garáží v rámci domu. Za domem je umístěna další menší stavba o půdorysu 50m2, kde je v přízemí garáž/dílna a hospodářská část, v patře je prostor na umístění například sena. Dům obklopuje zahrada s výměrou 1500m2, přičemž celý pozemek je řádně oplocený. Na zahradě jsou umístěné dvě dřevěné kolny, funkční skleník a rostou zde ovocné stromy (jabloně, třešeň, atd.).
Nemovitost je v současné době v „udržovaném“ stavu s nutností výměny kotle na vytápění a bojleru na ohřev vody – ideální výměna topného systému. A samozřejmostí je modernizace kuchyně a rekonstrukce koupelny. Dům bohužel nebyl v posledních letech příliš opečovávaný.
Dům je vhodný, jak k rekreačním účelům, tak k trvalému bydlení vesnického typu (pěstování ovoce a zeleniny, chování domácích i hospodářských zvířat).
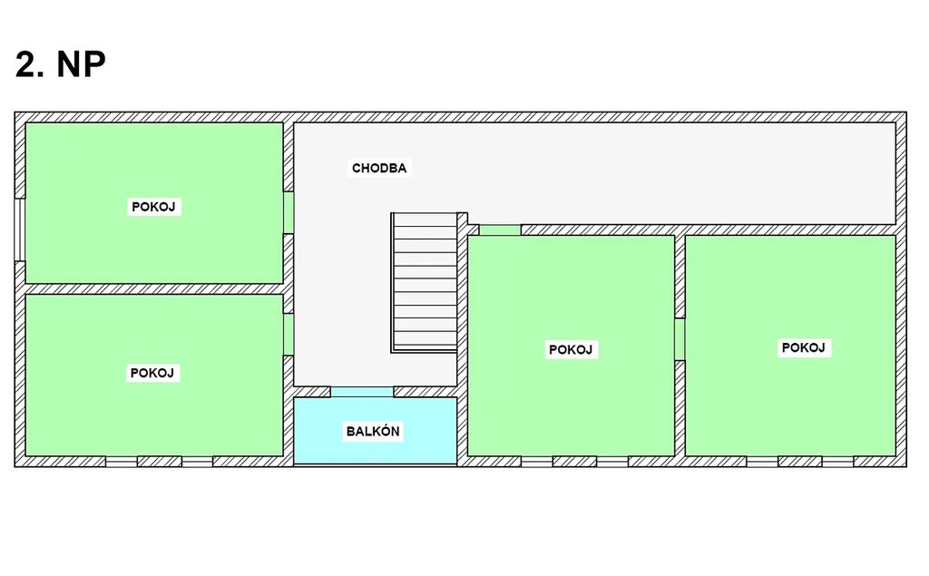
Dispozice: zádveří – vstup do domu na níž navazuje veranda ideální k posezení za deště. V prvním nadzemním podlaží vede středem domu chodba (4m2). Po levé straně je obývací kuchyň (24m2) s funkčními stylovými kachlovými kamny (vaření, vytápění) a na ní navazuje špajz (4m2). Po pravé straně je společenská krbová místnost (16m2), ze které je vstup na verandu. Středem chodby se dostaneme na samostatné WC (1,8m2) a do koupelny (7,7m2), která vyžaduje kompletní rekonstrukci. Z koupelny vedou dveře do skladu paliv (7,3m2) a následně do garáže (21,5m2). V původní části jsou stylové klenuté stropy. Do garáže je též samostatný vjezd. Do druhého nadzemního podlaží vede stylové dřevěné schodiště. Po pravé straně jsou dva samostatné pokoje (15,8m2), z čeho jeden je průchozí (15,8m2), dále je zde úložný prostor-šikmina (13m2). Po levé straně je krásná stylová ložnice (15m2) a další pokoj (15,3m2). Z podesty je vstup na lodžii. Téměř všechny obytné místnosti i schodiště jsou obložené dřevem (modřín). Jako podlahové krytiny jsou je použit beton, PVC, dlažba a teraso. Dům není podsklepený, má pouze malý sklep na potraviny a je zde umístěn vodoměr.
Technický popis: Rodinný dům postavený v roce 1985 je postavený na betonových pasech. V době výstavby již byla provedena izolace proti zemní vlhkosti (IPA). Dům je zděný z cihel, stropní konstrukce jsou z větší části klenbové s ocelovými nosníky, v jedné části domu jsou stropy klasické dřevěné trámové. Střešní konstrukce je klasická dřevěná z krokví s konstrukčními prvky z mansardové střechy. Díky tomu jsou v podkroví klasická okna namísto střešních oken. Jako střešní krytina jsou použité eternitové šablony v kombinaci s plechem. Okna i dveře jsou ze dřeva a fasáda není zateplená. Zateplen je pouze strop v podkroví (z dnešního pohledu nedostatečné).
Zdrojem tepla je kotel na uhlí v kotelně a kachlová kamna v obývacím pokoji. Oba komíny byly zrekonstruovány v roce 2013. Kotel na uhlí je stejně jako bojler na ohřev teplé vody z dnešního pohledu na energetickou náročnost budov a emise již nedostačující. Jak kotel, tak bojler jsou v současné době nefunkční. V domě jsou instalovány plechové radiátory. (rozvod z kotle)
Dům je napojený na veřejný vodovod, vlastní septik a veřejný rozvod elektřiny. Elektřina v domě je již v mědi. Rozvody topení jsou částečně zrekonstruovány v mědi, ostatní rozvody jsou původní.

Měsíční náklady: vodné čtvrtletně dle faktury, záloha na elektřinu dle spotřeby a počtu osob.

Inženýrské sítě: el. - 230/400 V, voda – veřejná (kojenecká voda), odpady – septik (komorový s přepadem), vytápění kotel na TP, ohřev vody bojler.

Příslušenství: zpevněné plochy, garáž v rámci domu, garáž s dílnou, skleník, dřevěné kolny, opocený pozemek/zahrada. Parkování jednak v garáži, tak na pozemku.

PENB se v současné době vyhotovuje, prozatím tedy uvádíme G.

Makléř

Máte zájem o tento dům?

Tímto, v souladu s nařízením Evropského parlamentu a Rady (EU) 2016/679, v platném znění, prohlašuji, že mi je alespoň 16 let a uděluji tak svůj souhlas se zpracováním zadaných údajů (jméno, telefon, e-mail, ip adresa) společnosti B3 Technology, s.r.o., IČ: 07330600, se sídlem Novostavby 126/23, 435 11 Lom (správce dat), za účelem předání dotazu z tohoto formuláře Vámi vybranému inzerentovi a zpětného kontaktování mé osoby. Osobní údaje bude správce zpracovávat manuálně i automaticky přímo prostřednictvím svých zaměstnanců. Informace předané tímto formulářem budou uloženy v databázi správce maximálně po dobu 10 let. Odvolání souhlasu s uložením a zpracováním poskytnutých dat lze e-mailem na info@origo-reality.cz. V případě podezření na neoprávněné použití Vámi poskytnutých údajů máte právo předat podnět k šetření Úřadu pro ochranu osobních údajů. Více informací
Chystáte se prodat nemovitost?
Pomůžeme Vám!

Přihlášení k odběru

Nenechte si ujít nejnovější nabídky prodeje rodinných domů v Velkých Svatoňovicích.