Prodej pozemku pro bydlení, Nesvačilka, 965 m2

Nesvačilka

2 946 500 Kč
/za nemovitost
včetně poplatků, včetně provize, včetně právního servisu
Hypotéka od 13 169 Kč /měs. Chci hypotéku

Parametry pozemku

AdresaNesvačilka
ID03671
Plocha pozemku965 m2
Elektřina230V, 400V
OdpadVeřejná kanalizace
VodaVodovod

Origo partneři v Nesvačilce

Popis

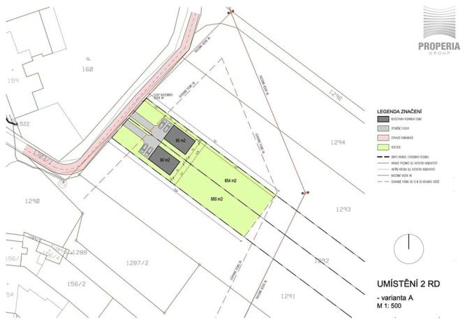
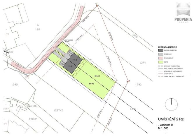
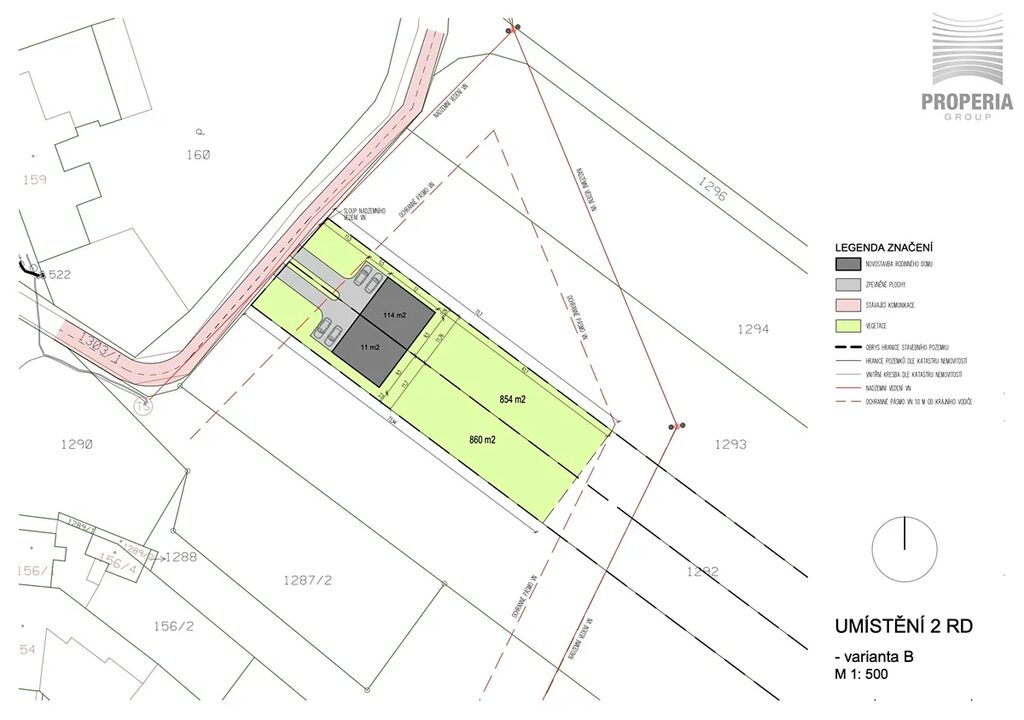
Nabízíme k prodeji atraktivní stavební parcelu o výměře cca 965 m² obdélníkového tvaru v klidné boční ulici obce Nesvačilka. Pozemek je lehce svažitý s orientací na západ směrem ke komunikaci a nachází se na kraji obce, což zaručuje dostatek soukromí i hezký výhled do okolí. Inženýrské sítě – voda, kanalizace, elektřina a plyn – se nacházejí v blízkosti pozemku.

Nesvačilka je malebná jihomoravská obec s přátelskou atmosférou vzdálená asi 20 minut jízdy jižně od Brna. Nabízí ideální kombinaci klidného venkovského prostředí a komfortní dostupnosti města. V okolí leží vinice a pole, krajinu protkávají cyklostezky lákající k procházkám i odpočinku.

Do Brna se pohodlně dostanete autem nebo autobusem IDS JMK, který zajišťuje přímé spojení přes Sokolnice. Zde lze využít železniční stanici se spojením do Brna. V obci naleznete obchod s potravinami a restauraci, mateřská a základní škola i lékař sídlí v nedalekých Těšanech.

Nesvačilka je zkrátka příjemné, klidné místo obklopené přírodou, a přesto v dosahu města.

Makléř

Máte zájem o tento pozemek?

Tímto, v souladu s nařízením Evropského parlamentu a Rady (EU) 2016/679, v platném znění, prohlašuji, že mi je alespoň 16 let a uděluji tak svůj souhlas se zpracováním zadaných údajů (jméno, telefon, e-mail, ip adresa) společnosti B3 Technology, s.r.o., IČ: 07330600, se sídlem Novostavby 126/23, 435 11 Lom (správce dat), za účelem předání dotazu z tohoto formuláře Vámi vybranému inzerentovi a zpětného kontaktování mé osoby. Osobní údaje bude správce zpracovávat manuálně i automaticky přímo prostřednictvím svých zaměstnanců. Informace předané tímto formulářem budou uloženy v databázi správce maximálně po dobu 10 let. Odvolání souhlasu s uložením a zpracováním poskytnutých dat lze e-mailem na info@origo-reality.cz. V případě podezření na neoprávněné použití Vámi poskytnutých údajů máte právo předat podnět k šetření Úřadu pro ochranu osobních údajů. Více informací
Chystáte se prodat nemovitost?
Pomůžeme Vám!

Přihlášení k odběru

Nenechte si ujít nejnovější nabídky prodeje pozemků pro bydlení v Nesvačilce.