Prodej pozemku pro bydlení, Oslavany, 481 m2

Oslavany, Padochov

3 848 000 Kč
/za nemovitost
včetně DPH, včetně poplatků, včetně provize, včetně právního servisu
Hypotéka od 17 198 Kč /měs. Chci hypotéku

Parametry pozemku

AdresaOslavany, Padochov
ID00234
Plocha pozemku481 m2
PlynPlynovod
OdpadVeřejná kanalizace
KomunikaceAsfaltová
DopravaVlak, Silnice, Autobus
Zdroj topeníPlynový kondenzační kotel, Krbová kamna

Origo partneři v Oslavanech

Pojištění a finance

Popis

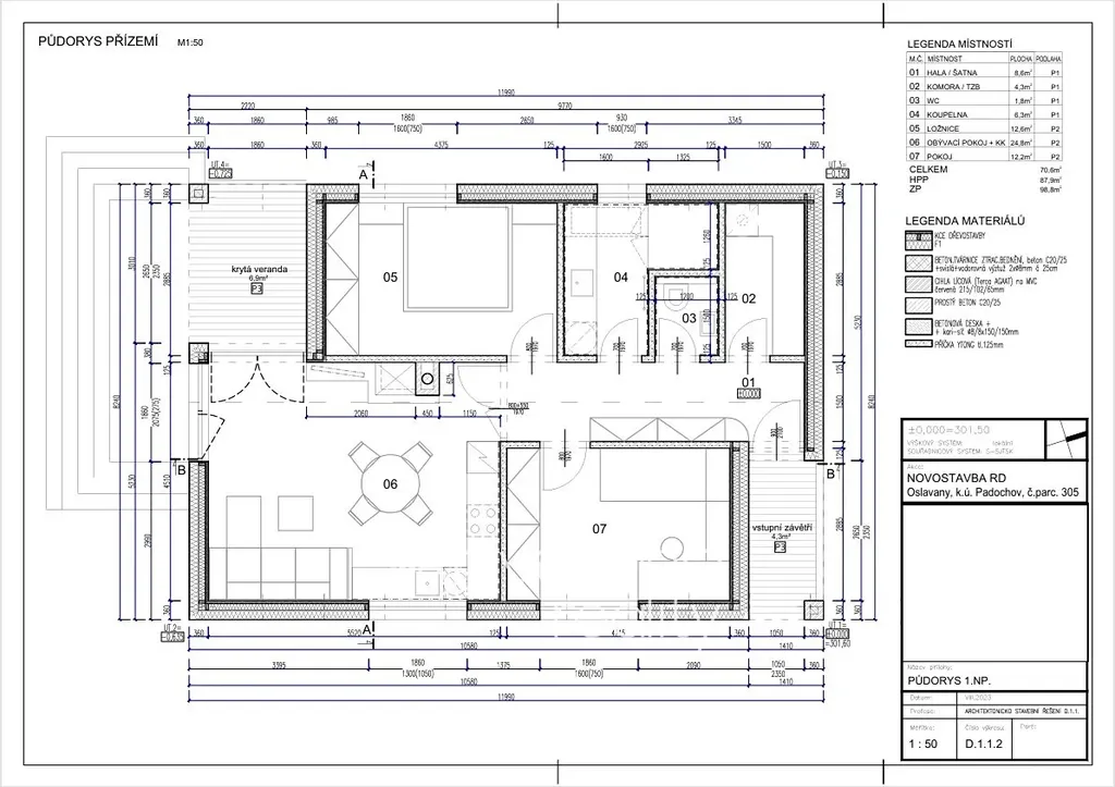
Nabízíme ke koupi stavební pozemek o výměře 481 m² se stavebním povolením na samostatně stojící rodinný dům o dispozici 3+kk. Projekt počítá s nepodsklepenou dřevostavbou se sedlovou střechou a zastavěnou plochou cca 100 m² o rozměrech cca 8,5 x 12 m. Užitná plocha domu tak dokonale splňuje požadavky na komfortního a úsporného bydlení. Jako bonus přivítáte terasu s jižní orientací, která zajistí prostor pro relaxaci v soukromí.

Dispozice domu:
• Vstupní závětří: 4,3 m2
• Vstupní hala: 8,6 m2
• Obývací pokoj s kk a krbovou vložkou: 24,8 m2
• Ložnice: 12,6 m2
• Pokoj: 12,2 m2
• Koupelna: 6,3 m2
• Komora/technická místnost: 4,3 m2
• Samostatné WC: 1,8 m2
• Krytá terasa: 6,9 m2

Popis pozemku
Téměř rovinatý pozemek obdélníkového tvaru výměře cca 29 x 17 m nabízí skvělou příležitost jak pro užitkovou zahradu, tak i pro relaxační prostor, který zajistí dokonalé soukromí a nerušený odpočinek v kontaktu s přírodou. Pozemek je kompletně oplocený s bránou pro vjezd.

Napojení na sítě
Elektřina je zavedena přímo na pozemek, další inženýrské sítě – plyn, voda a kanalizace se nacházejí na přilehlé komunikaci před plánovaným domem. Vytápění domu je navrženo jako ústřední, plynové s kondenzačním kotlem, který také zajišťuje ohřev teplé užitkové vody. Navrženo je komfortní podlahové vytápění. Obývací pokoj může dohřívat romantická krbová vložka.

Klidná lokalita
Pozemek se nachází v Padochově, klidné části oblíbených Oslavan, která na město plynule navazuje a nabízí ideální rovnováhu mezi soukromím a dostupností služeb. Jednou z hlavních předností je umístění na samém okraji obce – bezprostředně u polí s otevřeným výhledem do krajiny a do přilehlých rozsáhlých lesních porostů. Lokalita je ideální pro ty, kteří hledají klid, prostor a kontakt s přírodou, přesto však nechtějí rezignovat na pohodlné spojení s městem. Okolí nabízí typickou jihomoravskou krajinu, ideální pro procházky, cyklovýlety i aktivní odpočinek.

Občanská vybavenost
Obec Oslavany-Padochov najdeme přibližně 25 km na západ od Brna. Tento pozemek s projektem představuje ideální kombinaci klidného bydlení, prostorné zahrady a výborné dostupnosti cca 25 minut do brněnského kampusu. V dojezdové vzdálenosti jsou také cca 5 minut Oslavany a 8 minut Ivančice. V místě je k dispozici mateřská škola, dětské hřiště, hospůdka i tělovýchovná jednota Sokol, v Oslavanech pak kompletní občanská vybavenost včetně lékařů, restaurací, služeb i hromadná doprava.

Tato nabídka je ideální volbou pro ty, kteří hledají nové bydlení bez kompromisů – samostatný dům s vlastní zahradou s možností začít okamžitě stavět v tiché lokalitě, a zároveň s výbornou dostupností Brna i okolních obcí.

Vizualizace domu byly vytvořeny pomocí AI a mohou mít mírné odchylky od projektu domu.

Makléř

Máte zájem o tento pozemek?

Tímto, v souladu s nařízením Evropského parlamentu a Rady (EU) 2016/679, v platném znění, prohlašuji, že mi je alespoň 16 let a uděluji tak svůj souhlas se zpracováním zadaných údajů (jméno, telefon, e-mail, ip adresa) společnosti B3 Technology, s.r.o., IČ: 07330600, se sídlem Novostavby 126/23, 435 11 Lom (správce dat), za účelem předání dotazu z tohoto formuláře Vámi vybranému inzerentovi a zpětného kontaktování mé osoby. Osobní údaje bude správce zpracovávat manuálně i automaticky přímo prostřednictvím svých zaměstnanců. Informace předané tímto formulářem budou uloženy v databázi správce maximálně po dobu 10 let. Odvolání souhlasu s uložením a zpracováním poskytnutých dat lze e-mailem na info@origo-reality.cz. V případě podezření na neoprávněné použití Vámi poskytnutých údajů máte právo předat podnět k šetření Úřadu pro ochranu osobních údajů. Více informací
Chystáte se prodat nemovitost?
Pomůžeme Vám!
Theleadway banner

Přihlášení k odběru

Nenechte si ujít nejnovější nabídky prodeje pozemků pro bydlení v Oslavanech.