Prodej bytu 3+kk, Letovice, Komenského, 76 m2 (ID: 1880244)

Komenského, Letovice

6 370 000 Kč
/za nemovitost
Hypotéka od 28 470 Kč /měs. Chci hypotéku

Parametry bytu

AdresaKomenského, Letovice
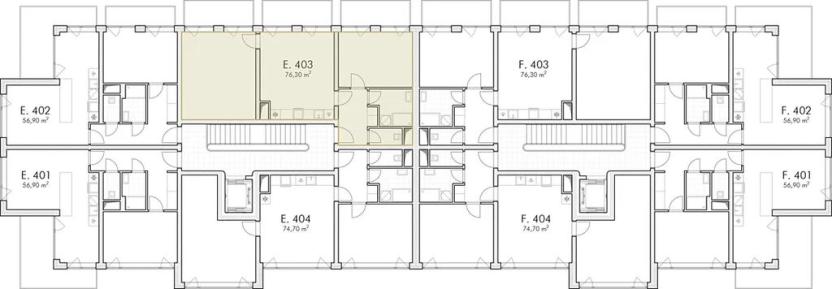
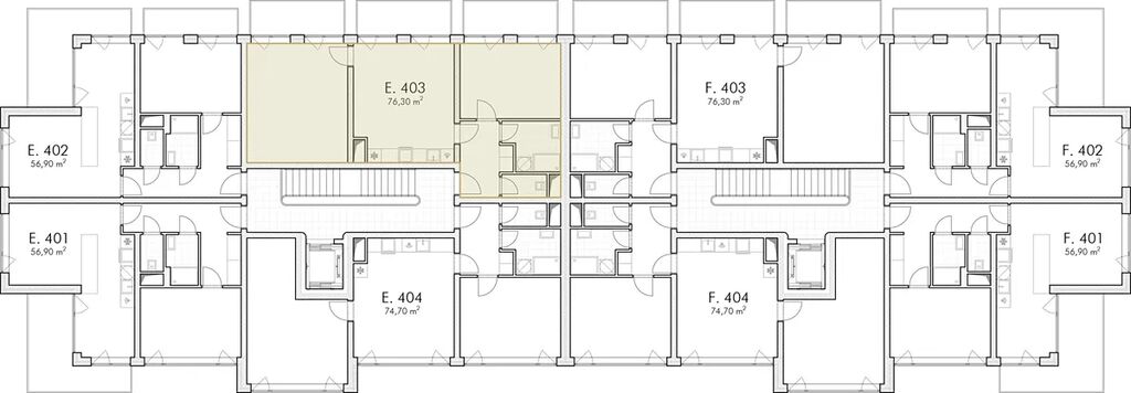
IDE.403
StavbaSmíšená
Stav objektuVe výstavbě
Patro4.
Lokalita objektuKlidná část obce
VlastnictvíOsobní
Užitná plocha76 m2
Třída energetické náročnostiB - Velmi úsporná
OdpadVeřejná kanalizace
KomunikaceAsfaltová
TelekomunikaceInternet
DopravaVlak, Silnice, MHD, Autobus
VodaVodovod
Topné tělesoPodlahové vytápění, Klimatizace
Zdroj teplé vodyCentrální dálkový ohřev
Balkon
Sklep
Výtah
Bezbarierový přístup
Parkování

Origo partneři v Letovicích

Popis

Prostorný a moderní třípokojový byt o ploše přes 76 m2 s orientací na východ se nachází ve čtvrtém, nejvyšším nadzemním podlaží. Součástí kupní ceny je už i nadstandardně vybavená koupelna a klimatizace ve všech obytných místnostech. WC je samostatné. Z každé místnosti se francouzským oknem vstupuje na vlastní balkón (3x6 m2).

V obývací části je vyveden optický kabel pro připojení k vysokorychlostnímu internetu.

V domě se nachází výtah a kočárkárna. K bytu je dále možné si zakoupit sklepní kóji a venkovní parkovací stání.

Nové bytové domy v Letovicích navážou na již vybudovanou první etapu Rezidence Zlatá Pole a budou dokončeny a předány v závěru letošního roku a provedeny ve stejném standardu jako v první etapě - tedy s hliníkovými okny s izolačním trojsklem, vodovodním podlahovým vytápěním, kvalitním komunikačním jádrem a zelenou střechou, a budou splňovat parametry pro zařazení do energetické třídy B.
Kompletní nabídku dostupných bytů naleznete na stránkách projektu.

Bytové domy jsou situovány v klidné, strategicky umístěné lokalitě. Do centra města se pěšky dostanete za 15 minut, autem za 3 minuty. Naproti bytovým domům se nachází základní i mateřská škola, v bezprostředním okolí je pak veškerá občanská vybavenost včetně zámeckého parku, potravin a ordinace praktického lékaře.

Makléř

Máte zájem o tento byt?

Tímto, v souladu s nařízením Evropského parlamentu a Rady (EU) 2016/679, v platném znění, prohlašuji, že mi je alespoň 16 let a uděluji tak svůj souhlas se zpracováním zadaných údajů (jméno, telefon, e-mail, ip adresa) společnosti B3 Technology, s.r.o., IČ: 07330600, se sídlem Novostavby 126/23, 435 11 Lom (správce dat), za účelem předání dotazu z tohoto formuláře Vámi vybranému inzerentovi a zpětného kontaktování mé osoby. Osobní údaje bude správce zpracovávat manuálně i automaticky přímo prostřednictvím svých zaměstnanců. Informace předané tímto formulářem budou uloženy v databázi správce maximálně po dobu 10 let. Odvolání souhlasu s uložením a zpracováním poskytnutých dat lze e-mailem na info@origo-reality.cz. V případě podezření na neoprávněné použití Vámi poskytnutých údajů máte právo předat podnět k šetření Úřadu pro ochranu osobních údajů. Více informací
Chystáte se prodat nemovitost?
Pomůžeme Vám!

Přihlášení k odběru

Nenechte si ujít nejnovější nabídky prodeje bytů 3+kk v Letovicích.