Prodej bytu 3+kk, Trutnov - Horní Staré Město, 111 m2

Trutnov, Horní Staré Město

6 499 000 Kč
/za nemovitost
Cena včetně právního servisu, advokátní úschovy i provize RK
Hypotéka od 29 047 Kč /měs. Chci hypotéku

Parametry bytu

AdresaTrutnov, Horní Staré Město
ID03724
StavbaCihlová
Stav objektuNovostavba
Patro2.
VlastnictvíOsobní
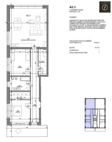
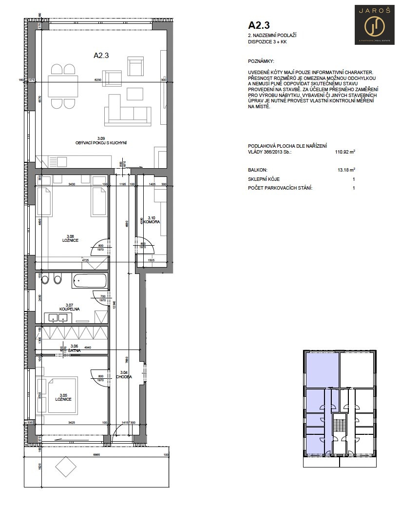
Užitná plocha111 m2
Třída energetické náročnostiA - Mimořádně úsporná
Ukazatel energetické náročnosti45 kWh/m2 za rok

Origo partneři v Trutnově

Pojištění a finance

Popis

Nabízíme k prodeji byt 3+kk o celkové rozloze 111 m2 v 2NP, balkon (12,75 m2) a sklepní prostor u vlastního parkovacího stání v projektu Rezidence Zámecký Vrch, který je veden jako ateliér. Nemovitost je navržena ve vysokém ekologickém a ekonomickém standardu, což se projeví i na vašich nákladech za energie. Energetická třída domu je nejvyšší A dle energetického průkazu domu. Každá bytová jednotka je osazena komínovým tělesem s možností umístění krbové vložky. Střecha je osazena solárními panely – energetická soběstačnost domu. Tvar a vzhled této uzavřené rezidence se naprosto vymyká současné typické výstavbě domů. Součástí nemovitosti jsou zahrady, parkovací stání k jednotlivým bytovým jednotkám (včetně možnosti dobíjení elektrovozidel) s možností přikoupení dalšího parkovacího stání, studna, aj. Tato nabídka je ideální pro ty, kteří hledají moderní a elegantní bydlení ve výjimečné lokalitě.
Výhodou nových majitelů je, že před dokončením stavby lze případné nadstandardní prvky - úpravy a vybavení interiérů přímo konzultovat s naším stavitelem.
Tato nemovitost nabízí budoucím nabyvatelům vysoký komfort bydlení ve zcela atypickém stavebním slohu s nejmodernějšími prvky bydlení. Tento komplex o 3 domech je zasazen do malebné okolní přírody podhůří Krkonošských hor severovýchodních Čech. Novostavby se nachází v klidné čtvrti Dolního Starého Města s dobrou dopravní dostupností do centra města. Výhledy z jednotlivých bytových jednotek nás upoutají okolní krásnou horskou scenérií. Světlé a prostorné pokoje nabízejí dostatek prostoru pro vaše pohodlí. Vychutnejte si relaxaci na balkóně s nádherným výhledem na okolní zelené horské scenérie.
Noví majitelé v letních měsících mohou podnikat cyklovýlety a toulky ve zdejších lesích a v zimě naopak je na dosah mnoho zimních Krkonošských letovisek (např. Vrchlabí, Jánské Lázně, Pec pod Sněžkou, aj.).
Termíny dostavby jednotlivých domů, předání bytových jednotek včetně kolaudace a podrobné informace konzultujte s naším makléřem. Naši finanční poradci zajistí financování vašeho bydlení.

Makléř

Máte zájem o tento byt?

Tímto, v souladu s nařízením Evropského parlamentu a Rady (EU) 2016/679, v platném znění, prohlašuji, že mi je alespoň 16 let a uděluji tak svůj souhlas se zpracováním zadaných údajů (jméno, telefon, e-mail, ip adresa) společnosti B3 Technology, s.r.o., IČ: 07330600, se sídlem Novostavby 126/23, 435 11 Lom (správce dat), za účelem předání dotazu z tohoto formuláře Vámi vybranému inzerentovi a zpětného kontaktování mé osoby. Osobní údaje bude správce zpracovávat manuálně i automaticky přímo prostřednictvím svých zaměstnanců. Informace předané tímto formulářem budou uloženy v databázi správce maximálně po dobu 10 let. Odvolání souhlasu s uložením a zpracováním poskytnutých dat lze e-mailem na info@origo-reality.cz. V případě podezření na neoprávněné použití Vámi poskytnutých údajů máte právo předat podnět k šetření Úřadu pro ochranu osobních údajů. Více informací
Chystáte se prodat nemovitost?
Pomůžeme Vám!
Theleadway banner

Přihlášení k odběru

Nenechte si ujít nejnovější nabídky prodeje bytů 3+kk v Trutnově.