Prodej rodinného domu, Podolí I, 111 m2 (ID: 1878808)

Podolí I

8 300 000 Kč
/za nemovitost
Hypotéka od 37 096 Kč /měs. Chci hypotéku

Parametry domu

AdresaPodolí I
ID592025
StavbaCihlová
Stav objektuNovostavba
Druh objektuSamostatný
Lokalita objektuOkraj obce
Užitná plocha111 m2
Zastavěná plocha168 m2
Podlahová plocha138 m2
Plocha pozemku1404 m2
Plocha zahrady1217 m2
Třída energetické náročnostiB - Velmi úsporná
OdpadVeřejná kanalizace
TopeníPodlahové
KomunikaceZpevněná
DopravaSilnice
VodaVodovod
Topné tělesoPodlahové vytápění
Zdroj topeníTepelné čerpadlo
Zdroj teplé vodyTepelné čerpadlo
Výtah
Bezbarierový přístup

Origo partneři v Podolí I

Výkup a prodej starého nábytku

Popis

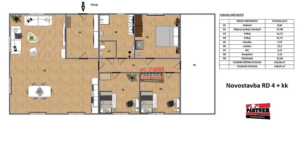
Hledáte nový domov, kde se snoubí klid, komfort a moderní styl? Nabízíme k prodeji atraktivní přízemní bungalov 4+kk o celkové ploše 138 m² v malebné obci Podolí I, pouhých 10 minut od Písku. Dům je ideální volbou pro rodinu, která chce bydlet v novostavbě bez starostí, s velkým pozemkem a nízkými provozními náklady.

Tento světlý a útulný bungalov nabízí promyšlenou dispozici – prostorné zádveří, velký obývací pokoj s kuchyňským koutem a přímým vstupem na terasu, tři samostatné pokoje, koupelnu se sprchovým koutem, samostatné WC a chodbu s druhým vstupem do domu. Kvalitní vinylové podlahy podtrhují moderní a příjemnou atmosféru interiéru. K domu náleží přístřešek (27 m²), zahradní domek (19 m²) a rozlehlý pozemek o velikosti 1 404 m², který je kompletně oplocený a opatřený elektrickou vjezdovou bránou.

Dům je napojen na vodovod i kanalizaci, vytápění a ohřev vody zajišťuje tepelné čerpadlo, připraven je také komín pro krbová kamna. Energetická třída B zaručuje nízké provozní náklady a úsporný provoz.

Podolí I je vyhledávaná lokalita obklopená přírodou s výbornou dostupností do Písku, ideální pro rodiny s dětmi, sportovce i všechny, kdo hledají klidné a bezpečné bydlení blízko města, ale s dostatkem soukromí a prostoru.

Dům lze financovat hypotečním úvěrem – nabízíme také pomoc se zajištěním výhodného financování na míru.

V případě zájmu o bližší informace nebo sjednání prohlídky nás neváhejte kontaktovat – budeme se těšit na osobní setkání a rádi vám tuto nemovitost osobně ukážeme.

Makléř

Máte zájem o tento dům?

Tímto, v souladu s nařízením Evropského parlamentu a Rady (EU) 2016/679, v platném znění, prohlašuji, že mi je alespoň 16 let a uděluji tak svůj souhlas se zpracováním zadaných údajů (jméno, telefon, e-mail, ip adresa) společnosti B3 Technology, s.r.o., IČ: 07330600, se sídlem Novostavby 126/23, 435 11 Lom (správce dat), za účelem předání dotazu z tohoto formuláře Vámi vybranému inzerentovi a zpětného kontaktování mé osoby. Osobní údaje bude správce zpracovávat manuálně i automaticky přímo prostřednictvím svých zaměstnanců. Informace předané tímto formulářem budou uloženy v databázi správce maximálně po dobu 10 let. Odvolání souhlasu s uložením a zpracováním poskytnutých dat lze e-mailem na info@origo-reality.cz. V případě podezření na neoprávněné použití Vámi poskytnutých údajů máte právo předat podnět k šetření Úřadu pro ochranu osobních údajů. Více informací
Chystáte se prodat nemovitost?
Pomůžeme Vám!

Přihlášení k odběru

Nenechte si ujít nejnovější nabídky prodeje rodinných domů v Podolí I.