Prodej rodinného domu, Podolí I, 111 m2 (ID: 1909437)

Podolí I

7 990 000 Kč
/za nemovitost
Hypotéka od 35 710 Kč /měs. Chci hypotéku

Parametry domu

AdresaPodolí I
ID622025
StavbaCihlová
Stav objektuNovostavba
Druh objektuSamostatný
Lokalita objektuOkraj obce
Užitná plocha111 m2
Zastavěná plocha170 m2
Podlahová plocha138 m2
Plocha pozemku1332 m2
Plocha zahrady1162 m2
Třída energetické náročnostiB - Velmi úsporná
OdpadVeřejná kanalizace
TopeníPodlahové
KomunikaceZpevněná
DopravaSilnice
VodaVodovod
Topné tělesoPodlahové vytápění
Zdroj topeníTepelné čerpadlo
Zdroj teplé vodyTepelné čerpadlo
Výtah
Bezbarierový přístup

Origo partneři v Podolí I

Výkup a prodej starého nábytku

Popis

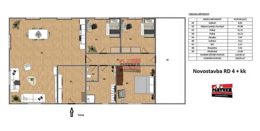
Nabízíme k prodeji krásný přízemní bungalov v malebné obci Podolí I, pouhých pár minut od Písku. Tato novostavba rodinného domu o dispozici 4+kk splní představy i náročnějších zájemců hledajících komfortní bydlení v klidném prostředí s vynikající dostupností.

Dům nabízí celkovou plochu 138,08 m². Dispozice je prakticky řešená: prostorné zádveří (8,91 m²), světlý obývací pokoj s kuchyňským koutem (47,98 m²) a přímým vstupem na terasu, tři samostatné pokoje (11,71 m², 11,71 m² a 13,2 m²), praktická chodba (7,97 m²) s druhým vstupem do domu, koupelna se sprchovým koutem (7,31 m²) a samostatná toaleta (2,17 m²). Kvalitní vinylové podlahy podtrhují moderní a příjemnou atmosféru interiéru. Součástí domu je také přístřešek o velikosti 27,09 m² a zahradní domek o výměře 19 m². Celý pozemek o rozloze 1 332 m² je kompletně oplocený a opatřený elektrickou vjezdovou bránou.

Technické řešení domu odpovídá dnešním nárokům na moderní a úsporné bydlení – vytápění a ohřev vody zajišťuje tepelné čerpadlo, připraven je i komín pro instalaci krbových kamen. Dům je napojen na veřejný vodovod a kanalizaci a je zařazen do energetické třídy B – velmi úsporný.

Podolí I je vyhledávaná lokalita pro svou krásnou přírodu, příjemnou komunitu a výbornou dostupnost do Písku (cca 10 minut autem). Jde o ideální místo pro rodiny s dětmi, sportovce i všechny, kdo hledají klidné bydlení blízko města, a přitom s dostatkem soukromí a prostoru.

Mezi hlavní výhody této nemovitosti patří moderní novostavba bez nutnosti dalších investic, velký pozemek s možností realizace zahrady snů, energeticky úsporné řešení a klidné a bezpečné místo pro život.

Neváhejte a přijďte se podívat na svůj nový domov v srdci Jihočeského kraje a domluvte si prohlídku ještě dnes.

Tento dům lze financovat hypotečním úvěrem. Zájemcům v rámci našich služeb nabízíme výhodné financování vytvořené na míru pro tuto nemovitost.

Makléř

Máte zájem o tento dům?

Tímto, v souladu s nařízením Evropského parlamentu a Rady (EU) 2016/679, v platném znění, prohlašuji, že mi je alespoň 16 let a uděluji tak svůj souhlas se zpracováním zadaných údajů (jméno, telefon, e-mail, ip adresa) společnosti B3 Technology, s.r.o., IČ: 07330600, se sídlem Novostavby 126/23, 435 11 Lom (správce dat), za účelem předání dotazu z tohoto formuláře Vámi vybranému inzerentovi a zpětného kontaktování mé osoby. Osobní údaje bude správce zpracovávat manuálně i automaticky přímo prostřednictvím svých zaměstnanců. Informace předané tímto formulářem budou uloženy v databázi správce maximálně po dobu 10 let. Odvolání souhlasu s uložením a zpracováním poskytnutých dat lze e-mailem na info@origo-reality.cz. V případě podezření na neoprávněné použití Vámi poskytnutých údajů máte právo předat podnět k šetření Úřadu pro ochranu osobních údajů. Více informací
Chystáte se prodat nemovitost?
Pomůžeme Vám!

Přihlášení k odběru

Nenechte si ujít nejnovější nabídky prodeje rodinných domů v Podolí I.