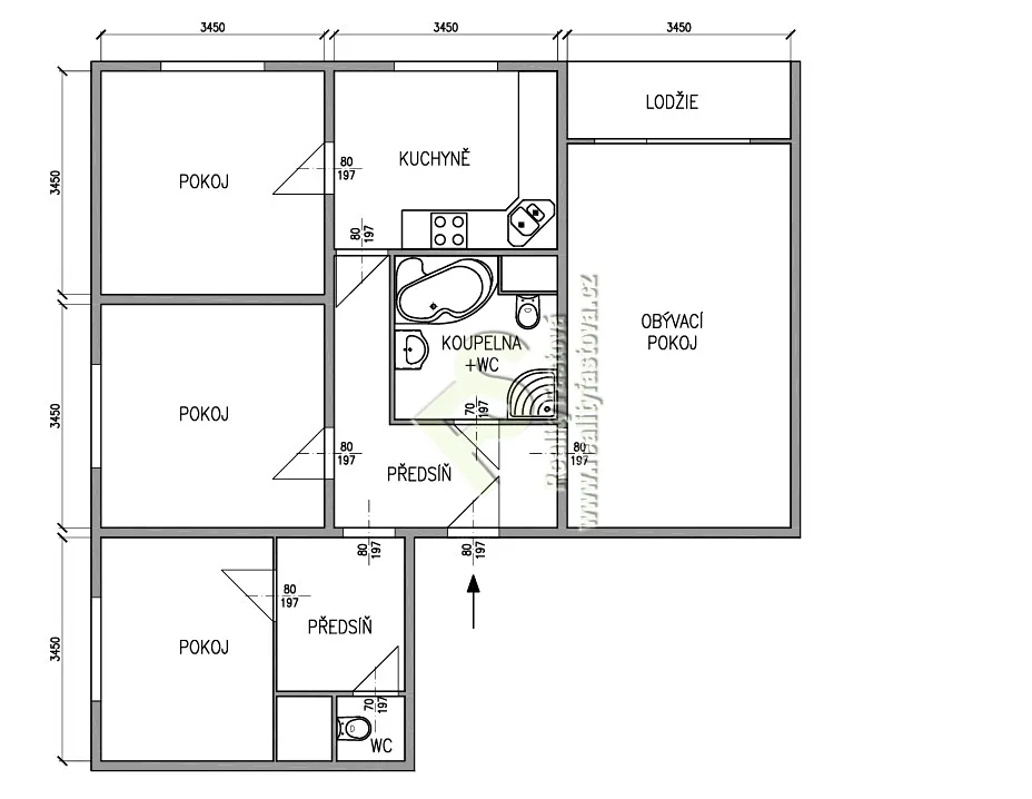
Prodej bytu 4+1, Plzeň, Břeclavská, 90 m2

Břeclavská, Plzeň, Severní Předměstí

5 990 000 Kč
/za nemovitost
Hypotéka od 26 772 Kč /měs. Chci hypotéku

Parametry bytu

AdresaBřeclavská, Plzeň, Severní Předměstí
ID3663
StavbaPanelová
Stav objektuVelmi dobrý
Patro8.
VlastnictvíOsobní
Užitná plocha90 m2
Sklep
Lodžie

Origo partneři v Plzni

Podlahy

Stěhovací služby

Popis

Ojedinělá nabídka!!
Pokud hledáte v Plzni k bydlení velký byt a s možností vlastní kryté garáže, mám nabídku právě pro Vás!

V Plzni na Vinicích, Vám nabízím ke koupi velký dvougenerační byt 4+1, s lodžií přístupnou z bytu, 2 x WC a sklepem.
Jedná se o tvz. dvougenerační byt, protože má druhou předsíň, samostatný pokoj a u něho druhou samostatnou toaletu s umyvadlem.

Byt o celkové výměře 89,6 m2 (z toho lodžie 5 m2 a sklepní koje 2 m2) se nachází v 7.patře (8.NP) panelového domu s výtahem. Dům prošel kompletní revitalizací, vč. zateplení, fasády, střechy, společných částí, výtah dle EU, atd.

Byt byl v r. 2007 kompletně a precizně zrekonstruován, má plastová okna vč. lodžiových, vnitřních a venkovních parapetů, rozvody vody a odpady jsou v plastu, nová elektřina vč. navýšených jističů. Na podlahách dlažba nebo plovoucí podlahy, nové interiérové dveře. Celý byt byl sladěn do stejného dekoru dřeva, vč. dveří a obložek.
Byt má zděné jádro s prostornou koupelnou, ve které je osazena vana i sprchový kout, umyvadlo, toaleta, pračka a koupelnový nábytek. I druhé WC je komplet po rekonstrukci.
V kuchyni je kuch.linka na míru do tvaru L, vč.dřezu, plyn.sporáku s el.troubou, digestoří a myčkou.
Byt má všechny pokoje samostatné, neprůchozí. Z velkého obývacího pokoje je výstup na lodžii.

Všichni víme, že parkování na Vinících není snadná věc, ale tím se nemusíte stresovat. K tomuto bytu nabízí majitelé i vlastní krytou garáž v kruhovitém parkovacím domě přímo naproti domu. Zaparkujete a jdete pár kroků přímo do vchodu domu. No není to skvělé!!!
Tato garáž je prostorná, lichoběžníkového tvaru, o celkové výměře 19,6 m2. Vejde se do ní velký vůz, 2 motorky, pneumatiky, pracovní ponk, atd. Do parkovacího domu mají přístup pouze vlastníci garážových stání a otvírá se na dálkové ovládání přes mobil.
Cena této garáže je 850.000,-Kč. Zatím není prodejná samostatně, je nabízena jako bonus k bytu.

Neváhejte, jedinečná nabídka!!

Makléř

Máte zájem o tento byt?

Tímto, v souladu s nařízením Evropského parlamentu a Rady (EU) 2016/679, v platném znění, prohlašuji, že mi je alespoň 16 let a uděluji tak svůj souhlas se zpracováním zadaných údajů (jméno, telefon, e-mail, ip adresa) společnosti B3 Technology, s.r.o., IČ: 07330600, se sídlem Novostavby 126/23, 435 11 Lom (správce dat), za účelem předání dotazu z tohoto formuláře Vámi vybranému inzerentovi a zpětného kontaktování mé osoby. Osobní údaje bude správce zpracovávat manuálně i automaticky přímo prostřednictvím svých zaměstnanců. Informace předané tímto formulářem budou uloženy v databázi správce maximálně po dobu 10 let. Odvolání souhlasu s uložením a zpracováním poskytnutých dat lze e-mailem na info@origo-reality.cz. V případě podezření na neoprávněné použití Vámi poskytnutých údajů máte právo předat podnět k šetření Úřadu pro ochranu osobních údajů. Více informací
Chystáte se prodat nemovitost?
Pomůžeme Vám!

Přihlášení k odběru

Nenechte si ujít nejnovější nabídky prodeje bytů 4+1 v Plzni.