Pronájem garážového stání, Olomouc, Aloise Rašína, 15 m2
Aloise Rašína, Olomouc, Řepčín
                                1 200 Kč
/za měsíc
                            /za měsíc
                                                    Získejte výhodnou HYPOTÉKU
                                                Chci hypotéku
                    
                Parametry nemovitosti
| Adresa | Aloise Rašína, Olomouc, Řepčín | 
|---|---|
| ID | 00890 | 
| Stavba | Cihlová | 
| Stav objektu | Novostavba | 
| Užitná plocha | 15 m2 | 
| Třída energetické náročnosti | B - Velmi úsporná | 
| Ukazatel energetické náročnosti | 69 kWh/m2 za rok | 
| Doprava | Dálnice, Silnice, MHD, Autobus | 
         Origo
        partneři v Olomouci    
    
Popis
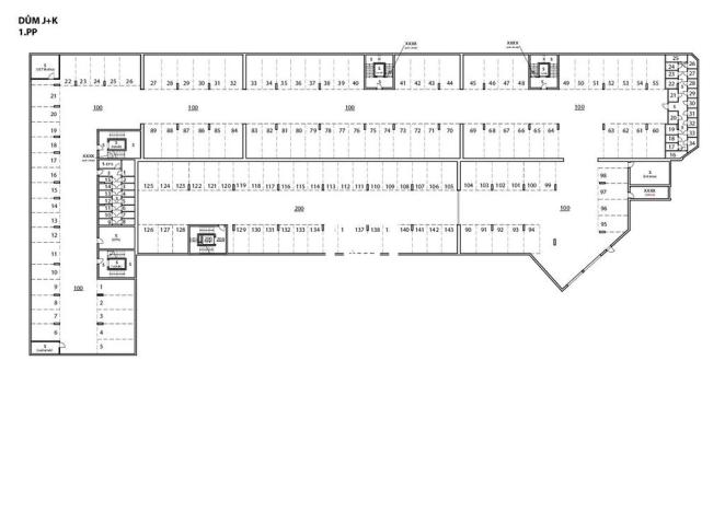
K pronájmu Vám exkluzivně nabízíme garážová stání č. 19 a 104 v nově zkolaudované etapě Holandské čtvrti - dům J+K. Oblíbený projekt se nachází na ulici Aloise Rašína, katastrální území Neředín/Řepčín. Vstup do prostoru hromadné garáže je v části garážových vrat i samostatně venkovním výtahem.
Přihlášení k odběru
Nenechte si ujít nejnovější nabídky pronájmu garážových stání v Olomouci.
 
                                                                                     
                                                                                     
                                                                                     
                                                                                     
                                                                                     
                                                                                     
                                                                                     
                                                                                     
                                                                                     
                         
         
         
         
         
        