Prodej pozemku pro bydlení, Poříčí nad Sázavou, Pyšelská, 1002 m2
Pyšelská, Poříčí nad Sázavou
/za nemovitost
Parametry pozemku
| Adresa | Pyšelská, Poříčí nad Sázavou | 
|---|---|
| ID | 987 | 
| Plocha pozemku | 1002 m2 | 
Popis
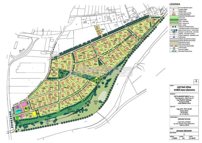
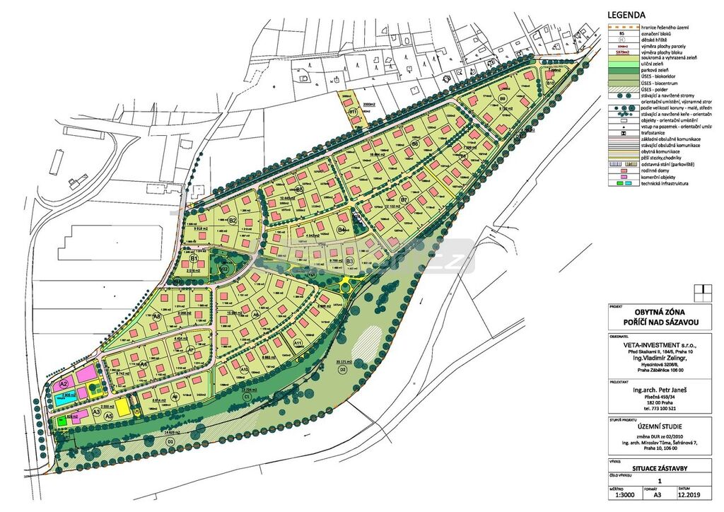
Prodej pozemku pro stavbu RD v Poříčí nad Sázavou. Máme pro vás exkluzivní příležitost – stavební pozemek v atraktivní a klidné lokalitě Poříčí nad Sázavou, která se právě mění v moderní čtvrť rodinných domů.
Pozemková parcela č. 193/56
•Výměra: 1.002 m²
•Cena: 2.505.000,- Kč
V ceně nejsou zahrnuty poplatky za připojení na inženýrské sítě.
V rámci rozvoje lokality je však plánována kompletní infrastruktura – elektřina, voda, plyn, kanalizace, komunikace i veřejná zeleň.
Celé území je dle územního plánu určeno k výstavbě rodinných domů – ideální volba pro ty, kteří hledají klidné a pohodové bydlení v zeleni, přitom s dobrou dostupností do Benešova či Prahy.
Přihlášení k odběru
Nenechte si ujít nejnovější nabídky prodeje pozemků pro bydlení v Poříčí nad Sázavou.
 
                                                                                     
                                                                                     
                                                                                     
                                                                                     
                                                                                     
                                                                                     
                                                                                     
                                                                                     
                                                                                     
                         
         
         
         
         
         
         
         
        