Prodej pozemku pro bydlení, Poříčí nad Sázavou, Pyšelská, 1010 m2

Pyšelská, Poříčí nad Sázavou

2 750 000 Kč
/za nemovitost
včetně právního servisu
Hypotéka od 12 291 Kč /měs. Chci hypotéku

Parametry pozemku

AdresaPyšelská, Poříčí nad Sázavou
ID959
Plocha pozemku1010 m2

Origo partneři v Poříčí nad Sázavou

Popis

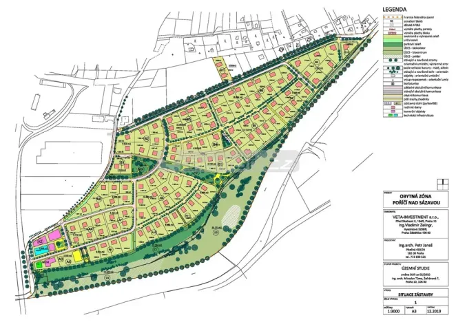
Pozemek určený územním plánem pro stavbu RD v Poříčí nad Sázavou. Hledáte místo, kde by mohl vyrůst váš budoucí domov? Máme pro vás exkluzivní nabídku stavebního pozemku v atraktivní a klidné lokalitě Poříčí nad Sázavou, která bude procházet proměnou v moderní čtvrť rodinných domů.
Pozemková parcela č. 193/14 o rozloze 1.010 m² se nachází v západní části této nové rezidenční oblasti. Kupní cena činí 2.750.000 Kč za pozemek.
V ceně nejsou zahrnuty poplatky za připojení na inženýrské sítě. V plánu je vybudování kompletní infrastruktury – elektřiny, vody, plynu, kanalizace, komunikací a veřejné zeleně.
Celé území je dle územního plánu určeno k výstavbě rodinných domů, což z něj činí ideální volbu pro klidné a pohodové bydlení.
Zaujala vás tato nabídka? Neváhejte mě kontaktovat – ráda vám poskytnu více informací na níže uvedených kontaktech Po-pá 9.00-17.00 hod.

Makléř

Máte zájem o tento pozemek?

Tímto, v souladu s nařízením Evropského parlamentu a Rady (EU) 2016/679, v platném znění, prohlašuji, že mi je alespoň 16 let a uděluji tak svůj souhlas se zpracováním zadaných údajů (jméno, telefon, e-mail, ip adresa) společnosti B3 Technology, s.r.o., IČ: 07330600, se sídlem Novostavby 126/23, 435 11 Lom (správce dat), za účelem předání dotazu z tohoto formuláře Vámi vybranému inzerentovi a zpětného kontaktování mé osoby. Osobní údaje bude správce zpracovávat manuálně i automaticky přímo prostřednictvím svých zaměstnanců. Informace předané tímto formulářem budou uloženy v databázi správce maximálně po dobu 10 let. Odvolání souhlasu s uložením a zpracováním poskytnutých dat lze e-mailem na info@origo-reality.cz. V případě podezření na neoprávněné použití Vámi poskytnutých údajů máte právo předat podnět k šetření Úřadu pro ochranu osobních údajů. Více informací
Chystáte se prodat nemovitost?
Pomůžeme Vám!

Přihlášení k odběru

Nenechte si ujít nejnovější nabídky prodeje pozemků pro bydlení v Poříčí nad Sázavou.