Pronájem rodinného domu, Dolní Domaslavice, 130 m2 (ID: 1874888)

Dolní Domaslavice

35 000 Kč
/za měsíc
+ služby + kauce 2 měsíční nájmy + provize RK
Získejte výhodnou HYPOTÉKU Chci hypotéku

Parametry domu

AdresaDolní Domaslavice
ID132769
StavbaCihlová
Stav objektuVelmi dobrý
Typ objektuPřízemní
Druh objektuSamostatný
Lokalita objektuKlidná část obce
Užitná plocha130 m2
Zastavěná plocha140 m2
Podlahová plocha130 m2
Plocha pozemku1233 m2

Origo partneři v Dolních Domaslavicích

Popis

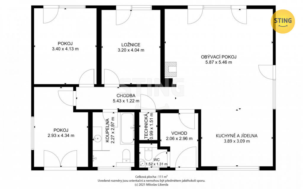
Nabízíme k pronájmu novostavbu zděného domu s pozemkem o výměře 1244 m2, v klidné a tiché části obce Dolní Domaslavice. Dům s energetickou náročností "B" velmi úsporná je vystavěn z Porothermu, vytápění podlahové elektrické, obývací pokoj s jídelnou a kuchyní lze vytápět i krbovými kamny. Dům je připojen na dálkový vodovod, ohřev vody El. bojlerem a odpady svedeny do pevné plastové jímky. Omítky vnitřní vápenné štukové, fasáda omítky silikonové, sedlová střecha z AL plechu. Dispozice bytu je 4 kk, prostorný obývací pokoj oddělený od kuchyně jídelním koutem ( kuchyňská linka je vybavena varnou deskou, el. troubou, vestavěnou myčkou a mikrovlnou troubou ), ložnice, dva dětské pokoje, nebo dětský pokoj a pracovna. Z každého jednotlivého pokoje je samostatně možnost výstupu do zahrady francouzským oknem. Tento od vnějšího pohledu menší, ale uvnitř prostorově dostatečně velký dům má v 1. NP ještě komoru, koupelnu s vanou, s proskleným sprchovacím koutem a WC. Pozemek je rovinatý s příjezdem po obecní asfaltové komunikaci. Před domem je na vlastním pozemku parkovací stání pro 2 osobní vozy.

Makléř

Máte zájem o tento dům?

Tímto, v souladu s nařízením Evropského parlamentu a Rady (EU) 2016/679, v platném znění, prohlašuji, že mi je alespoň 16 let a uděluji tak svůj souhlas se zpracováním zadaných údajů (jméno, telefon, e-mail, ip adresa) společnosti B3 Technology, s.r.o., IČ: 07330600, se sídlem Novostavby 126/23, 435 11 Lom (správce dat), za účelem předání dotazu z tohoto formuláře Vámi vybranému inzerentovi a zpětného kontaktování mé osoby. Osobní údaje bude správce zpracovávat manuálně i automaticky přímo prostřednictvím svých zaměstnanců. Informace předané tímto formulářem budou uloženy v databázi správce maximálně po dobu 10 let. Odvolání souhlasu s uložením a zpracováním poskytnutých dat lze e-mailem na info@origo-reality.cz. V případě podezření na neoprávněné použití Vámi poskytnutých údajů máte právo předat podnět k šetření Úřadu pro ochranu osobních údajů. Více informací
Chystáte se prodat nemovitost?
Pomůžeme Vám!

Přihlášení k odběru

Nenechte si ujít nejnovější nabídky pronájmu rodinných domů v Dolních Domaslavicích.