Prodej rodinného domu, Konstantinovy Lázně - Okrouhlé Hradiště, 560 m2 (ID: 1874607)

Konstantinovy Lázně, Okrouhlé Hradiště

2 490 000 Kč

včetně provize RK
Hypotéka od 11 129 Kč /měs. Chci hypotéku

Parametry domu

AdresaKonstantinovy Lázně, Okrouhlé Hradiště
ID969589
StavbaCihlová
Stav objektuPřed rekonstrukcí
Druh objektuSamostatný
VlastnictvíOsobní
Užitná plocha560 m2
Zastavěná plocha380 m2
Plocha pozemku784 m2
Třída energetické náročnostiG - Mimořádně nehospodárná

Origo partneři v Konstantinových Lázních

Podlahy

Stěhovací služby

Popis

Nabízíme k prodeji objekt bývalé hospody Hadovka, nacházející se na návsi v Okrouhlém Hradišti.
Objekt o užitné ploše 420 m² disponuje dvěma nadzemními podlažími, půdou a je plně podsklepený.
Zděná stavba je konstrukčně ve velmi dobrém technickém stavu. Jednotlivá patra spojuje kapacitní železobetonové schodiště vedoucí až na půdu, která nabízí možnost půdní vestavby.
Okna v celém objektu jsou osazena dřevěnými eurookny s dvojsklem.
Suterén budovy byl využíván jako kotelna, sklad piva a diskotéka.
V přízemí se nachází kuchyně, salonek, menší sál bývalé hospody s přístupem na terasu o velikosti 39 m² a sociální zázemí.
V patře se dříve nacházely dvě bytové jednotky.
Elektroinstalace je již v mědi, nicméně dům vyžaduje rekonstrukci.
Na pozemku o velikosti 784 m² stojí také bývalá stodola, která může sloužit např. k parkování.
Objekt je připojen na elektřinu, obecní vodovod a kanalizaci.
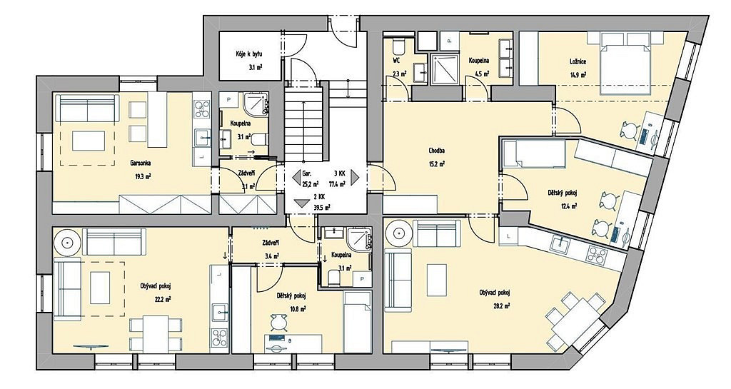
Budovu lze přestavět na bytový dům až s 11 bytovými jednotkami.
Součástí nabídky je studie sedmi bytů v 1. a 2. nadzemním podlaží, která maximálně respektuje stávající polohu nosných stěn a oken.
V případě zájmu lze zpracovat i studii pro 3. nadzemní podlaží, případně kompletní projektovou dokumentaci včetně vyřízení stavebního povolení.
Pozemek nabízí možnost vybudování 11 parkovacích stání a nachází se na něm vlastní studna.
V případě zájmu je možné zakoupit i navazující sousední stavební pozemek o velikosti 973 m² s přípojkami elektřiny, vody a kanalizace.
Detailní informace Vám rád sdělím při prohlídce či telefonicky.

Makléř

Máte zájem o tento dům?

Tímto, v souladu s nařízením Evropského parlamentu a Rady (EU) 2016/679, v platném znění, prohlašuji, že mi je alespoň 16 let a uděluji tak svůj souhlas se zpracováním zadaných údajů (jméno, telefon, e-mail, ip adresa) společnosti B3 Technology, s.r.o., IČ: 07330600, se sídlem Novostavby 126/23, 435 11 Lom (správce dat), za účelem předání dotazu z tohoto formuláře Vámi vybranému inzerentovi a zpětného kontaktování mé osoby. Osobní údaje bude správce zpracovávat manuálně i automaticky přímo prostřednictvím svých zaměstnanců. Informace předané tímto formulářem budou uloženy v databázi správce maximálně po dobu 10 let. Odvolání souhlasu s uložením a zpracováním poskytnutých dat lze e-mailem na info@origo-reality.cz. V případě podezření na neoprávněné použití Vámi poskytnutých údajů máte právo předat podnět k šetření Úřadu pro ochranu osobních údajů. Více informací
Chystáte se prodat nemovitost?
Pomůžeme Vám!

Přihlášení k odběru

Nenechte si ujít nejnovější nabídky prodeje rodinných domů v Konstantinových Lázních.