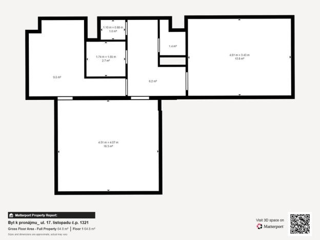
Pronájem bytu 2+1, Žamberk, 17. listopadu, 55 m2
17. listopadu, Žamberk
/za měsíc
+ provize RK
Parametry bytu
| Adresa | 17. listopadu, Žamberk | 
|---|---|
| ID | 11075 | 
| Stavba | Panelová | 
| Stav objektu | Dobrý | 
| Vybaveno | Částečně | 
| Lokalita objektu | Klidná část obce | 
| Vlastnictví | Osobní | 
| Užitná plocha | 55 m2 | 
| Třída energetické náročnosti | D - Méně úsporná | 
Popis
Dlouhodobý pronájem bytu 2+1 s lodžií v žádané lokalitě Žamberk – Hledáme slušné a spolehlivé nájemníky!
Hledáte klidné a kvalitní bydlení s veškerými výhodami města?
Nabízíme k dlouhodobému pronájmu světlý, prostorný byt 2+1 s orientační výměrou 55 m², který je ideální pro ty, kteří si chtějí vytvořit skutečný domov.
 Klíčové vlastnosti bytu a domu:
•	Lokalita: Vyhledávaná část města Žamberk s kompletní občanskou vybaveností (obchody, školy, školky, zdravotnická zařízení, sportoviště) v pěší dostupnosti.
•	Dispozice: Byt 2+1.
•	Stav: Původní, ale velmi dobrý stav, částečně vybavený.
•	Relaxace: Prosklená lodžie (balkon) s příjemným výhledem na město a parkoviště.
•	Úložné prostory: K bytu náleží sklepní kóje pro uskladnění sezónních věcí.
•	Dům: PENB, energetická třída D, revitalizovaný panelový dům s výtahem, 3. patro.
 Finanční podmínky:
•	Měsíční nájemné: 9 400 Kč
•	Zálohy na energie a služby: 4 500 Kč (závislé na počtu osob)
•	Vratná kauce: 20 000 Kč (Požadavek na složení kauce je z důvodu zajištění řádného užívání bytu.)
•	Provize realitní kanceláři
 Náš požadavek na nájemníky:
Hledáme solidní a spolehlivé nájemníky, kteří budou byt obývat s respektem, kteří hledají pohodlí, dostatek místa a chtějí si vytvořit vlastní domov.
Neváhejte, volejte, těším se na prohlídky se všemi zájemci.
Přihlášení k odběru
Nenechte si ujít nejnovější nabídky pronájmu bytů 2+1 v Žamberku.
 
                                                                                     
                                                                                     
                                                                                     
                                                                                     
                                                                                     
                                                                                     
                                                                                     
                                                                                     
                                                                                     
                                                                                     
                                                                                     
                                                                                     
                                                                                     
                         
         
         
         
         
         
         
        