Prodej bytu 3+kk, Praha, Na Farkáně III, 80 m2 (ID: 1873587)

Na Farkáně III, Praha 5

11 450 000 Kč
/za nemovitost
Hypotéka od 51 175 Kč /měs. Chci hypotéku

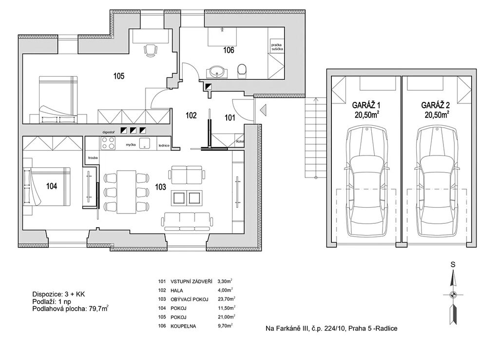
Parametry bytu

AdresaNa Farkáně III, Praha 5
StavbaCihlová
Stav objektuNovostavba
Patro1.
VlastnictvíOsobní
Užitná plocha80 m2
Plocha zahrady62 m2
Třída energetické náročnostiC - Úsporná
Garáž

Origo partneři v Praze 5

Stěhovací služby

Výkup a prodej starého nábytku

Popis

Prodej bytu 3+kk se soukromou zahradou – Na Farkáně III, Praha 5 – Radlice

Exkluzivně nabízíme k prodeji skvěle dispozičně řešený byt 3+kk o výměře 80 m², umístěný v přízemí nového komorního bytového domu v žádané lokalitě Praha 5 – Radlice. Projekt čítá pouze tři bytové jednotky, což zaručuje maximální soukromí a klid – ideální volba pro ty, kdo hledají klidné bydlení v blízkosti centra metropole.
V ceně bytu je soukromá zahrada o výměře 62 m², která poskytuje dokonalé zázemí pro relaxaci, venkovní posezení, zahradní domek, vířivku čí bazén. Vlastní zahrada přímo u bytu je v této lokalitě výjimečnou přidanou hodnotou.

Dispozice:
• Prostorný obývací pokoj s přípravou na kuchyňský kout
• Dvě samostatné ložnice
• Koupelna
• Samostatné WC
• Vstupní chodba a dostatek místa pro úložné prostory

Luxusní standardy:
• Kvalitní dubové třívrstvé podlahy
• Designové reverzní bezfalcové dveře
• Plastová okna s trojskly pro výbornou tepelnou a akustickou izolaci
• Koupelny s černými bateriemi a podlahovým vytápěním
• Příprava pro kuchyňskou linku, osvětlení a další vybavení dle preferencí budoucího majitele

K bytu je dále možné přikoupit samostatné garážové stání v novostavbě dvojgaráže sousedící s domem. Každé garážové stání má samostatné měření elektro a je v něm instalována příprava pro osazení nabíjecí stanice pro elektromobil s jištěním 3x20A (400V), což je nesporná výhoda pro současné i budoucí majitele moderních elektromobilů.

Lokalita:
Dům se nachází v tiché ulici Na Farkáně III, jen pár minut od stanice metra B – Radlická a zastávek MHD. Okolí nabízí výbornou občanskou vybavenost – školy, školky, obchody, sportovní centrum Motorlet, restaurace i zdravotní služby. Přírodní parky Dívčí hrady, Cibulka a Prokopské údolí jsou ideální pro procházky, běhání i cyklistiku.

Pří financování koupě nemovitosti úvěrem Vám hypotéku rádi zdarma pomůžeme vyřídit za velmi výhodných podmínek.
Pro více informací nebo domluvení prohlídky nás neváhejte kontaktovat.

Makléř

Máte zájem o tento byt?

Tímto, v souladu s nařízením Evropského parlamentu a Rady (EU) 2016/679, v platném znění, prohlašuji, že mi je alespoň 16 let a uděluji tak svůj souhlas se zpracováním zadaných údajů (jméno, telefon, e-mail, ip adresa) společnosti B3 Technology, s.r.o., IČ: 07330600, se sídlem Novostavby 126/23, 435 11 Lom (správce dat), za účelem předání dotazu z tohoto formuláře Vámi vybranému inzerentovi a zpětného kontaktování mé osoby. Osobní údaje bude správce zpracovávat manuálně i automaticky přímo prostřednictvím svých zaměstnanců. Informace předané tímto formulářem budou uloženy v databázi správce maximálně po dobu 10 let. Odvolání souhlasu s uložením a zpracováním poskytnutých dat lze e-mailem na info@origo-reality.cz. V případě podezření na neoprávněné použití Vámi poskytnutých údajů máte právo předat podnět k šetření Úřadu pro ochranu osobních údajů. Více informací
Chystáte se prodat nemovitost?
Pomůžeme Vám!

Přihlášení k odběru

Nenechte si ujít nejnovější nabídky prodeje bytů 3+kk v Praze 5.