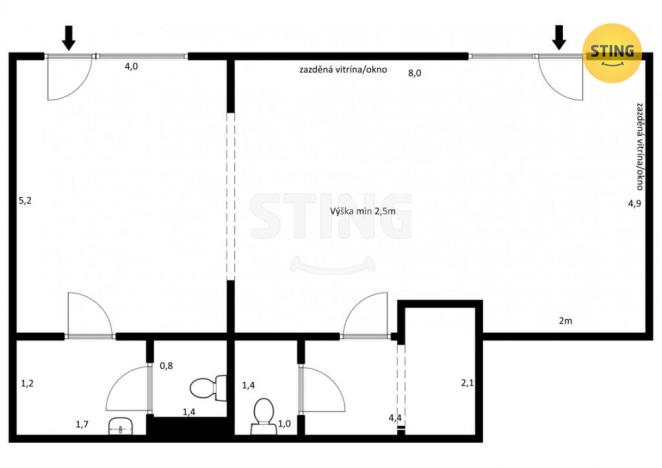
Prodej bytu 3+1, Hodonín, Zámecká, 103 m2

Zámecká, Hodonín

4 180 000 Kč
/za nemovitost
Hypotéka od 18 682 Kč /měs. Chci hypotéku

Parametry bytu

AdresaZámecká, Hodonín
ID133741
StavbaSmíšená
Stav objektuDobrý
Patro2. z 2
Lokalita objektuCentrum obce
VlastnictvíOsobní
Užitná plocha103 m2
Podlahová plocha170 m2
Elektřina230V
PlynPlynovod
OdpadVeřejná kanalizace
DopravaVlak, Silnice, MHD, Autobus
VodaVodovod
Sklep

Origo partneři v Hodoníně

Popis

Nabízíme skvělou investiční příležitost - prodej bytu 3+1 o rozloze 102 m² a komerčního prostoru (67 m²) v v přízemí o velikosti 67 m². Dům se nachází v atraktivní lokalitě u náměstí, v samém srdci města.

Investiční potenciál
Kombinace bydlení a podnikání v jedné nemovitosti nabízí hned několik možností:
- bydlet a současně provozovat vlastní podnik,
- jednu nebo obě jednotky pronajmout – nájemné může pokrýt splátky hypotéky.

Byt 3+1 (102 m²)
Byt je určen k celkové rekonstrukci a můžete si jej upravit podle vlastních představ. Vhodný pro vlastní bydlení i pronájem.

Komerční prostor (67 m²)
V přízemí domu se nachází komerční prostor se dvěma vstupy a výlohami do ulice.
Má vlastní sociální zařízení a po menších úpravách lze ihned užívat – ideální pro obchod, kancelář či služby.
Lze rozdělit na 2 samostatné části (2x vstup, 2x WC).

Součástí prodeje je i cca 40% podíl na sklepních prostorech a prostorné půdě s možným budoucím využitím.

Výborná poloha v centru města zajišťuje vysokou atraktivitu pro bydlení i podnikání. V okolí je kompletní občanská vybavenost – obchody, úřady, restaurace, školy i MHD. V případě více zájemců si majitel vyhrazuje právo prodat nejvýhodnější nabídce. Do konce listopadu 2025 nabízíme prostřednictvím našeho partnera úrokové sazby od 4,29 % p.a. Více informací Vám sdělí náš specialista na prohlídce.

Makléř

Máte zájem o tento byt?

Tímto, v souladu s nařízením Evropského parlamentu a Rady (EU) 2016/679, v platném znění, prohlašuji, že mi je alespoň 16 let a uděluji tak svůj souhlas se zpracováním zadaných údajů (jméno, telefon, e-mail, ip adresa) společnosti B3 Technology, s.r.o., IČ: 07330600, se sídlem Novostavby 126/23, 435 11 Lom (správce dat), za účelem předání dotazu z tohoto formuláře Vámi vybranému inzerentovi a zpětného kontaktování mé osoby. Osobní údaje bude správce zpracovávat manuálně i automaticky přímo prostřednictvím svých zaměstnanců. Informace předané tímto formulářem budou uloženy v databázi správce maximálně po dobu 10 let. Odvolání souhlasu s uložením a zpracováním poskytnutých dat lze e-mailem na info@origo-reality.cz. V případě podezření na neoprávněné použití Vámi poskytnutých údajů máte právo předat podnět k šetření Úřadu pro ochranu osobních údajů. Více informací
Chystáte se prodat nemovitost?
Pomůžeme Vám!

Přihlášení k odběru

Nenechte si ujít nejnovější nabídky prodeje bytů 3+1 v Hodoníně.